Dieses 2025 erbaute Reihenhaus bietet mit ca. 132,21m² Wohnfläche, einer klaren Grundrissgestaltung und moderner Architektur ein ideales Zuhause für Familien, Paare oder Wohnen & Arbeiten unter einem Dach.
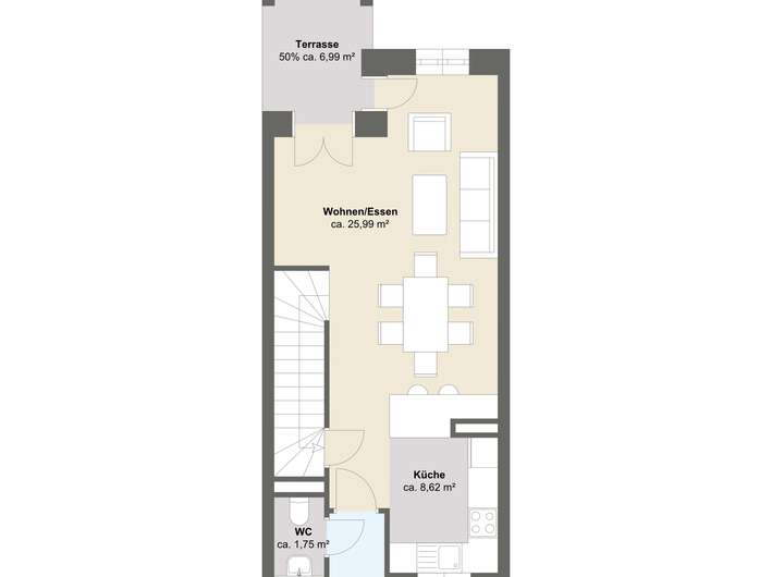
Erdgeschoss:
Das Herzstück des Hauses bildet die weitläufige Wohnebene mit einem hellen Wohnraum, einer großen offenen Küche sowie einem Essbereich. Ein Abstellraum und ein modernes Gäste WC ergänzen das Stockwerk. Von hier aus haben Sie Zugang zur Terrasse und Ihrem Garten - perfekt für entspannte Abende im Freien.
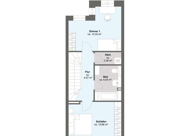
1. OG
Hier liegen zwei geräumige Schlafzimmer und ein Wannen Bad die für Rückzugsorte und Privatsphäre sorgen.
2. OG
Hier liegt ein weiteres Schlafzimmer, ein Dusch Bad und ein großzügiges, offenes Lounge Atelier - der Ideale Rückzugsort für Ihre kreativen Ideen. Abgerundet wird diese Etage mit zwei kleinen Balkonen.
Die hochwertige Ausstattung, lichtdurchflutete Räume und die durchdachte Raumaufteilung machen dieses Reihenhaus zu einem attraktiven Zuhause mit viel Komfort
Infos
| Haustyp | Reihenmittelhaus |
|---|---|
| Etagenzahl | 3 |
| Wohnfläche ca. | 132 m2 |
| Grundstücksfläche | 0 m2 |
| Bezugsfrei ab | Sofort |
| Zimmer | 5 |
| Schlafzimmer | 3 |
| Badezimmer | 2 |
| Haustiere | Nach Vereinbarung |
| Garage/Stellplatz | Tiefgarage |
| Anzahl Garage/Stellplatz | 1 |
Kosten
| Kaltmiete |
1.850 € |
|---|---|
| Nebenkosten | + 198 € |
| Heizkosten | + 198.32 € |
| Gesamtmiete | 2.250 € (zzgl. Heizkosten) |
| Miete für Garage/Stellplatz | 80 € |
| Kaution o. Genossenschaftsanteile | 5550,00 |
Weiter mieten oder doch kaufen?
Wer in Miete wohnt, überweist dem Vermieter im Laufe der Jahre hohe Summen, die sich
auch in die eigenen vier Wände investieren lassen könnten.
Bausubstanz & Energieausweis
| Baujahr | 2025 |
|---|---|
| Objektzustand | Neuwertig |
| Qualität der Austattung | Gehoben |
| Wesentliche Energieträger | Fernwärme |
| Energieausweis | liegt vor |
| Energieausweistyp | Bedarfsausweis |
| Energieverbrauchskennwert | 55,4 kWh/(m²*a) |
| Energieeffizienzklasse | B |
55,4
kWh/(m²*a)
Energieeffizienzklasse B
- A+
- A
- B
- C
- D
- E
- F
- G
- H
- 0
- 25
- 50
- 75
- 100
- 125
- 150
- 175
- 200
- 225
- >250
Beschreibung des Objekts
Ausstattung
- Echtholzparkett
- Fußbodenheizung
- Außenrollläden im EG
- LAN-Dosen in allen Wohnräumen
- moderne Einbauküche
- modernes Wannen -und Duschbad
- Terrasse mit Garten
Lage
Die Häuser befinden sich in Hannover-Kronsrode, einem der neuesten und modernsten Wohnquartiere der Stadt. Das Viertel verbindet urbanes Wohnen mit viel Grün und einer hervorragenden Infrastruktur.
In fußläufiger Entfernung finden sich zahlreiche Einkaufsmöglichkeiten wie Rewe, Aldi und Rossmann sowie Cafés, Bäckereien und Gastronomieangebote – von Eiscafé über Döner bis hin zu asiatischer Küche. Auch Apotheken, Ärzte und Dienstleister sind im direkten Umfeld angesiedelt.
Familien profitieren von der sehr guten Bildungs- und Betreuungsinfrastruktur: Kitas, Grundschulen und weiterführende Schulen befinden sich in unmittelbarer Nähe.
Die Anbindung an den öffentlichen Nahverkehr ist exzellent: Die Stadtbahnlinie 6 bringt Sie in wenigen Minuten in die Innenstadt, die Haltestellen sind bequem zu Fuß erreichbar. Über die B6 und den Messeschnellweg besteht zudem eine schnelle Verbindung ins Umland sowie zur A7 und A2.
Das Quartier ist von großzügigen Grünflächen, Spielplätzen und Radwegen durchzogen und bietet eine hohe Lebensqualität für Familien, Paare und Singles. Auch der Tiergarten und die Eilenriede liegen nur wenige Minuten entfernt und laden zu Spaziergängen, Sport oder Erholung ein.
Kronsrode gilt als eines der spannendsten Neubaugebiete Hannovers – modern, urban, familienfreundlich und zugleich naturnah.
Weitere Dokumente
DGEG
OG
Adresse
Lüdersworth 65, 30539 Hannover
Interessante Orte
Preis- und Lageinformationen
Preistrend für Bestandsimmobilien in Bemerode