Die im Jahr 1902 errichtete, unter Denkmalschutz stehende Jugendstil-Villa zählt zu den architektonischen Schmuckstücken Hannovers. Das repräsentative Gebäude steht auf einem rund 629 m² großen Grundstück und wurde zwischen 2016 und 2025 in mehreren Bauabschnitten umfassend saniert – stets in enger Abstimmung mit der Denkmalschutzbehörde.
Mit einer Wohnfläche von ca. 525 m² und zusätzlichen ca. 147 m² Nutzfläche im Vollkeller bietet die Villa außergewöhnlich viel Raum für Wohnen, Arbeiten und Repräsentation. Das Objekt ist nach WEG in vier großzügige Eigentumswohnungen aufgeteilt:
- Erdgeschoss ca. 165 m² – aktuell bezugsfrei (ideal für Praxis/Kanzlei oder Eigennutzung)
- Obergeschoss ca. 154 m² – hochwertig modernisiert, vermietet
- Dachgeschoss links ca. 91 m² – umfassend 2021–2022 ausgebaut
- Dachgeschoss rechts ca. 114 m² – modernisiert 2019
Die Sanierungen umfassten unter anderem:
- Erneuerung der Dacheindeckung inkl. Dämmung sowie Fassadenanstrich (2017)
- Neue Elektroinstallation mit Netzwerk-/Intranet-Anschlüssen
- Denkmalgerechte Fenster-Aufarbeitung mit moderner Isolierverglasung
- Restaurierung der Original-Innentüren und Stuckdecken
- Modernisierung der Bäder, Einbauküchen und Oberflächen (Parkett, Dielen)
- Neue Gas-Etagenheizungen im DG links
- Sanierung der Sanitär- und Heizungsinstallationen
Die Kombination aus erhaltener Jugendstil-Substanz und zeitgemäßer Ausstattung verleiht der Immobilie einen unverwechselbaren Charakter – ein repräsentatives Anwesen mit Seltenheitswert.
Diese Villa vereint architektonische Schönheit, stabile Erträge und exzellente Lagequalität.
Ob als Anlageobjekt, repräsentativer Firmensitz oder Familiendomizil mit historischer Ausstrahlung – das Objekt zählt zu den seltenen Angeboten, bei denen Substanz, Stil und Lage in Einklang stehen.
Repräsentative Gründerzeitvilla in Kirchrode – stilvolles Wohnen & sicheres Anlageobjekt in einem
30559 Hannover
Die vollständige Adresse der Immobilie erhalten Sie vom Anbieter.
Auf Karte anzeigen
Die vollständige Adresse der Immobilie erhalten Sie vom Anbieter.
Finanzierungszertifikat
In nur zwei Minuten zu Ihrem persönlichen Finanzierungszertifkat.
Infos
| Haustyp | Mehrfamilienhaus |
|---|---|
| Etagenzahl | 4 |
| Wohnfläche ca. | 525 m2 |
| Grundstücksfläche | 629 m2 |
| Zimmer | 16 |
| Schlafzimmer | 10 |
| Badezimmer | 4 |
Kosten
| Kaufpreis |
2.750.000 € |
|---|---|
| Provision |
3,57 % inkl. MwSt. |
Finanzierungsrechner:
Kaufpreis:
600.000 €
Eigenkapital:
600.000 €
Monatliche Rate
0 €
Effektiver Jahreszins
0 %
Sollzinsbindung
10 Jahre
Bausubstanz & Energieausweis
| Baujahr | 1902 |
|---|---|
| Denkmalschutzobjekt | Ja |
| Objektzustand | Saniert |
| Qualität der Austattung | Gehoben |
| Heizungsart | Etagenheizung |
| Wesentliche Energieträger | Gas |
Beschreibung des Objekts
Ausstattung
- Denkmalschutz: eingetragenes Baudenkmal nach § 3 NDSchG
- Energieausweis: nicht erforderlich (§ 79 Abs. 4 GEG, Baudenkmal)
- Denkmalgeschützte Jugendstil-Fassade mit Stuck- und Ziergiebeln
- Raumhöhen teils über ca. 3,50 m
- originale Doppelflügeltüren, Zargen und Beschläge der Jahrhundertwende
- Stuckdecken, Deckenrosetten und profilierte Friese
- Parkett- und Dielenböden in Originalausführung
- moderne Bäder (Wanne & Dusche), teils frei stehend
- Einbauküchen in allen Einheiten
- Gas-Etagenheizung je Wohneinheit
- Netzwerk- und Intranet-Verkabelung
- Balkonflächen und Garten mit Terrassenbereich
- voll unterkellert, trockene Lager- und Technikräume
Alle Sanierungen erfolgten denkmalgerecht und wurden von Fachfirmen dokumentiert. Die Immobilie präsentiert sich in einem repräsentativen, sofort bezugsfertigen Zustand.
Lage
Kirchrode gehört zu den begehrtesten Stadtteilen Hannovers. Prächtige Villen, alte Baumalleen sowie die unmittelbare Nähe zur Eilenriede und zum Hermann-Löns-Park prägen das Bild des Stadtteils. In wenigen Gehminuten erreicht man die Straßenbahnlinien 5 und 6 an der Haltestelle Tiergartenstraße sowie zahlreiche Einrichtungen des täglichen Bedarfs, darunter Supermärkte, Apotheken, Ärztehäuser und eine gehobene Gastronomie im Ortskern Kirchrode.
Auch Bildungs- und Freizeitangebote sind vielseitig vorhanden: Grund-, Real- und Gymnasialschulen, Kindertagesstätten, Sportvereine und Tennisanlagen befinden sich in direkter Umgebung. Die Innenstadt ist in rund zehn Minuten erreichbar, die Autobahnen A7 und A2 liegen weniger als 15 Minuten entfernt. Kirchrode vereint damit grünes Wohnen im Villenviertel mit einer hervorragenden urbanen Anbindung – ein Standort, der bei Eigennutzern wie Kapitalanlegern gleichermaßen gefragt ist.
Sonstige Angaben
Gerne vereinbaren wir einen Besichtigungstermin mit Ihnen und freuen uns über Ihre Kontaktaufnahme.
Um eine schnelle Bearbeitung zu gewährleisten, übermitteln Sie uns bitte Ihre vollständigen Kontaktdaten mit Telefon-Nr. und E-Mail-Adresse.
Wir vermitteln - mit Sicherheit.
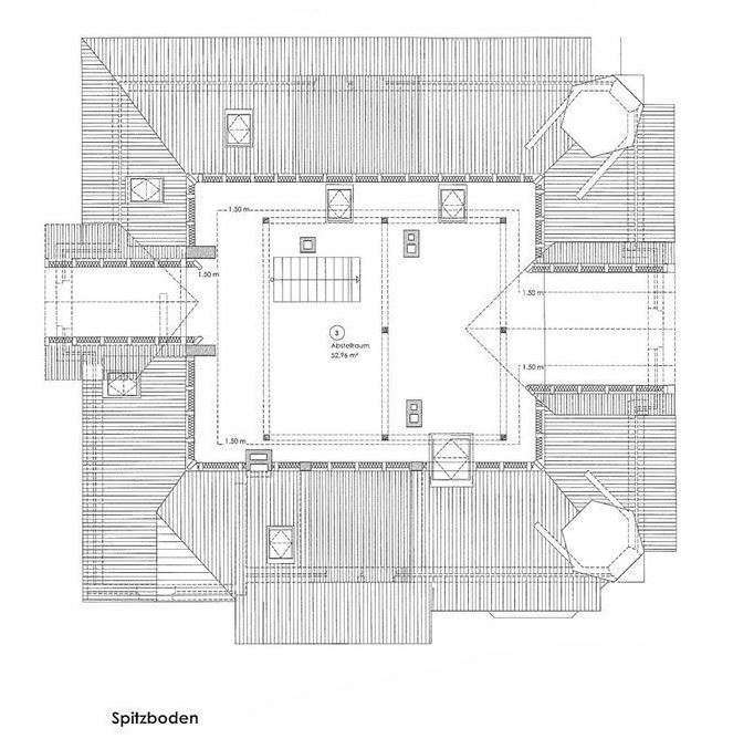
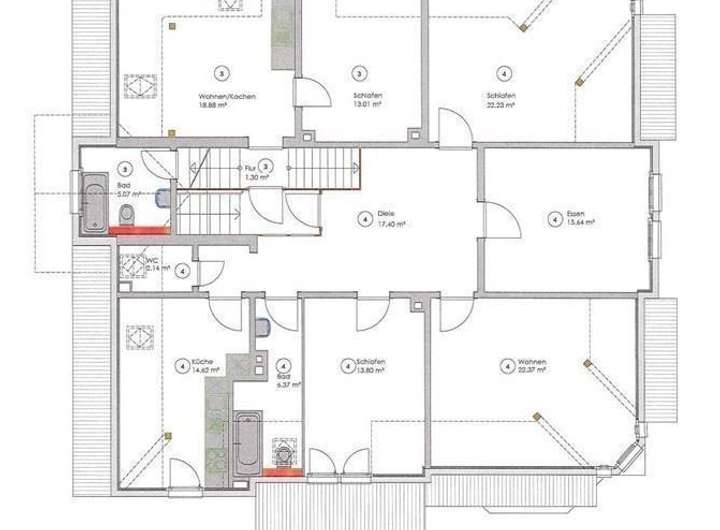
Grundriss
Grundriss EG
>
>
Grundriss 1. OG
>
>
Grundriss DG
>
>
Grundriss Spitzboden
>
>
ImmoScout24 Gold Partner
>
>
Immowelt Platin Partner
>
>
Top 10 Immobilienpreis
>
>
Adresse
30559 Hannover
Interessante Orte
Preis- und Lageinformationen
Preistrend für Bestandsimmobilien in Kirchrode