Willkommen in Ihrem neuen Zuhause in Odenthal-Voiswinkel! Ein wunderschönes freistehendes Einfamilienhaus erwartet Sie mit einer Nettogrundfläche von ca. 197 m² auf einem Grundstück von 697m². Das Haus wird individuell nach Ihnen Wünschen angepasst.
Das Home 14 überzeugt mit einem gelungenen Grundriss! Im EG befinden sich neben Gäste-WC und Haustechnikraum ein großes Arbeits- oder Gästezimmer. Der Wohn-Ess-Bereich ist offen zum großen Garten in Süd-West-Ausrichtung gestaltet.
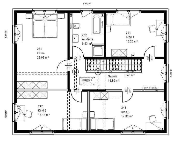
Für das Obergeschoss sind unterschiedliche Grundrisse denkbar: Entweder eine Aufteilung in einen Elternbereich mit Ankleide und eigenem Bad sowie zwei Kinderzimmern mit Duschbad. Alternativ sind auch 3 Kinderzimmer und nur ein Badezimmer möglich.
Auf dem Grundstück können auch andere Haustypen gebaut werden. Sprechen Sie uns an!
Mit einer zusätzlichen Photovoltaikanlage mit Batteriespeicher und etwas verbesserter Wärmedämmung wird dieses Haus entweder mit dem Programm "Wohneigentum für Familien" oder "Klimafreundlicher Neubau" gefördert. Da allkauf das QNG-Zertifikat besitzt, kann hier ein Förderkredit von 220.000EUR bzw. 150.000EUR in Anspruch genommen werden.
Der Angebotspreis umfasst Haus und Grundstück, wobei im Haus weitgehend alles Material für den schlüsselfertigen Ausbau enthalten ist. Der Innenausbau erfolgt durch Sie in Eigenleistung. Optional können auch Dienstleistungspakete für den Innenausbau von allkauf erworben werden.
Großzügiges Energiesparhaus in wunderschöner Lage in Voiswinkel
51519 Odenthal
Die vollständige Adresse der Immobilie erhalten Sie vom Anbieter.
Auf Karte anzeigen
Die vollständige Adresse der Immobilie erhalten Sie vom Anbieter.
Finanzierungszertifikat
In nur zwei Minuten zu Ihrem persönlichen Finanzierungszertifkat.
Infos
| Haustyp | Einfamilienhaus |
|---|---|
| Etagenzahl | 2 |
| Wohnfläche ca. | 197 m2 |
| Grundstücksfläche | 697 m2 |
| Zimmer | 7 |
| Schlafzimmer | 5 |
| Badezimmer | 2 |
Kosten
| Kaufpreis |
708.000 € |
|---|
Finanzierungsrechner:
Kaufpreis:
600.000 €
Eigenkapital:
600.000 €
Monatliche Rate
0 €
Effektiver Jahreszins
0 %
Sollzinsbindung
10 Jahre
Bausubstanz & Energieausweis
| Baujahr | 2026 |
|---|---|
| Bauphase | Haus in Planung (projektiert) |
| Qualität der Austattung | Gehoben |
| Heizungsart | Wärmepumpe |
Beschreibung des Objekts
Ausstattung
Ein Ausbauhaus von allkauf bietet zahlreiche Vorteile. Durch die Möglichkeit, den Innenausbau selbst zu übernehmen, können Sie Kosten sparen und Ihrem Zuhause eine ganz persönliche Note verleihen. Gleichzeitig tragen Sie aktiv dazu bei, die Umwelt zu schützen und den nachhaltigen Umgang mit Ressourcen zu fördern.
Mit 40 Jahren Erfahrung im Bau von Fertighäusern garantiert allkauf höchste Qualitätsstandards und maximale Sicherheit. Kurze Lieferzeiten, Festpreisgarantie und garantierte Fertigstellung sind nur einige der Vorteile, die Sie beim Bau Ihres Traumhauses mit allkauf erwarten.
Zu allen Häusern gehört eine erstklassige Ausstattung, darunter eine Energieeffizienzwand, eine Luft-Wasser-Wärmepumpe, Fußbodenheizung, 3-fach verglaste Fenster inklusive Rollläden sowie schadstoffgeprüfte Materialien.
Egal ob Einfamilienhaus, Doppelhaus oder Bungalow - bei allkauf finden Sie Ihr Traumhaus! Vereinbaren Sie noch heute Ihren persönlichen Termin zur Planung Ihres individuellen allkauf Traumhauses. Wir freuen uns darauf, Ihnen bei der Verwirklichung Ihres Wohntraums zu helfen!
Lage
Das Grundstück liegt in schöner Lage in Odenthal-Voiswinkel, das direkt nördlich an Bergisch-Gladbach anschließt.
Die zwei Kindergärten und die Grundschule sind in ca. 4 min mit dem Fahrrad zu erreichen. Supermärkte finden sich in Odenthal oder Bergisch Gladbach und sind ca. 7min mit dem Auto zu erreichen. Im nahegelegenen Schulzentrum Odenthal befinden sich sowohl Realschule als auch Gymnasium.
Die Umgebung ist von freistehenden Einfamilienhäusern mit großen Gärten gekennzeichnet. Die umliegenden Wiesen und Wälder laden zum Spazieren und Wandern ein.
In Voiswinkel finden Sie mit Ihrer Familie einen sicheren Rückzugsort mit angenehmer Nachbarschaft!
Das Grundstücksangebot (Verkauf/Vermittlung) erfolgt über einen kooperierenden Makler gem. §34cGewO.
Sonstige Angaben
Der Angebotspreis versteht sich zzgl. Bau- und Kaufnebenkosten.
Grundriss
Grundriss EG
>
>
Grundriss DG
>
>
Alternativer Grundriss DG
>
>
Adresse
51519 Odenthal
Interessante Orte
Preis- und Lageinformationen
Preistrend für Bestandsimmobilien in Odenthal