Dieses großzügige Zweifamilienhaus vereint komfortables Wohnen mit vielen Möglichkeiten zur individuellen Nutzung – ideal für alle, die Raum für Familie, Hobbys und eigene Ideen suchen.
Das Haus wurde 1974 erbaut, 1998 erweitert und aufgestockt und bietet heute rund 226 m² Wohnfläche auf zwei Etagen sowie ca. 130 m² zusätzliche Nutzfläche im Keller inklusive Werkstatt.
Ein echtes Highlight ist das traumhafte, ca. 1.560 m² große Grundstück in sonniger Südostlage. Leicht abfallend und wunderbar grün, lädt es zum Gärtnern, Spielen, Entspannen oder einfach zum Genießen ein. Hier haben Sie den Platz, Ihren ganz persönlichen Wohntraum zu verwirklichen.
Zusätzlichen Charme erhält das Anwesen durch mehrere Nebengebäude mit vielseitigem Potenzial: eine massive Garage mit Werkstatt, ein zweigeschossiges Schuppengebäude sowie ein praktisches Wirtschaftsgebäude – perfekt für Hobby, Lager oder kleine Projekte direkt am Haus.
Da die Immobilie frei übergeben wird, eignet sie sich hervorragend für Eigennutzer mit großem Platzbedarf, für Familien oder auch als Mehrgenerationenhaus. Selbst eine Teilvermietung zur Erzielung von Mieteinnahmen ist problemlos möglich.
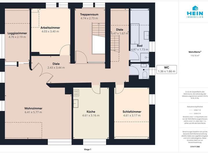
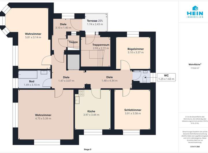
Im Erdgeschoss erwartet Sie eine großzügige Wohnung mit großem und kleinem Wohnzimmer, Schlafzimmer, Arbeitszimmer, Küche, Tageslichtbad mit Wanne, separatem WC und Flur. Im Dachgeschoss stehen ein lichtdurchflutetes Wohnzimmer mit angrenzendem Loggiazimmer, Schlafzimmer, Arbeitszimmer, Küche mit Einbauküche, modernes Tageslichtbad mit Wanne und Dusche, separates WC sowie ein Flur zur Verfügung. Der nicht ausgebaute Dachboden eröffnet zusätzlich spannende Möglichkeiten für weiteren Wohn- oder Arbeitsraum – perfekt für wachsende Bedürfnisse oder kreative Ausbauideen.
Der voll unterkellerte Bereich bietet neben Heizung, Waschraum und viel Stauraum auch einen direkten Zugang zum Garten und zur Garage.
Das Haus wurde laufend gepflegt und modernisiert: Die Gas-Zentralheizung (2000) wurde 2016 durch einen Festbrennstoffofen ergänzt, die isolierverglasten Kunststofffenster mit Rollläden stammen aus 1998, ebenso die langlebige Metalleindeckung des Dachs.
Mit seinem großzügigen Raumangebot, der flexiblen Aufteilung und dem weitläufigen Grundstück ist dieses Haus ein ideales Zuhause für alle, die Platz zum Leben, Wohnen und Gestalten suchen.
Lassen Sie sich bei einer Besichtigung persönlich vom Charme und den vielfältigen Möglichkeiten dieser Immobilie begeistern!
Großzügiges Wohnhaus für zwei Generationen oder mit Vermietungspotenzial!
08321 Zschorlau
Die vollständige Adresse der Immobilie erhalten Sie vom Anbieter.
Auf Karte anzeigen
Die vollständige Adresse der Immobilie erhalten Sie vom Anbieter.
Finanzierungszertifikat
In nur zwei Minuten zu Ihrem persönlichen Finanzierungszertifkat.
Infos
| Haustyp | Sonstige |
|---|---|
| Etagenzahl | 2 |
| Wohnfläche ca. | 226 m2 |
| Grundstücksfläche | 1.560 m2 |
| Bezugsfrei ab | sofort |
| Zimmer | 8 |
| Schlafzimmer | 2 |
| Badezimmer | 2 |
| Garage/Stellplatz | Garage |
| Anzahl Garage/Stellplatz | 3 |
Kosten
| Kaufpreis |
335.000 € |
|---|---|
| Provision |
3,57% Käuferprovision vom Kaufpreis inkl. gesetzl. MwSt. (fällig und verdient mit Unterschrift des notariellen Kaufvertrages) |
Finanzierungsrechner:
Kaufpreis:
600.000 €
Eigenkapital:
600.000 €
Monatliche Rate
0 €
Effektiver Jahreszins
0 %
Sollzinsbindung
10 Jahre
Bausubstanz & Energieausweis
| Baujahr | 1974 |
|---|---|
| Letzte Sanierung | 2000 |
| Objektzustand | Gepflegt |
| Qualität der Austattung | Normal |
| Heizungsart | Zentralheizung |
| Wesentliche Energieträger | Gas |
| Energieausweis | liegt vor |
| Energieausweistyp | Bedarfsausweis |
| Energieverbrauchskennwert | 115,7 kWh/(m²*a) |
| Energieeffizienzklasse | D |
115,7
kWh/(m²*a)
Energieeffizienzklasse D
- A+
- A
- B
- C
- D
- E
- F
- G
- H
- 0
- 25
- 50
- 75
- 100
- 125
- 150
- 175
- 200
- 225
- >250
Beschreibung des Objekts
Ausstattung
Objektart: Zweifamilienhaus
Baujahr: 1974, Erweiterung und Aufstockung 1998
Wohnfläche: ca. 226 m²
Nutzfläche: ca. 100 m²
Grundstück Fläche: Flurstück-Nr.: 916/a – 1.560 m²
Stellplätze: 2
Garage: 1 Stellplatz
Nebengelass:
massive Garage mit Werkstatt Baujahr 2010
zweietagiges Schuppengebäude
Wirtschaftsgebäude als Unterstand
Anzahl Etagen: 2
Kanalisation: angeschlossen
Unterkellerung: vollunterkellert
Eintragungen im Grundbuch: Ein lastenfreies Grundbuch ist vorgesehen; bestehende Belastungen (Miteigentümerrechte und Reallast) sollen im Rahmen des Verkaufs gelöscht werden
Dach: Metalleindeckung erneuert 1998
Heizung/Energieträger:
Gas-Zentralheizung erneuert ca. 2000,
Einbau Festbrennstoffofen 2016 als Ergänzung zur Gasheizung
Elektrik:
Kellergeschoss aus Baujahr 1974,
Erdgeschoss teilweise erneuert (Unterverteilung und Zählerplatz, einige Steckdosen in Küche)
Dachgeschoss neu im Rahmen der Baumaßnahmen 2000
Fenster: Kunststoff mit 2-fach-Isolierverglasung erneuert 1998 im Erd- und Dachgeschoss, alle mit Rollläden, Kellergeschoss Holzfenster aus Baujahr 1974
Einbauküche im Dachgeschoss
Zimmertüren:
Holztüren im Erdgeschoss aus Baujahr 1974
im Dachgeschoss neu im Rahmen der Baumaßnahmen 2000
Bodenbeläge: PVC, Laminat, Parkett, Textilböden und Fliesen
Raumaufteilung:
Kellergeschoss: Heizung, Mehrzweckraum für Waschmaschinen, verschiedene Kellerräume als Abstell- und Lagerräume, Ausgang in den Garten und Garage
Erdgeschoss: kleines und großes Wohnzimmer, Schlafzimmer, Arbeitszimmer, Küche, Tageslichtbad mit Badewanne, separates WC und Flur
Dachgeschoss: Wohnzimmer mit Loggiazimmer, Arbeitszimmer, Schlafzimmer, Küche, Tageslicht-Bad mit Badewanne/Dusche, separates WC und Flur
Dachboden: Kaltdach, zur Zeit unausgebaut, großzügige Ausbaumöglichkeit vorhanden
Lage
Zschorlau liegt in einer attraktiven Lage am Rand des Erzgebirges und bietet eine ausgewogene Infrastruktur, die sowohl alltägliche Versorgung als auch langfristige Lebensqualität sicherstellt.
Vor Ort befinden sich Kindertagesstätten mit modernen Betreuungsangeboten sowie eine Grundschule mit kurzen Wegen, die eine wohnortnahe Bildung ermöglicht. Weiterführende Schulen, darunter Oberschulen und Gymnasien, sind bequem in den nahegelegenen Städten Aue-Bad Schlema und Schneeberg erreichbar. Die gute Verkehrsanbindung über die Bundesstraße B169 sorgt für schnelle Wege, auch der öffentliche Nahverkehr verbindet Zschorlau zuverlässig mit den umliegenden Zentren.
Einkaufsmöglichkeiten für den täglichen Bedarf sind direkt im Ort vorhanden, darunter Supermärkte, Bäckereien, Metzgereien und kleinere Fachgeschäfte. Für größere Besorgungen und eine noch breitere Auswahl stehen in wenigen Fahrminuten die Einkaufsmöglichkeiten in Aue-Bad Schlema, Schneeberg und Schwarzenberg zur Verfügung. Ergänzt wird das Angebot durch Apotheken, ärztliche Versorgung sowie verschiedene Dienstleister des täglichen Bedarfs.
Die regionale Wirtschaft ist geprägt durch eine gesunde Mischung aus mittelständischen Betrieben, Handwerk und Industrie. Im nahen Umkreis befinden sich mehrere Gewerbegebiete mit unterschiedlichen Branchen – von Metallverarbeitung über Maschinenbau bis hin zu Dienstleistungsunternehmen – was stabile Beschäftigungsmöglichkeiten und eine dynamische wirtschaftliche Entwicklung fördert.
Zschorlau verbindet somit eine naturnahe Wohnlage mit einer funktionierenden Infrastruktur und kurzen Wegen zu Arbeitsplätzen und Versorgungsangeboten. Insgesamt ein reizvoller Ort im Erzgebirge, der Naturfreunden, Geschichtsinteressierten und allen, die die traditionelle Kultur und die Schönheit dieser Region schätzen, viel zu bieten hat.
Die Anton-Günther-Straße liegt ruhig und zurückgezogen in einem angenehmen Wohngebiet von Zschorlau. Als reine Anliegerstraße ohne Durchgangsverkehr bietet sie eine entspannte und sichere Wohnatmosphäre. Umgeben von gepflegten Einfamilienhäusern und viel Grün genießen Sie hier ein ruhiges Umfeld mit einer harmonischen Nachbarschaft. Die Lage besticht durch ihre Nähe zur Natur, weite Ausblicke und zahlreiche Möglichkeiten für Spaziergänge in der unmittelbaren Umgebung. Ein Standort, der ruhiges Wohnen mit einer attraktiven Umgebung verbindet.
Sonstige Angaben
Käufer-Highlight
Einen virtuellen 360 Grad-Rundgang erhalten Sie gern auf Anfrage.
Erfolgreich verkaufen mit Hein Immobilien – Ihr vertrauensvoller Partner
Sie möchten Ihre Immobilie verkaufen? Wir sind Ihr Partner für einen erfolgreichen Verkauf.
1. Wir verfügen über tiefgehende Kenntnis des bestehenden Immobilienmarktes und entwickeln gerne eine individuelle Verkaufsstrategie für Sie. Wir bewerten Ihre Immobilie unverbindlich, kostenfrei und marktgerecht.
2. Wir sind für Sie da und begleiten Sie von der kostenlosen Beratung bis hin zum Notartermin, immer getreu unserer Philosophie: kompetent, zuverlässig und diskret.
3. Mit uns erhalten Sie eine kostenlose Marktpreiseinschätzung, eine Drohnenbefliegung und einen kostenlosen Energiepass. Zudem ist die Objektübergabe nach Verkauf ebenfalls kostenfrei mit inbegriffen.
Die Angaben und Unterlagen zum Objekt basieren auf Informationen Dritter, die der Firma Hein Immobilien erteilt wurden. Für deren Richtigkeit wird keine Haftung übernommen. Insbesondere haben wir die Wohnflächenangaben des Verkäufers nicht durch eine eigene Wohnflächenberechnung überprüft. Auch kommt es teilweise vor, dass die Angabe des Baujahrs nicht exakt stimmt und es zu geringfügigen Abweichungen kommt. Dies bitten wir in Ihrer Objekteinschätzung mit einfließen zu lassen.
Die Käuferprovision beträgt 3,57 % inkl. ges. MwSt. fällig und verdient mit Unterschrift des notariellen Kaufvertrages.
Diese angebotene Immobilie wird auf der Basis eines exklusiven Alleinauftrages vermarktet. Aus diesem Grund können Objektbesichtigungen nur mit uns vereinbart werden und mit unserer Anwesenheit stattfinden. Wir stehen Ihnen dafür gerne zur Verfügung.
Grundriss
Kellergeschoss
>
>
Erdgeschoss
>
>
Dachgeschoss
>
>
Dachboden
>
>
Adresse
08321 Zschorlau
Interessante Orte
Preis- und Lageinformationen
Preistrend für Bestandsimmobilien in Zschorlau