Historisches Anwesen trifft modernen Wohnkomfort – 300 m² Wohnfläche, beheizter Pool & Wellnessbereich vor den Toren von Chemnitz!
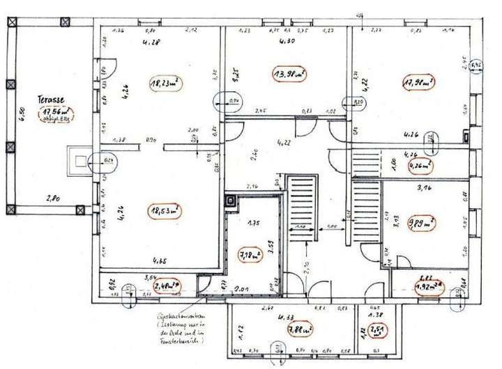
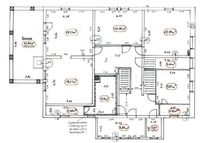
Das Haus erstreckt sich über drei Ebenen – Erdgeschoss, Obergeschoss und ausgebautes Dachgeschoss.
Der Grundriss bietet flexible Nutzungsmöglichkeiten und viel Platz für Familie, Homeoffice und Hobby.
Erdgeschoss – Leben, Kochen, Entspannen:
- Großzügiges Wohnzimmer mit Kamin und Terrassenzugang
- Lichtdurchfluteter Wintergarten, nicht einsehbar, mit Kamin & Fußbodenheizung
- Küche mit direkter, kurzer Wegeführung zum Wintergarten
- Komplett saniertes Bad von 2024
- hochwertige Armaturen
- XXL-Dusche
- Fußbodenheizung
- Finnische Sauna
- Weiteres Zimmer ( Barzimmer)
- Gästetoilette
- Gewölbe Weinraum mit Handbemalter Decke
- Großer Eingangsbereich mit viel Platz und Licht
Obergeschoss – Rückzug & Komfort:
- Zweites Tageslichtbad mit Wanne & Dusche
- Weitere Schlafzimmer mit flexibler Nutzung
- Balkon mit Blick in den Garten
Dachgeschoss – zusätzlicher Raumgewinn
-Ausgebaut und vielseitig nutzbar (Jugendzimmer, Atelier, Büro, Fitnessbereich, Bibliothek)
Außenbereich – Privatsphäre & Freizeit
Der Garten bietet Sonne, Ruhe und viel Platz – komplett umzäunt für Sicherheit und Privatsphäre.
Highlights:
- Beheizbarer Außenpool (ca. 18 m²) mit Gegenstromanlage
- Große Südterrasse für lange Sommerabende
- Gartenhaus / Gerätehaus
- Großzügiger Hofraum & Wiesen
- Separates Heizhaus mit moderner Pelletheizung
Doppelgarage – außergewöhnlich viel Platz
Die Doppelgarage ist deutlich größer als Standard und bietet:
- Platz für zwei große Fahrzeuge
- Zusätzlich Raum für Motorräder, Fahrräder oder Lagerfläche
- Integrierte Werkstatt
- Perfekt für Handwerker, Hobbyschrauber oder jedes Projekt, das Platz braucht
Im Zusammenspiel mit dem großen Hof ergibt sich eine selten große Nutzfläche für Fahrzeuge und Hobby.
Wir freuen auf einen gemeinsamen Besichtigungstermin im komplett bezugsfertigen Objekt!
Großes EFH mit 2xBad, Doppelgarage, Kamin, Pool, Sauna & großer Terrasse vor den Toren von Chemnitz
09235 Burkhardtsdorf
Die vollständige Adresse der Immobilie erhalten Sie vom Anbieter.
Auf Karte anzeigen
Die vollständige Adresse der Immobilie erhalten Sie vom Anbieter.
Finanzierungszertifikat
In nur zwei Minuten zu Ihrem persönlichen Finanzierungszertifkat.
Infos
| Haustyp | Einfamilienhaus |
|---|---|
| Etagenzahl | 2 |
| Wohnfläche ca. | 300 m2 |
| Grundstücksfläche | 1.300 m2 |
| Bezugsfrei ab | 01.02.2026 |
| Zimmer | 10 |
| Badezimmer | 2 |
| Garage/Stellplatz | Garage |
| Anzahl Garage/Stellplatz | 2 |
Kosten
| Kaufpreis |
298.000 € |
|---|---|
| Preis für Garage/Stellplatz | 0 € |
| Provision |
3,57 % inklusive gesetzlicher MwSt. bei Kaufvertragsabschluss |
Finanzierungsrechner:
Kaufpreis:
600.000 €
Eigenkapital:
600.000 €
Monatliche Rate
0 €
Effektiver Jahreszins
0 %
Sollzinsbindung
10 Jahre
Bausubstanz & Energieausweis
| Baujahr | 1725 |
|---|---|
| Letzte Sanierung | 2018 |
| Bauphase | Haus fertig gestellt |
| Objektzustand | Gepflegt |
| Qualität der Austattung | Normal |
| Wesentliche Energieträger | Pelletheizung |
| Energieausweis | liegt zur Besichtigung vor |
Beschreibung des Objekts
Lage
Burkhardtsdorf bietet die perfekte Balance aus Natur und guter Infrastruktur.
Fußläufig erreichbar:
Einkaufsmöglichkeiten
Mehrere Imbisse & kleine Gastronomie
Physiotherapie & Apotheke
Kindergarten
Grundschule
Oberschule
Bus & Bahnhaltestelle
Und trotzdem:
In wenigen Gehminuten ist man direkt auf Feldern und im Wald – ideal für Spaziergänge, Laufen, Hunde, Kinder oder Ruhezeiten.
Chemnitz ist in ca. 12 Minuten erreichbar; Stollberg & A72 ebenfalls schnell angebunden.
Sonstige Angaben
Alle Daten beziehen sich auf die uns vorliegenden Pläne, uns übergebenen Unterlagen sowie Aussagen des Eigentümers. Für die Richtigkeit dieser Angaben, Irrtümer oder Änderungen können wir keine Haftung übernehmen.
Strom, Trinkwasser, Kanalanschluss und SAT-Anschluss vorhanden.
Alle Maße sind ca. Werte, Zwischenverkauf und Irrtum vorbehalten.
Der Energieausweis ist bereits durch uns beim Eigentümer angefragt, dieser liegt uns aber noch nicht vor und wird spätestens zur Besichtigung nachgereicht.
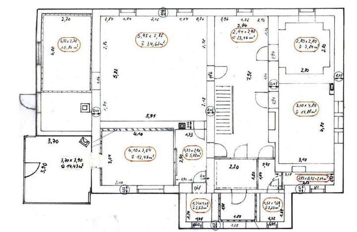
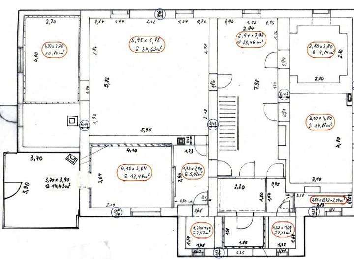
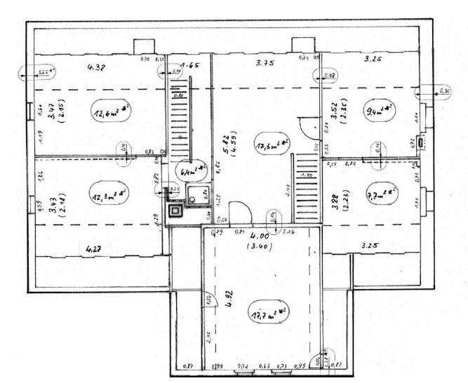
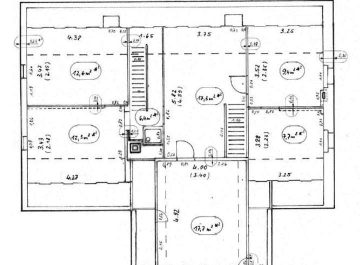
Grundriss
GR_EG
>
>
GR_OG
>
>
GR_DG
>
>
Adresse
09235 Burkhardtsdorf
Interessante Orte
Preis- und Lageinformationen
Preistrend für Bestandsimmobilien in Burkhardtsdorf