- Attraktives Mehrfamilienhaus in Wettelbrunn bei Staufen
- Baujahr 1964, umfassend modernisiert
- Grundstücksgröße: ca. 845 m², Wohnfläche: ca. 273 m², Nutzfläche: ca. 13 m²
- Wohnraumlüfter mit Energierückgewinnung in allen Etagen
- Drei Wohneinheiten, insgesamt 11 Zimmer und 3 Badezimmer
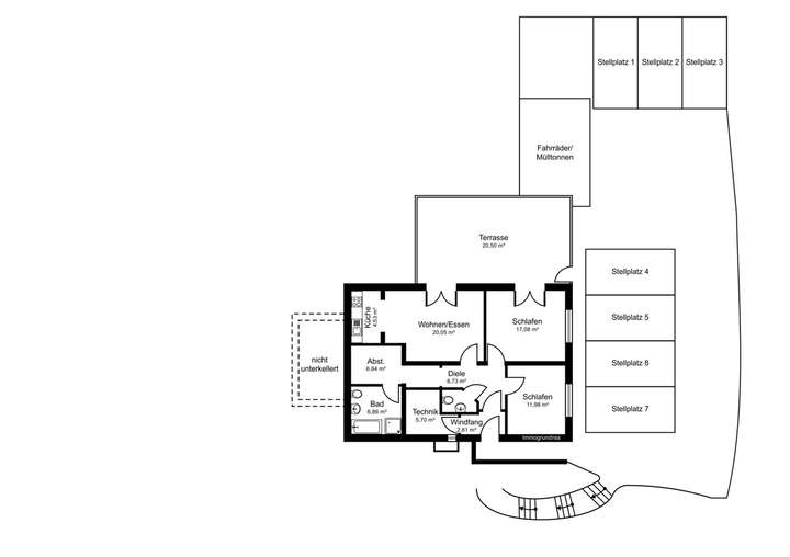
- Souterrain-WE: 3 Zimmer, Küche, Bad, Gäste-WC, separater Eingang, Terrasse
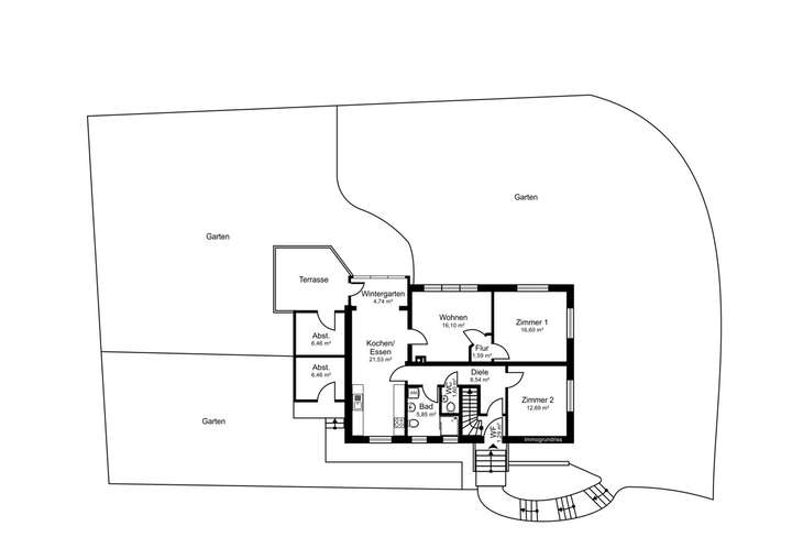
- Erdgeschoss-WE: 4 Zimmer, Wintergarten, offene Küche, Bad, Gäste-WC, Terrasse
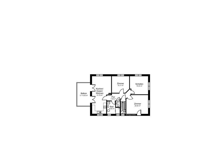
- Obergeschoss-WE: 4 Zimmer, Balkon, offene Küche, Bad, Gäste-WC
- Obergeschoss 2010 neu aufgesetzt in moderner Holzbauweise
- Gasheizung von 2010 und PV-Anlage mit Einspeisevergütung
- Hochwertige Ausstattung, darunter Parkettböden und Fliesen
- Ruhige Lage mit guter Anbindung
- Fahrradstellplatz vorhanden
Sprechen Sie uns an für weitere Informationen und Unterlagen!
IMMORath.de - Modernisiertes Mehrfamilienhaus mit hochwertiger Ausstattung
79219 Staufen im Breisgau
Die vollständige Adresse der Immobilie erhalten Sie vom Anbieter.
Auf Karte anzeigen
Die vollständige Adresse der Immobilie erhalten Sie vom Anbieter.
Finanzierungszertifikat
In nur zwei Minuten zu Ihrem persönlichen Finanzierungszertifkat.
Infos
| Haustyp | Mehrfamilienhaus |
|---|---|
| Etagenzahl | 3 |
| Wohnfläche ca. | 272 m2 |
| Nutzfläche | 12,92 m2 |
| Grundstücksfläche | 845 m2 |
| Bezugsfrei ab | Frei nach Absprache |
| Zimmer | 11 |
| Badezimmer | 3 |
| Garage/Stellplatz | Außenstellplatz |
| Anzahl Garage/Stellplatz | 4 |
Kosten
| Kaufpreis |
950.000 € |
|---|---|
| Provision |
3,57% |
Finanzierungsrechner:
Kaufpreis:
600.000 €
Eigenkapital:
600.000 €
Monatliche Rate
0 €
Effektiver Jahreszins
0 %
Sollzinsbindung
10 Jahre
Bausubstanz & Energieausweis
| Baujahr | 1964 |
|---|---|
| Objektzustand | Modernisiert |
| Qualität der Austattung | Normal |
| Heizungsart | Zentralheizung |
| Wesentliche Energieträger | Gas |
| Energieausweis | liegt vor |
| Energieausweistyp | Verbrauchsausweis |
| Energieverbrauchskennwert | 79,2 kWh/(m²*a) |
| Energieeffizienzklasse | C |
79,2
kWh/(m²*a)
Energieeffizienzklasse C
- A+
- A
- B
- C
- D
- E
- F
- G
- H
- 0
- 25
- 50
- 75
- 100
- 125
- 150
- 175
- 200
- 225
- >250
Beschreibung des Objekts
Lage
Dieses charmante Mehrfamilienhaus befindet sich in der schönen Umgebung von Staufen im Breisgau, eingebettet in eine ruhige und zugleich gut angebundene Lage. Die Immobilie bietet Ihnen drei Wohneinheiten.
Die Nähe zum hübschen Städtchen Staufen im Breisgau mit seinen vielseitigen Einkaufsmöglichkeiten, in nur etwa 5 Kilometern Entfernung, ermöglicht es Ihnen, den Alltag sowohl effizient als auch angenehm zu gestalten. Hier befinden sich auch ein Kindergarten und weitere Bildungseinrichtungen, wie Grund- und Realschule sowie ein Gymnasium. Darüber hinaus sind wichtige Gesundheitseinrichtungen wie Arztpraxen und Apotheken ebenfalls gut erreichbar.
Eine gute Verkehrsanbindung wird durch die nahe gelegene Bushaltestelle gewährleistet, die sich nur 450 Meter vom Haus entfernt befindet.
Genießen Sie das idyllische Flair von Staufen im Breisgau, einer Region, die für ihre beeindruckenden Weinberge und ihre historische Altstadt bekannt ist, und gönnen Sie sich ein Zuhause, das Ruhe, Natur und Komfort harmonisch vereint.
Sonstige Angaben
Sie haben Interesse und möchten zeitnah die Immobilie besichtigen? Kein Problem! Schicken Sie uns gerne Ihre Anfrage, Sie werden von der Immobilie begeistert sein!
Alle vom Eigentümer bereitgestellten Informationen werden als zuverlässig erachtet, aber nicht garantiert und sollten unabhängig verifiziert werden. Wir übernehmen keinerlei Gewähr für die Richtigkeit der Angaben.
Der Courtageanteil des Käufers beträgt 3,57% des tatsächlichen Kaufpreises inklusive der gesetzlichen Mehrwertsteuer.
Der Courtageanteil ist im Kaufpreis nicht enthalten und ist vom Käufer an uns zu zahlen. Er ist fällig und zahlbar bei Notariat.
Grundriss
Untergeschoss
>
>
Erdgeschoss
>
>
Obergeschoss
>
>
Adresse
79219 Staufen im Breisgau
Interessante Orte
Preis- und Lageinformationen
Preistrend für Bestandsimmobilien in Staufen im Breisgau