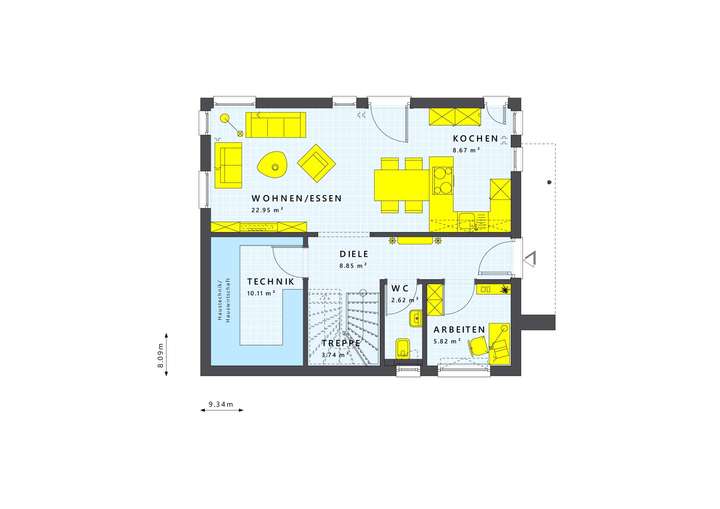
Dieses wunderschöne Einfamilienhaus in Lohmar wird ganz nach deinen Vorstellungen projektiert und bietet dir mit 5 Zimmern, darunter 3 Schlafzimmer und 2 Badezimmer, ausreichend Platz für die ganze Familie. Die großzügige Wohnfläche von 125 m² erstreckt sich über zwei Etagen und ist perfekt geeignet, um deinen individuellen Lebensstil zu verwirklichen. Der klassische Satteldachstil mit einer Neigung von 38 Grad verleiht dem Haus eine zeitlose Eleganz, während der Erker oder Giebel deinen Wohnbereich vergrößern und für ein offenes Raumgefühl sorgen. Die bodentiefen Fenster lassen viel Licht in deine Wohnräume strömen und schaffen eine helle, einladende Atmosphäre.
Doch LivingHaus bietet dir nicht nur ein Haus, sondern auch zahlreiche zusätzliche Leistungen, die deinen Bauprozess vereinfachen und dein Zuhause zu einem echten Traum machen. Mit der Traumküche von LivingHaus erhältst du eine hochwertige Küche, die exakt auf deinen Grundriss abgestimmt ist. Sie überzeugt mit modernster Technik, cleveren Stauraumlösungen und einem ansprechenden Design. Und das Beste: Sie wird rechtzeitig zu deinem Einzug geliefert, sodass du sofort mit dem Kochen beginnen kannst.
Das LivingHaus Bau-Cockpit ist deine digitale Begleitung während des gesamten Bauprojektes. Mit der praktischen Bau-App behältst du den Überblick über Zeitpläne, Dokumente und alle wichtigen Informationen.
Mit I-KON, dem intelligenten Bauen von LivingHaus, wird dein Zuhause nicht nur nachhaltig, sondern auch energieeffizient. Das I-KON Effizienzhaus 55 benötigt nur 55 % der Energie eines Standardhauses und überzeugt durch innovative Dämmung und intelligente Heizlösungen.
Finanziere dein Traumhaus mit dem Zuhause-Darlehen, das dir bis zu 250.000 EUR zu besonders günstigen Zinssätzen bietet. Das Zuhause-Paket stellt sicher, dass dein Haus bereits mit hochwertigen Grundausstattungen wie modernen Böden, edlen Türen und stilvollen Sanitäranlagen geliefert wird.
Wenn du den Innenausbau selbst in die Hand nehmen möchtest, ist das DIY-Ausbau-Coaching ideal für dich. In nur drei Tagen zeigen dir Experten, wie du deinen Innenausbau meistern kannst, mit praktischen Tipps und Unterstützung.
Mit diesen umfassenden Leistungen wird dein Bauvorhaben nicht nur stressfrei, sondern auch zu einem einzigartigen Erlebnis, um dein ganz persönliches Zuhause zu gestalten.
Dein individuelles LivingHaus: Ein Traumhaus ganz nach deinen Wünschen
53797 Lohmar
Die vollständige Adresse der Immobilie erhalten Sie vom Anbieter.
Auf Karte anzeigen
Die vollständige Adresse der Immobilie erhalten Sie vom Anbieter.
Finanzierungszertifikat
In nur zwei Minuten zu Ihrem persönlichen Finanzierungszertifkat.
Infos
| Haustyp | Einfamilienhaus |
|---|---|
| Etagenzahl | 2 |
| Wohnfläche ca. | 125 m2 |
| Nutzfläche | 125 m2 |
| Grundstücksfläche | 558 m2 |
| Zimmer | 5 |
| Schlafzimmer | 3 |
| Badezimmer | 2 |
Kosten
| Kaufpreis |
639.317 € |
|---|
Finanzierungsrechner:
Kaufpreis:
600.000 €
Eigenkapital:
600.000 €
Monatliche Rate
0 €
Effektiver Jahreszins
0 %
Sollzinsbindung
10 Jahre
Bausubstanz & Energieausweis
| Baujahr | unbekannt |
|---|---|
| Bauphase | Haus in Planung (projektiert) |
| Qualität der Austattung | Gehoben |
Beschreibung des Objekts
Ausstattung
Dein LivingHaus bietet eine umfassende Ausstattung, die keine Wünsche offenlässt. Highlights sind die 18-monatige Festpreisgarantie, komplette Bauversicherungen und höchste Qualitätsstandards. Zur Grundausstattung gehören:
Hochwertige Innenausbaumaterialien
Fliesen für das gesamte Erdgeschoss
Bodengleiche Duschen mit Echtglasabtrennung
Aluminiumgeschäumte Rollläden für optimalen Wärme- und Hitzeschutz
Moderne Wärmepumpentechnik mit Komfortlüftung
Integrierte PV-Anlage mit Speicherbatterie
Zwei Tage Ausstattungsberatung in der Haus-Statterei
Dein »Wie ich es will Fertighaus« wartet nur darauf, von dir mit Leben gefüllt zu werden!
Lage
Lohmar bietet dir eine perfekte Kombination aus ländlichem Charme und urbaner Erreichbarkeit. Die Umgebung ist ideal für Familien, Naturliebhaber und Pendler. In Lohmar gibt es zahlreiche Schulen, wie die Gesamtschule Lohmar, die für ihre gute Bildung bekannt ist und in der Umgebung mit einer hervorragenden Bewertung abschneidet. Für die Kleinsten stehen mehrere Kindergärten zur Verfügung.
In der Region Lohmar gibt es zudem eine Vielzahl an Freizeitangeboten. Der nahegelegene Wahlscheider Wald bietet zahlreiche Wanderwege und Radstrecken, die zu Erkundungstouren einladen. Für sportliche Aktivitäten stehen dir Sportvereine und Fitnessstudios zur Verfügung.
Die Anbindung an den öffentlichen Nahverkehr ist optimal. Der öffentliche Nahverkehr ist fußläufig erreichbar und die Autobahn A3 ist ebenfalls nur 8 Minuten entfernt, was dir eine hervorragende Anbindung an das überregionale Straßennetz bietet. Die Region Lohmar vereint somit die Vorzüge einer ruhigen Wohngegend mit der Nähe zu urbanen Zentren und ist damit der ideale Ort für dein zukünftiges Zuhause.
Sonstige Angaben
Der Grundstückspreis ist im Anzeigenpreis bereits enthalten.
Das Grundstück erwerben Sie direkt vom Eigentümer über einen Makler.
Heimkommen - ankommen - herunterkommen - wohlfühlen
Vereinbaren Sie gleich Ihren persönlichen Beratungstermin und sichern Sie sich Ihrer Familie ein geniales Bauland für Ihr neues Zuhause mit Living Haus.
Jedoch bitte ich zu berücksichtigen:
Ich baue mit sehr viel Herz und Kompetenz Häuser. Im Interesse der jeweiligen Grundstückseigentümer sowie meiner Bauherren leite ich ohne ein persönliches Gespräch zum Thema Hausbau keine Grundstücksdaten weiter.
Und... natürlich ist es mir selbst mit bestem Willen nicht möglich, eine dauerhafte Verfügbarkeit der Grundstücke zu garantieren. Es gibt jedes Grundstück halt nur einmal - Leider.
Kennen Sie schon den Living Haus Beratungsservice? Nein? Dann rufen Sie uns an und wir stimmen einen kostenlosen persönlichen Termin ab. Ihr Wohl liegt uns am Herzen.
Die Architektenleistungen sind bereits enthalten.
Für die gesamte Bauphase und darüber hinaus ist Ihr Projekt versichert, diese Leistungen sind im Preis bereits inbegriffen. Fragen Sie Ihren Berater.
Das Grundstück wird über einen anderen Anbieter verkauft. Keine Gewähr auf Angaben. Der Preis versteht sich zzgl. Kauf- und Baunebenkosten. Änderungen des Preises oder der Ausstattungen sowie Irrtümer oder Zwischenverkauf sind vorbehalten. Abbildungen und Grundrisse können Extras zeigen, die nicht im Angebot enthalten sind. Alle Angaben nach bestem Wissen und Gewissen, jedoch ohne Gewähr.
Finanzierungsberater stehen bei uns kostenlos zu Ihrer persönlichen Beratung bereit.
Wir laden Sie gerne zu einem persönlichen Gespräch in unsere Hausstatterei in Bedburg ein. Nur vollständig ausgefüllte Anfragen können auch beantwortet werden. Vereinbaren Sie noch heute einen Termin mit uns und kommen Sie Ihrem Traum von den eigenen 4 Wänden ein Stück näher.
Matthias Utsch 0171 / 4704111 oder per Mail: matthias.utsch(at)livinghaus.de
Wir freuen uns auf Sie! :-)
Grundriss
Cleverer Wohnraum kompakt
>
>
Familienfreundlicher Grundriss
>
>
Adresse
53797 Lohmar
Interessante Orte
Preis- und Lageinformationen
Preistrend für Bestandsimmobilien in Lohmar