Diese stilvolle Doppelhaushälfte aus dem Baujahr 2016 liegt in einer der gefragtesten Wohnlagen Oldenburgs – ruhig, familienfreundlich und eingebettet in ein charmantes Quartier mit nur 12 Einheiten im Stadtteil Ofenerdiek.
Auf ca. 101 m² Wohnfläche erwartet Sie ein durchdachtes Raumkonzept mit drei lichtdurchfluteten Zimmern, das sowohl Paaren als auch Familien ein ideales Zuhause bietet. Das Erdgeschoss empfängt Sie mit einem großzügigen Wohn- und Essbereich samt offener Küche – perfekt für gesellige Abende. Ergänzt wird die Etage durch ein Gäste-WC, einen Abstellraum sowie hochwertig geflieste Böden. Im Obergeschoss befinden sich ein gemütliches Schlafzimmer, ein vielseitig nutzbares Zimmer, ein modernes Tageslichtbad sowie ein separater Technik- und Stauraum. Laminat liegt hier nur in den Schlafzimmern und im Flur – praktisch und stilvoll zugleich.
Auch technisch weiß diese Immobilie zu überzeugen: Kunststofffenster mit 3-fach-Verglasung und Schallschutz, weiße Türen, eine moderne Einbauküche und durchgehende Fußbodenheizung schaffen zeitgemäßen Wohnkomfort. Die aktive Wohnraumbelüftung mit Wärmerückgewinnung, kombiniert mit der hochwertigen Dämmung, sorgt für ein erstklassiges Raumklima und senkt den Energiebedarf deutlich.
Die Doppelhaushaushälften wurde seinerzeit als „KfW-70-Effizienzhaus“ errichtet. Die vorhandene Lüftungsanlage verfügt über eine Wärmerückgewinnung, was zusammen mit der Fußbodenheizung zu einem besonders geringen Energieverbrauch führt. Eine Gas-Brennwerttherme sorgt für zusätzliche Effizienz.
Eine große Terrasse mit ca. 20 m² Fläche sowie der vorbereitete Glasfaseranschluss machen dieses Zuhause rundum zukunftssicher – bereit für Ihr neues Kapitel.
Ob als stilvolles Zuhause für Paare oder als Rückzugsort für Familien mit Platzbedarf – diese Doppelhaushälfte vereint Wohnqualität, moderne Technik und eine hervorragende Lage.
6665 - ANFRAGESTOPP! Neuwertige Doppelhaushälfte (Kfw-70) mit EBK in Oldenburg/Ofenerdiek
26125 Oldenburg (Oldenburg)
Die vollständige Adresse der Immobilie erhalten Sie vom Anbieter.
Auf Karte anzeigen
Die vollständige Adresse der Immobilie erhalten Sie vom Anbieter.
Finanzierungszertifikat
In nur zwei Minuten zu Ihrem persönlichen Finanzierungszertifkat.
Infos
| Haustyp | Doppelhaushaelfte |
|---|---|
| Wohnfläche ca. | 100 m2 |
| Grundstücksfläche | 150 m2 |
| Bezugsfrei ab | Nach Vereinbarung |
| Zimmer | 3 |
| Schlafzimmer | 2 |
| Badezimmer | 1 |
Kosten
| Kaufpreis |
340.000 € |
|---|---|
| Provision | Nein |
Finanzierungsrechner:
Kaufpreis:
600.000 €
Eigenkapital:
600.000 €
Monatliche Rate
0 €
Effektiver Jahreszins
0 %
Sollzinsbindung
10 Jahre
Bausubstanz & Energieausweis
| Baujahr | 2016 |
|---|---|
| Objektzustand | Neuwertig |
| Heizungsart | Fußbodenheizung |
| Wesentliche Energieträger | Gas |
| Energieausweis | liegt vor |
| Energieausweistyp | Bedarfsausweis |
| Energieverbrauchskennwert | 39,3 kWh/(m²*a) |
| Energieeffizienzklasse | A |
39,3
kWh/(m²*a)
Energieeffizienzklasse A
- A+
- A
- B
- C
- D
- E
- F
- G
- H
- 0
- 25
- 50
- 75
- 100
- 125
- 150
- 175
- 200
- 225
- >250
Beschreibung des Objekts
Ausstattung
Ausstattungsmerkmale dieser attraktiven Haushälfte sind u. a.
- Kunststofffensterelemente mit 3-fach-Verglasung
- eine vollflächige Fußbodenheizung
- eine Lüftungsanlage
- weiße Innentüren
- Fliesen bzw. Laminatfußboden
- energiesparende Gas-Brennwerttherme
- Einbauküche
- Terrasse
- Abstellraum im Außenbereich
- Pkw-Außenstellplatz
Eine detaillierte Beschreibung würde den Rahmen sprengen, daher empfehlen wir Ihnen eine Besichtigung, sodass Sie sich selbst ein Bild von der attraktiven Immobilie machen können.
Lage
Leben in Oldenburg/Ofenerdiek: Ruhig, grün und familienfreundlich
Die Immobilie befindet sich im beliebten Oldenburger Stadtteil Ofenerdiek – einer gewachsenen und sehr gefragten Wohngegend im Nordwesten der Stadt. Ofenerdiek vereint auf angenehme Weise die Ruhe eines grünen Wohnviertels mit der Nähe zur Innenstadt und einer hervorragenden Infrastruktur. Die Nachbarschaft ist geprägt von gepflegten Einfamilienhäusern, kleinen Wohnanlagen und großzügigen Grundstücken – ein Umfeld, das besonders bei Familien und ruhesuchenden Paaren sehr geschätzt wird.
Alle Einrichtungen des täglichen Bedarfs – wie Supermärkte, Bäcker, Apotheken, Ärzte sowie Kindergärten und Schulen – befinden sich in unmittelbarer Nähe und sind bequem zu Fuß oder mit dem Fahrrad erreichbar. Auch für Freizeitaktivitäten ist gesorgt: Der nahegelegene Bürgerbusch sowie der idyllische Ofenerdieker See laden zu Spaziergängen, Joggingrunden oder entspannten Nachmittagen im Grünen ein.
Die Anbindung an den öffentlichen Nahverkehr ist hervorragend – Bushaltestellen befinden sich in der Nähe, und auch der Bahnhof Ofenerdiek ist schnell erreichbar. Mit dem Auto gelangen Sie in wenigen Minuten zur Oldenburger Innenstadt sowie zur A28 und A29, was eine gute Verbindung in alle Richtungen – ob Richtung Bremen, Leer oder Wilhelmshaven – ermöglicht.
Ofenerdiek bietet eine hohe Lebensqualität und ein sicheres, ruhiges Wohnumfeld mit urbanem Komfort – eine ideale Kombination für alle, die stadtnah wohnen und dennoch nicht auf ein naturnahes Lebensgefühl verzichten möchten.
Sonstige Angaben
Wichtige Hinweise:
Alle Angaben zum Objekt beruhen auf den Angaben des Eigentümers. Für die Vollständigkeit und Richtigkeit dieser Daten übernehmen wir daher grundsätzlich keine Gewähr. Irrtümer sowie Zwischenvermietung bleiben vorbehalten.
Wir bitten um Verständnis dafür, dass wir Informationen zu unseren Objekten nur erteilen, wenn Sie bei ihren Anfragen ihre vollständige Postanschrift, E-Mail und Telefonnummer angeben.
Es ist möglich, dass Sie dieses Objekt auch von anderen Maklern aus der Immobilienbörse Weser-Ems angeboten bekommen. In dem Fall wenden Sie sich an den Makler Ihres Vertrauens.
Nach GEG § 80 Abs. 4 muss im Falle des Verkaufs von Ein- und Zweifamilienhäusern ein kostenfreies, informatorisches Beratungsgespräch mit einer nach § 88 GEG ausstellungsberechtigten Person zum Energieausweis geführt werden.
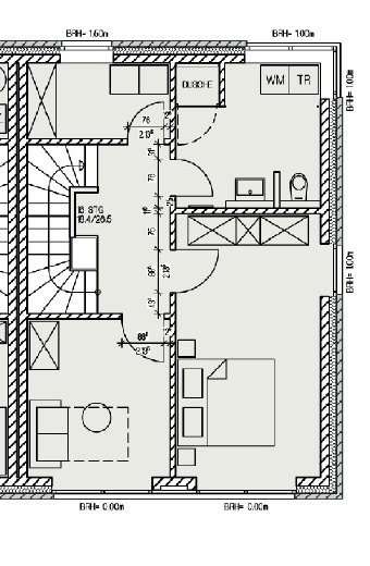
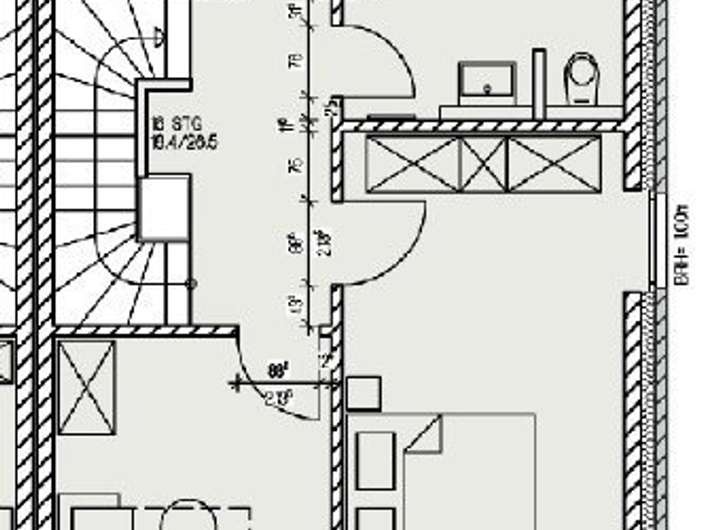
Grundriss
Grundriss EG
>
>
Grundriss OG
>
>
Adresse
26125 Oldenburg (Oldenburg)
Interessante Orte
Preis- und Lageinformationen
Preistrend für Bestandsimmobilien in Ofenerdiek