Bei dieser Immobilie handelt es sich um eine Doppelhaushälfte mit vier Zimmern und 114 m² Wohnfläche auf einem ca. 184 m² großen Grundstück. Ein PKW-Stellplatz ist ebenfalls vorhanden.
Die hier angebotene Einheit gehört zu einem Doppelhaus mit zwei Haushälften. Mit ca. 114 m² und vier Zimmern bietet sie eine durchdachte Raumaufteilung – ideal für Paare oder kleinere Familien. Im Erdgeschoss wird der über 30 m² große Wohn-/Ess- und Küchenbereich ebenfalls durch ein weiteres Zimmer
ergänzt. Ein geschickt angelegtes Duschbad sowie der Hauswirtschaftsraum sind so mit dem Treppenbereich verbunden, dass die Wohnfläche optimal ausgenutzt wird. Eine ca. 20 m² große Südterrasse geht
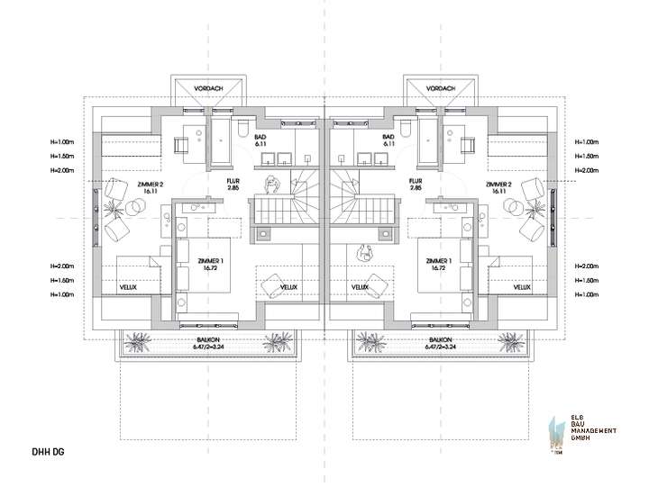
vom Wohnzimmer ab. Im Obergeschoss befinden sich zwei über 16 m² große Schlafzimmer, sowie ein Vollbad. Auch hier bietet ein Südbalkon charmante Austrittsmöglichkeiten. Zur Haushälfte gehört ein PKW-Stellplatz, auch hier sind die Stromkabel für Ladesäulen bereits verlegt.
PROVISIONSFREI - Neubau Doppelhaushälfte mit Stil und Energieeffizienz
25469 Halstenbek
Die vollständige Adresse der Immobilie erhalten Sie vom Anbieter.
Auf Karte anzeigen
Die vollständige Adresse der Immobilie erhalten Sie vom Anbieter.
Finanzierungszertifikat
In nur zwei Minuten zu Ihrem persönlichen Finanzierungszertifkat.
Infos
| Haustyp | Doppelhaushaelfte |
|---|---|
| Etagenzahl | 2 |
| Wohnfläche ca. | 114 m2 |
| Grundstücksfläche | 186 m2 |
| Bezugsfrei ab | 01.02.2026 |
| Zimmer | 4 |
| Schlafzimmer | 3 |
| Badezimmer | 2 |
| Garage/Stellplatz | Außenstellplatz |
| Anzahl Garage/Stellplatz | 1 |
Kosten
| Kaufpreis |
749.000 € |
|---|---|
| Preis für Garage/Stellplatz | 25.000 € |
| Provision | Nein |
| Mieteinnahmen | 2.494 € |
Finanzierungsrechner:
Kaufpreis:
600.000 €
Eigenkapital:
600.000 €
Monatliche Rate
0 €
Effektiver Jahreszins
0 %
Sollzinsbindung
10 Jahre
Bausubstanz & Energieausweis
| Baujahr | 2023 |
|---|---|
| Bauphase | Haus fertig gestellt |
| Objektzustand | Neuwertig |
| Qualität der Austattung | Gehoben |
| Heizungsart | Wärmepumpe |
| Wesentliche Energieträger | Strom |
| Energieausweis | liegt vor |
| Energieausweistyp | Bedarfsausweis |
| Energieverbrauchskennwert | 20,0 kWh/(m²*a) |
| Energieeffizienzklasse | A+ |
20,0
kWh/(m²*a)
Energieeffizienzklasse A+
- A+
- A
- B
- C
- D
- E
- F
- G
- H
- 0
- 25
- 50
- 75
- 100
- 125
- 150
- 175
- 200
- 225
- >250
Beschreibung des Objekts
Ausstattung
Das Gebäude wurde in massiver Holzbauweise eingeschossig mit ausgebautem Dachgeschoss unter einem Satteldach gebaut. Das Haus ist perfekt auf den Grundstückszuschnitt und die Gegebenheiten vor Ort abgestimmt. Gauben, Erker, Balkone und Dachterrassen geben dem Gebäude individuelle und charmante Ansichten, und verleihen dem Haus einen ganz besonderen optischen Reiz.
Die gesamte Ausstattung besticht durch Qualität, gepaart mit klassischem Stil. Seien es die Holzfenster in hellem Grau, die nicht nur durch die Wiener Sprossen, sondern auch durch die teilweise abgerundete Form die Individualität unterstreichen oder die extrabreiten Holzdielen, mit denen sämtliche Wohnräume ausgestattet sind. In den Bädern sowie in den Eingangsbereichen nebst Hauswirtschaftsräumen wurden großformatige sandfarbene Fliesen verlegt. Für Gemütlichkeit, gerade in der kalten Jahreszeit, sorgt im Wohn-/Essbereich ein Kamin.
Raumhöhen von 2,80 m im Erdgeschoss und 2,60 m im Obergeschoss sorgen für ein großzügiges und freies Raumgefühl. Die Terrassen, die Zuwegungen sowie eine Fläche für ein Gartenhaus sind mit ansprechendem Betonpflaster im wilden Verbund gestaltet, die Gartenflächen sind mit Rollrasen und Hecken gestaltet.
- Luft-Wasser-Wärmepumpe für nachhaltige und CO2 neutrale Heizung und Warmwasserversorgung
- Photovoltaik Stromerzeugung und Batteriespeicher
- Bedarfsgeführtes Lüftungssystem mit Wärmerückgewinnung
- Raumweise steuerbare Fußbodenheizung
- Kamin-Ofen im Wohnküchenbereich
- Großzügige Tür- und Raumhöhen
- Hochwertige Echtholz-Hauseingangstür
- Seidengrau lackierte Echtholzfenster mit Wiener Sprossen und dreifach Wärmeschutz-Isolierverglasung
- Dachflächenfenster mit elektrischen Außenrollläden
- Echtholz-Innentreppen aus Eiche
- Mehrschicht-Parkettböden als Landhausdiele aus Eiche mit Hamburger Fußleisten
- Bäder und WC mit Schweizer Badkeramik der Marke Laufen Pro
- Waschmaschinenanschluss im Erdgeschoss
- Balkonbelag aus Thermo-Kiefer
- Vorgepflasterte Fläche für ein Gartenhaus mit Stromanschluss
- PKW-Stellplätze mit Vorrüstung für eine Wallbox/Ladesäule
Lage
Die Freiheit, die ein eigener Garten, eine Terrasse und eine Lage am Stadtrand bieten, hat sich in den letzten Jahren immer mehr als Privileg herausgestellt. Dies in Kombination mit einer guten Anbindung an die Metropole Hamburg bietet beste Voraussetzungen, sich in jeder Lebenssituation zu Hause wohl und sicher zu fühlen. All dies bietet die Gemeinde Halstenbek, an der westlichen Stadtgrenze Hamburgs gelegen und einer der beliebtesten Wohnorte im Hamburger Umland. Die direkte Anbindung an die Metropole sowie die kurzen Wege ins „Grüne“ machen die Gemeinde zum perfekten Standort zwischen urbanem Stadtleben und ruhigem Landleben mit optimaler Anbindung in alle Richtungen. Halstenbek bietet alles, was zu einer hohen Lebensqualität beiträgt.
Zentral im Ortskern liegen diese vier charmanten Häuser und warten darauf, mit Leben gefüllt zu werden. Als perfekter Familienstandort bietet Halstenbek alles, was das Herz begehrt. Die Einrichtungen des täglichen Bedarfes sowie KiTas, Grund- und weiterführende Schulen bilden die Basis. Sportvereine aller Arten, verlockende Natur im Umland, der Ortskern zum Bummeln sowie verschiedene Restaurants bereichern diesen Standort. Sowohl die S-Bahnhaltestelle „Halstenbek“ als auch die in wenigen Minuten erreichbare A23 sorgen für eine optimale Anbindung nach Hamburg und in den Kreis Pinneberg. Die Hamburger Innenstadt ist von hier aus sowohl per PKW als auch per öffentlichen Verkehrsmitteln in ca. 25 Minuten zu erreichen. Durch die sehr effektive Lärmschutzwand entlang der A23 an diesem Standort geht hiervon keine Geräuschemission aus.
Sonstige Angaben
Sie kaufen direkt vom Bauherren, der EBM Elb-Bau-Management GmbH, eine Maklerprovision fällt nicht an.
Die hochwertige Einbauküche gehört zum Objekt und ist im Kaufpreis nicht enthalten. Der Preis hierfür beträgt 15.000 €.
Das Haus wird derzeit zwischenvermietet.
Wir freuen uns auf Ihre Exposéanfrage!
Weitere Dokumente
Energieausweis_GaertnerstraßGrundriss
DH_Schlafzimmer
>
>
DH_Schlafzimmer2
>
>
DH_Schlafzimmer3
>
>
Grundriss_DH_DG
>
>
Grundriss_DHH_EG
>
>
Adresse
25469 Halstenbek
Interessante Orte
Preis- und Lageinformationen
Preistrend für Bestandsimmobilien in Halstenbek