Willkommen Zuhause! In diesem Domizil für die ganze Familie wohnen Sie stilvoll und großflächig in guter Lage von Alten-Buseck. Dieses charmante Haus aus dem Jahre 1961 liegt auf einem ca. 1.427 m² großen Grundstück und bietet auf einer Wohnfläche von ca. 277,47 m² viel Platz für die ganze Familie.
Es erstreckt sich über zwei Etagen, die beide separat abschließbar sind und jeweils über einen eigenen Eingang verfügen. Diese Flexibilität eröffnet zahlreiche Nutzungsmöglichkeiten.
Sie betreten das Haus über einen gemauerten Windfang, der den Übergang zum großzügigen Flur bildet. Hier können Sie idealerweise Ihre Garderobe unterbringen. Auch das Gäste-WC befindet sich hier.
Das Herzstück des Hauses ist der helle, große und offene Wohn- und Essbereich, der richtig viel Platz für die ganze Familie bietet. Egal ob gemütliche Sofaecke mit TV-Bereich oder Esstisch, Sie haben auf jeden Fall viel Platz, den Raum sowohl gemütlich und funktional zu gestalten.
Praktischerweise befindet sich die Küche direkt neben dem Essbereich. So sind kurze Wege und eine optimale Nutzung garantiert.
Sowohl vom Wohn- und Essbereich als auch von der Küche gelangen Sie auf die großzügige Terrasse. Diese ist perfekt für sommerliche Grillabende und entspannte Nachmittage im Freien. Seitlich der Terrasse befindet sich ein kleiner Abstellraum.
Überhaupt, der schöne Garten! Er lädt zum Entspannen ein und bietet viel Platz für Kinder zum Toben und Spielen. Zusätzlich gibt es eine Grünfläche am Eingangsbereich des Hauses.
Wieder zurück im Haus ist besonders hervorzuheben, dass der an den Wohnbereich angrenzende Raum über eine Theke verfügt und sich damit auch ideal für Partys und Familienfeiern eignet.
Das Badezimmer im Erdgeschoss ist mit einem Whirlpool, einer Dusche, einem Doppelwaschbecken sowie einem WC ausgestattet.
Zwei weitere Zimmer im Erdgeschoss eignen sich hervorragend als Schlafzimmer und Ankleidezimmer.
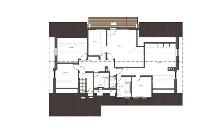
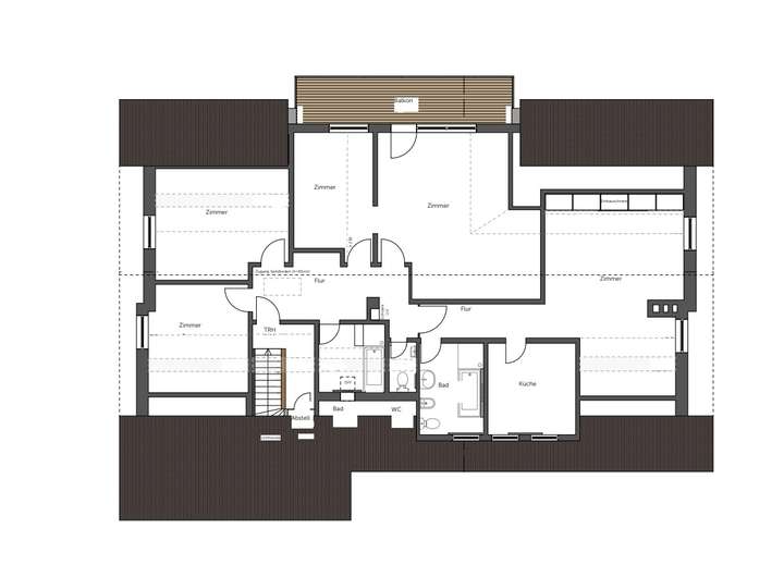
Weiter geht es mit dem Dachgeschoss. Dieses bietet insgesamt fünf vielseitig nutzbare Zimmer – egal ob zusätzliches Schlafzimmer, Home-Office, Hobbyräume oder Gästezimmer, Sie haben die Wahl.
Das Wohnen von mehreren Generationen ist in diesem Haus aufgrund seiner Großzügigkeit kein Problem.
Eines der Zimmer hat Zugang zum Balkon mit herrlichem Blick auf die Umgebung.
Hier ist auch eine Küche vorhanden.
Im Dachgeschoss befinden sich zwei Bäder, die jeweils mit einer Badewanne, einer Dusche, einem WC sowie einem Waschbecken ausgestattet sind.
Komplementiert wird das Dachgeschoss durch ein WC.
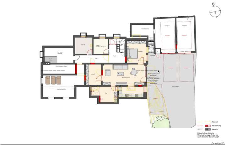
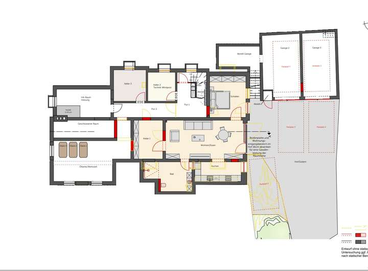
Das Haus ist vollständig unterkellert und bietet mit insgesamt sieben Kellerräumen reichlich Platz für Hobbys und viele Stauraummöglichkeiten.
Eine großzügige Waschküche ist ebenfalls vorhanden. Zudem befindet sich im Untergeschoss noch eine Garage.
Für Kapitalanleger besteht die Option, die Immobilie in drei eigenständige Einheiten umzuwandeln. Die Eigentümer haben dazu bereits Pläne von einem Architekten erstellen lassen.
Weiterhin befindet sich auf dem Grundstück eine Doppelgarage für die Unterbringung Ihrer Fahrzeuge.
Die Immobilie wurde im ursprünglichen Bauantrag als Einfamilienhaus mit Erdgeschoss und Kellergeschoss genehmigt. In den 80er-Jahren wurde das Gebäude, ohne dokumentierte Genehmigung, im Obergeschoss erweitert. Auch der Keller wurde um Räumlichkeiten erweitert. Hierzu wurde von den Eigentümern bereits eine Baugenehmigung eingereicht und genehmigt, da die Genehmigung wie ein Neubau bewertet wird, müssen bei einer Sanierung die neusten energetischen Standards beachtet werden.
Fazit:
Dieses Haus bietet alles, was man sich für ein komfortables Familienleben wünscht: Großzügige Wohnflächen, flexible Nutzungsmöglichkeiten, einen weitläufigen Garten und eine gute Lage. Ob als Einfamilienhaus oder als Zwei- bis Dreifamilienhaus – hier können Sie Ihren Wohntraum verwirklichen.©Claus R. Menges GmbH
Mit großem Garten: Repräsentatives, sehr gemütliches Ein- bis Zwei-Familienhaus in Alten-Buseck
Schulstraße 21,
35418 Buseck
Auf Karte anzeigen
Finanzierungszertifikat
In nur zwei Minuten zu Ihrem persönlichen Finanzierungszertifkat.
Infos
| Haustyp | Einfamilienhaus |
|---|---|
| Wohnfläche ca. | 277 m2 |
| Grundstücksfläche | 1.427 m2 |
| Bezugsfrei ab | |
| Zimmer | 9 |
| Garage/Stellplatz | Garage |
Kosten
| Kaufpreis |
639.000 € |
|---|---|
| Provision |
3,57 % inkl. MwSt. vom Kaufpreis Mit dem Verkäufer wurde eine Courtagevereinbarung in gleicher Höhe getroffen. |
Finanzierungsrechner:
Kaufpreis:
600.000 €
Eigenkapital:
600.000 €
Monatliche Rate
0 €
Effektiver Jahreszins
0 %
Sollzinsbindung
10 Jahre
Bausubstanz & Energieausweis
| Baujahr | 1961 |
|---|---|
| Heizungsart | Öl-Heizung |
| Wesentliche Energieträger | Öl |
| Energieausweis | liegt vor |
| Energieausweistyp | Bedarfsausweis |
| Energieverbrauchskennwert | 278,5 kWh/(m²*a) |
| Energieeffizienzklasse | H |
278,5
kWh/(m²*a)
Energieeffizienzklasse H
- A+
- A
- B
- C
- D
- E
- F
- G
- H
- 0
- 25
- 50
- 75
- 100
- 125
- 150
- 175
- 200
- 225
- >250
Beschreibung des Objekts
Lage
Buseck ist eine beliebte und charmante Gemeinde im Landkreis Gießen. Die Schulstraße verbindet ruhiges, familienfreundliches Wohnen mit einer sehr guten Anbindung und attraktiven Infrastruktur.
Das Haus befindet sich in einem ruhigen Wohnviertel, das vor allem von Ein- und Zweifamilienhäusern geprägt ist und so eine angenehme und familiäre Atmosphäre bietet. Trotz der ruhigen Lage ist man gut an die Infrastruktur angebunden, denn in
Buseck finden Sie eine solide Grundversorgung: Kindergärten, Schulen und Spielplätze sind in wenigen Minuten erreichbar, was die Lage besonders attraktiv für Familien macht.
Zudem bietet die Gemeinde ein aktives Gemeindeleben mit kulturellen Einrichtungen und ortsansässigen Vereinen, ideal für ein harmonisches, dörflich geprägtes Umfeld.
Einkaufsmöglichkeiten, Schulen, Kindergärten und weitere Einrichtungen des täglichen Bedarfs sind bequem zu Fuß oder mit dem Fahrrad erreichbar.
Für den täglichen Bedarf liegen Einkaufsmöglichkeiten, Apotheken und lokale Dienstleister in fußläufiger Nähe oder mit dem Auto schnell erreichbar. Auch ärztliche Versorgung sowie Freizeiteinrichtungen sind in der Umgebung gut etabliert.
Die Anbindung an den öffentlichen Nahverkehr ist gut, Bushaltestellen befinden sich in der Nähe und garantieren eine bequeme Verbindung zu den umliegenden Ortschaften und der nächsten Stadt.
Der Bahnhof Großen-Buseck ist nur wenige Minuten entfernt. Von dort verkehren Regionalbahnen, insbesondere die RB 45 (Vogelsbergbahn).
Die Umgebung von Alten-Buseck ist von viel Grün geprägt. Spazierwege und Naherholungsgebiete laden zu Aktivitäten im Freien ein.
Über die nahegelegene Autobahn A5 oder die Bundesstraße B49 ist eine sehr gute Anbindung an umliegende Städte wie Gießen oder Grünberg gegeben.
Kurzum: Buseck besticht durch einen ländlich geprägten Charakter mit viel Grün, gleichzeitig aber durch die Nähe zur Universitätsstadt Gießen. Dadurch profitieren Bewohnerinnen und Bewohner sowohl von einer ruhigen Wohnlage als auch von den Vorzügen einer Stadt, sei es in Sachen Einkauf, Bildung oder Freizeit. Die Nähe zu Gießen macht den Ort auch für Berufspendler sehr attraktiv.
Das ruhige Wohnumfeld in der Schulstraße, kombiniert mit einer soliden Verkehrsinfrastruktur, schafft die ideale Balance zwischen Natur, Gemeinschaft und guter Erreichbarkeit.©Claus R. Menges GmbH
Sonstige Angaben
Dieses Angebot ist freibleibend und unverbindlich, Irrtum sowie Zwischenverkauf vorbehalten. Das Objektangebot wurde von uns nach bestem Wissen sorgfältig zusammengestellt. Wir können jedoch nicht gewährleisten, dass alle Angaben vollständig sind. Die Daten wurden vom Verkäufer auf die Richtigkeit hin überprüft. Eine Gewähr dafür kann nicht übernommen werden.
Wir erlauben uns, Sie darauf hinzuweisen, dass alle Texte und Lichtbilder, die in Angeboten, Exposés, auf unserer Internetseite, auf öffentlichen Portalen etc. verwendet werden, urheberrechtlich geschützt sind. Eine Verwendung der Texte und der Lichtbilder ohne unsere Zustimmung stellt eine urheberrechtliche Pflichtverletzung dar, die neben Unterlassungsansprüchen auch Schadenersatzansprüche begründet. Jegliche Nutzung der Texte und der Lichtbilder durch Dritte ohne unsere Zustimmung wird untersagt.©Claus R. Menges GmbH
Unser aktuelles Gesamtangebot finden Sie unter www.cr-menges.de.
Grundriss
Haus-Buseck-Grundriss EG______
>
>
Haus-Buseck-Grundriss DG______
>
>
Haus-Buseck-Grundriss Keller__
>
>
Haus-Buseck-Grundriss EG___ _
>
>
Haus-Buseck-Grundriss DG____
>
>
Haus-Buseck-Grundriss Keller__
>
>
Adresse
Schulstraße 21, 35418 Buseck
Interessante Orte
Preis- und Lageinformationen
Preistrend für Bestandsimmobilien in Buseck