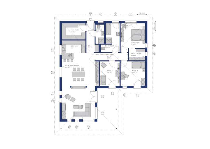
Der Bungalow AMBIENCE 110 von Bien-Zenker überzeugt mit seiner durchdachten Architektur und dem flexiblen Konzept, das speziell nach Ihren Wünschen und Vorstellungen gestaltet wird. Auf einer großzügigen Wohnfläche von rund 110 m² bietet dieses Fertighaus viel Raum für Familien mit bis zu vier Personen. Das Herzstück des Hauses bildet der lichtdurchflutete Wohn-, Ess- und Kochbereich, der eine einladende Atmosphäre schafft und Platz für gesellige Stunden mit der Familie und Freunden bietet. Die clevere Aufteilung umfasst ein Elternschlafzimmer mit Ankleide, zwei weitere Kinderzimmer sowie zwei Badezimmer, die für stressfreie Morgenstunden sorgen. Ob mit Flach-, Walm- oder Satteldach - dieser Bungalow überzeugt in jeder Variante und fügt sich harmonisch in Ihre Umgebung ein. Ihre individuellen Wünsche kommen auch bei der Auswahl der Bodenbeläge zum Ausdruck, sodass Ihr neues Zuhause genau Ihren Vorstellungen entspricht.
Mit der Ausbaustufe "Schlüsselfertig" entscheiden Sie sich für einen stressfreien Bauablauf. Bien-Zenker übernimmt den kompletten Hausbau samt Innenausbau für Sie - vom Fundament bis zur letzten Schraube. Das bedeutet für Sie, dass Sie sich entspannt zurücklehnen und die Vorfreude auf Ihr neues Zuhause genießen können. Sobald alles fertig ist, ziehen Sie einfach ein und können sofort das Leben in Ihrem neuen Heim genießen, ohne sich um Planung und Koordination kümmern zu müssen. So bleibt Ihnen der Stress fern und Sie können sich auf die schönen Dinge konzentrieren.
Bien-Zenker ist nicht nur ein Hausanbieter, sondern Ihr Partner auf dem Weg zu Ihrem individuellen Zuhause. Mit über 115 Jahren Erfahrung und mehr als 80.000 gebauten Häusern stehen wir Ihnen mit Leidenschaft und Expertise zur Seite. Bei uns ist jeder Bauherr mehr als nur ein Kunde - wir verstehen uns als Ihr Begleiter, der Sie mit wohngesunden Materialien und zukunftsweisenden Standards auf Ihrem Weg in die eigenen vier Wände unterstützt.
Grundrisse und Abbildungen können Extras zeigen. Flächenangaben nach DIN 277.
Bien-Zenker: Ihr individuelles Zuhause in Stendal - Bungalow AMBIENCE 110
39576 Stendal
Die vollständige Adresse der Immobilie erhalten Sie vom Anbieter.
Auf Karte anzeigen
Die vollständige Adresse der Immobilie erhalten Sie vom Anbieter.
Finanzierungszertifikat
In nur zwei Minuten zu Ihrem persönlichen Finanzierungszertifkat.
Infos
| Haustyp | Bungalow |
|---|---|
| Etagenzahl | 1 |
| Wohnfläche ca. | 121 m2 |
| Nutzfläche | 121 m2 |
| Grundstücksfläche | 640 m2 |
| Zimmer | 3 |
| Schlafzimmer | 3 |
| Badezimmer | 2 |
Kosten
| Kaufpreis |
359.233 € |
|---|
Finanzierungsrechner:
Kaufpreis:
600.000 €
Eigenkapital:
600.000 €
Monatliche Rate
0 €
Effektiver Jahreszins
0 %
Sollzinsbindung
10 Jahre
Bausubstanz & Energieausweis
| Baujahr | unbekannt |
|---|---|
| Bauphase | Haus in Planung (projektiert) |
| Qualität der Austattung | Gehoben |
| Heizungsart | Wärmepumpe |
Beschreibung des Objekts
Ausstattung
Der Grundriss des Bungalows AMBIENCE 110 ist perfekt auf die Bedürfnisse einer Familie abgestimmt. Mit insgesamt drei Zimmern, darunter ein großzügiges Elternschlafzimmer mit Ankleide sowie zwei Kinderzimmer, schaffen Sie einen Raum für Rückzug und Privatsphäre. Die offene Gestaltung des Wohn-, Ess- und Kochbereichs fördert nicht nur die Kommunikation, sondern lässt auch viel Licht ins Innere, wodurch eine einladende Atmosphäre entsteht. Die kompakte Einteilung der Badezimmer sorgt dafür, dass die Morgenroutine für alle Familienmitglieder entspannt verläuft, ohne dass es zu Wartezeiten kommt.
Komfortdetails wie die großzügigen Fensterfronten lassen nicht nur viel Tageslicht herein, sondern bieten auch einen herrlichen Ausblick auf das 620 m² große Grundstück. Genießen Sie entspannte Stunden auf der Terrasse oder im Garten, die Ihnen viel Platz für Freizeitaktivitäten und Erholung bieten. Ob ein Spielplatz für die Kinder oder ein gemütlicher Grillabend mit Freunden - Ihr Außenbereich wird zum erweiterten Wohnraum und lädt dazu ein, die Natur zu genießen. Zudem sind Abstellräume ideal für die praktische Unterbringung von Haushaltsgeräten und weiteren Utensilien, was Ihren Wohnraum zusätzlich entlastet.
Die Ausbaustufe "Schlüsselfertig" bedeutet für Sie maximale Sicherheit und Komfort. Sie müssen sich um nichts kümmern, denn Bien-Zenker übernimmt den gesamten Bauprozess für Sie. Im Preis sind alle notwendigen Arbeiten enthalten, sodass Sie ein Rundum-sorglos-Paket erhalten. Sie können sich auf den Einzug freuen, während wir uns um die Details kümmern. Diese stressfreie Bauweise lässt Ihnen die Zeit und Energie, um sich auf die Gestaltung Ihres neuen Lebensraums zu konzentrieren, sodass Sie bald Ihr individuelles Zuhause genießen können.
Lage
Stendal bietet Ihnen eine hervorragende Lebensqualität mit einer Vielzahl von Möglichkeiten für Bildung, Gesundheit, Einkauf und Freizeit. In der Umgebung finden Sie zahlreiche Schulen und Kindergärten, die Ihrem Nachwuchs eine ausgezeichnete Ausbildung bieten. Die medizinische Versorgung ist dank ansässiger Ärzte und Kliniken ebenfalls gesichert. Einkaufsmöglichkeiten sind fußläufig oder mit dem Auto schnell erreichbar, sodass Sie Ihren täglichen Bedarf unkompliziert decken können.
Freizeitaktivitäten kommen in Stendal ebenfalls nicht zu kurz. Ob Sporteinrichtungen, Parks oder kulturelle Angebote - hier finden Sie stets etwas, um Ihre Freizeit aktiv zu gestalten. Auch die Anbindung an den öffentlichen Nahverkehr ist optimal; mit Bus und Bahn sind Sie schnell in der Innenstadt oder erreichen die umliegenden Gemeinden. Für Autofahrer ist die Anbindung an die Autobahn gegeben, was Ihnen eine schnelle Erreichbarkeit von größeren Städten und den schnellen Zugang zu den umliegenden Regionen ermöglicht. Genießen Sie die Vorzüge einer Stadt, die Ihnen alles bietet, was Sie für ein erfülltes Leben benötigen.
Sonstige Angaben
Das Grundstück ist im obigen Preis nicht mit eingerechnet.
Zusätzliche Baunebenkosten müssen noch hinzugerechnet werden. Hierüber beraten wir Sie gern.
Wir bieten Ihnen interessante Finanzierungsmöglichkeiten inklusive Beantragung aller Fördermittel!
Sie möchten dieses Haus besichtigen: Rufen Sie uns an und zufriedene Kunden zeigen ihnen gern ihr Haus!
Gute Beratung ist der Anfang von Allem. Deshalb analysieren wir gemeinsam mit Ihnen Ihre Vorstellungen, Wünsche und Bedürfnisse und finden so das für Sie und Ihre Familie passende BIEN ZENKER Haus.
Interessiert? Rufen Sie gleich an und vereinbaren Sie noch heute einen kostenlosen und unverbindlichen Beratungstermin unter 0151/42448360
Grundriss
29930-2552-7-g
>
>
Adresse
39576 Stendal
Interessante Orte
Preis- und Lageinformationen
Preistrend für Bestandsimmobilien in Stendal