Entdecken Sie die Möglichkeit, Ihre Traum-Doppelhaushälfte in Weingarten (Baden) zu gestalten! Mit einer großzügigen Wohnfläche von 123,24 m² und einer durchdachten Raumaufteilung bieten Ihnen diese modernen 4 Zimmer ausreichend Platz für die ganze Familie. Die drei Etagen ermöglichen Ihnen ein harmonisches Zusammenleben und bieten die Flexibilität, Ihr Zuhause ganz nach Ihren Wünschen und Vorstellungen zu planen. Ein Highlight sind die vier Schlafzimmer, die viel Raum für persönliche Rückzugsmöglichkeiten bieten, sowie das Badezimmer und ein zusätzliches Gäste-WC, die den Komfort perfekt abrunden. Erleben Sie ein Zuhause, das nicht nur funktional, sondern auch einladend ist.
Ihr individuelles Zuhause in Weingarten (Baden) - Doppelhaushälfte nach Maß
76356 Weingarten (Baden)
Die vollständige Adresse der Immobilie erhalten Sie vom Anbieter.
Auf Karte anzeigen
Die vollständige Adresse der Immobilie erhalten Sie vom Anbieter.
Finanzierungszertifikat
In nur zwei Minuten zu Ihrem persönlichen Finanzierungszertifkat.
Infos
| Haustyp | Doppelhaushaelfte |
|---|---|
| Etagenzahl | 3 |
| Wohnfläche ca. | 123 m2 |
| Grundstücksfläche | 512 m2 |
| Zimmer | 4 |
| Schlafzimmer | 4 |
| Badezimmer | 1 |
Kosten
| Kaufpreis |
549.872 € |
|---|
Finanzierungsrechner:
Kaufpreis:
600.000 €
Eigenkapital:
600.000 €
Monatliche Rate
0 €
Effektiver Jahreszins
0 %
Sollzinsbindung
10 Jahre
Bausubstanz & Energieausweis
| Baujahr | unbekannt |
|---|---|
| Bauphase | Haus in Planung (projektiert) |
Beschreibung des Objekts
Ausstattung
Die Doppelhaushälfte entspricht dem KFW55 Standard und bietet Ihnen somit ein modernes und energieeffizientes Wohnen. Zu den technischen Highlights gehören eine energieeffiziente Wand, eine Echtholztreppe, eine Luft-Wasser-Wärmepumpe, sowie eine Fußbodenheizung. Zudem sorgt die Be- und Entlüftungsanlage für ein optimales Raumklima. Die 3-fach verglasten Fenster mit Aluminiumlamellen-Rollläden garantieren höchste Qualität und Sicherheit. Die lichte Raumhöhe von 2,75 m sowie erhöhte Fenster und Türen schaffen ein lichtdurchflutetes Ambiente. Sie profitieren zudem von schadstoffgeprüften Materialien mit dem TOXPROOF Gütesiegel.
Lage
Weingarten (Baden) überzeugt durch seine attraktive Wohnlage in einem ruhigen Wohngebiet, das Ihnen eine hervorragende Lebensqualität bietet. Die Infrastruktur ist optimal, Sie finden in der Nähe Schulen, Einkaufsmöglichkeiten und Ärzte. Auch die Anbindung an den öffentlichen Nahverkehr ist gegeben, sodass Sie bequem in die umliegenden Städte gelangen. Für die Freizeitgestaltung stehen Ihnen zahlreiche Möglichkeiten zur Verfügung - Parks, Sporteinrichtungen und Wanderwege laden zur aktiven Erholung ein.
Sonstige Angaben
allkauf heißt: Maximale Sicherheit, kurze Lieferzeiten, garantierte Fertigstellung. Wir bieten Ihnen kurze Lieferzeiten, eine Liefergarantie, eine garantierte Sicherheit, eine Festpreisgarantie sowie eine Fertigstellungsgarantie. Zu allen Häusern gehört:
- Energieeffizienzwand
- Echtholztreppe
- Luft-Wasser-Wärmepumpe
- Fußbodenheizung
- Be- und Entlüftungsanlage
- 3-fach verglaste Fenster inklusive Rollläden mit Aluminiumlamellen
- Lichte Raumhöhe 2,75 m
- inkl. erhöhten Fenstern und Türen
- TOXPROOF Gütesiegel - schadstoffgeprüfter Materialien
- Just-in-Time-Lieferungen
- Bemustern im eigenen Bemusterungszentrum mit Markenprodukten
Ob Einfamilienhaus, Doppelhaus oder Bungalow - bei allkauf finden Sie Ihr Traumhaus! Vereinbaren Sie noch heute Ihren Termin zur Planung Ihres allkauf Traumhauses.
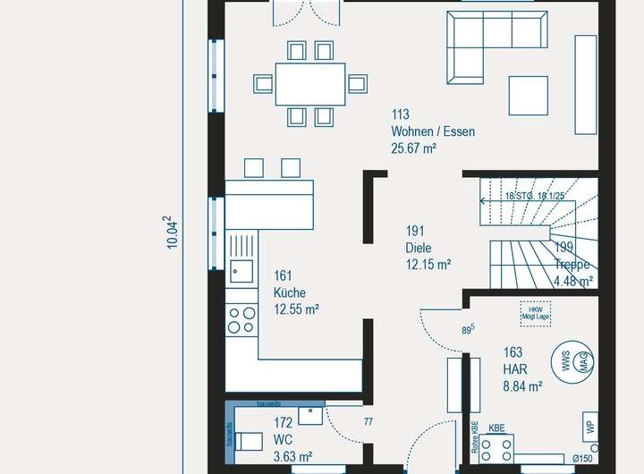
Grundriss
Grundriss
>
>
Grundriss
>
>
Grundriss
>
>
Adresse
76356 Weingarten (Baden)
Interessante Orte
Preis- und Lageinformationen
Preistrend für Bestandsimmobilien in Weingarten (Baden)