Das wunderschöne Einfamilienhaus in Hannover besticht durch seine klassische Architektur mit einem Satteldach und einer Neigung von 38 Grad. Auf zwei großzügigen Etagen mit insgesamt 201,37 m² Wohnfläche und 7 Zimmern, darunter 5 Schlafzimmer und ein Badezimmer, bietet dieses Zuhause ausreichend Platz für die ganze Familie. Die geschickten Grundrissabänderungen sorgen für ein lichtdurchflutetes und einladendes Ambiente, wo du mit Freunden und Familie unvergessliche Momente teilen kannst.
LivingHaus geht auf deine individuellen Wünsche und Vorstellungen ein und sorgt dafür, dass dein neues Zuhause ein Ort des Wohlfühlens wird. Mit der hochwertigen Traumküche, die speziell auf deinen Grundriss abgestimmt ist, kannst du sofort nach dem Einzug in deinem neuen Heim kulinarische Köstlichkeiten zaubern. Die Küche ist mit modernster Technik und cleveren Stauraumlösungen ausgestattet und wird rechtzeitig zum Einzug geliefert.
Das LivingHaus Bau-Cockpit ermöglicht es dir, dein Bauprojekt jederzeit im Blick zu behalten. Mit der praktischen App hast du Zugriff auf alle wichtigen Informationen, vom Zeitplan bis zur Dokumentenverwaltung, alles digital und einfach zu handhaben.
Mit dem I-KON Konzept wird dein Zuhause nicht nur nachhaltig, sondern auch energieeffizient gestaltet. Durch modernste Dämmung und Heiztechniken benötigst du nur 55 % der Energie eines Standardhauses.
Das Zuhause-Darlehen hilft dir, dein Traumhaus zu finanzieren. Mit einem Betrag von bis zu 250.000 EUR zu besonders günstigen Konditionen und staatlichen Förderungen wird dein Hausbau noch attraktiver. Mit dem Zuhause-Paket erhältst du eine hochwertige Grundausstattung, die modernste Böden, edle Türen und stilvolle Sanitäranlagen umfasst.
Und falls du den Innenausbau selbst in die Hand nehmen möchtest, bietet dir das DIY-Ausbau-Coaching die Möglichkeit, in nur drei Tagen von Experten zu lernen, wie du dein Zuhause nach deinen Vorstellungen gestalten kannst.
Dein Traumhaus in Hannover: Individuell, modern und nachhaltig mit LivingHaus
30539 Hannover
Die vollständige Adresse der Immobilie erhalten Sie vom Anbieter.
Auf Karte anzeigen
Die vollständige Adresse der Immobilie erhalten Sie vom Anbieter.
Finanzierungszertifikat
In nur zwei Minuten zu Ihrem persönlichen Finanzierungszertifkat.
Infos
| Haustyp | Einfamilienhaus |
|---|---|
| Etagenzahl | 2 |
| Wohnfläche ca. | 201 m2 |
| Nutzfläche | 201,37 m2 |
| Grundstücksfläche | 810 m2 |
| Zimmer | 7 |
| Schlafzimmer | 5 |
| Badezimmer | 1 |
Kosten
| Kaufpreis |
1.253.664 € |
|---|
Finanzierungsrechner:
Kaufpreis:
600.000 €
Eigenkapital:
600.000 €
Monatliche Rate
0 €
Effektiver Jahreszins
0 %
Sollzinsbindung
10 Jahre
Bausubstanz & Energieausweis
| Baujahr | 2026 |
|---|---|
| Bauphase | Haus in Planung (projektiert) |
| Qualität der Austattung | Gehoben |
| Energieausweis | liegt vor |
| Energieausweistyp | Bedarfsausweis |
| Energieverbrauchskennwert | 18,0 kWh/(m²*a) |
| Energieeffizienzklasse | A+ |
18,0
kWh/(m²*a)
Energieeffizienzklasse A+
- A+
- A
- B
- C
- D
- E
- F
- G
- H
- 0
- 25
- 50
- 75
- 100
- 125
- 150
- 175
- 200
- 225
- >250
Beschreibung des Objekts
Ausstattung
Die Ausstattung deines neuen LivingHaus ist durchdacht und hochwertig. Du erhältst ein modernes Zuhause mit einem hohen Vorfertigungsgrad, der einen effizienten Bauprozess ermöglicht. Die Grundkonstruktion wird durch langlebige Materialien gestützt, und du erhältst auf die Bauleistungen eine Gewährleistung von fünf Jahren.
Das Zuhause-Paket beinhaltet alles, was du für einen sofortigen Einzug benötigst: moderne Bodenbeläge, stilvolle Türen und hochwertige Sanitäranlagen. Zusätzlich bekommst du eine individuell geplante Küche, die auf deine Bedürfnisse zugeschnitten ist, ohne dass du dich mit unverbindlichen Gutscheinen herumschlagen musst.
Die Ausstattung umfasst außerdem energieeffiziente Heiz- und Lüftungstechniken, eine integrierte PV-Anlage zur Stromerzeugung sowie aluminiumgeschäumte Rollläden für optimalen Sommer- und Winterkomfort.
Mit der LivingHaus Safety-First-Garantie bist du ab dem Tag deiner Auftragsbestätigung 18 Monate lang preissicher und profitierst von verschiedenen Bauversicherungen, die dich vor unvorhergesehenen Ereignissen schützen.
Insgesamt erhältst du ein durchdachtes Gesamtkonzept, das dir alle Freiräume lässt, um dein "Wie ich es will Fertighaus" zu gestalten.
Lage
Hannover bietet dir eine perfekte Kombination aus urbanem Leben und naturnahen Erholungsmöglichkeiten. In der Umgebung findest du zahlreiche Schulen und Kindergärten, die eine hervorragende Bildung für deine Kinder garantieren. Besonders die Wilhelm-Busch-Schule und der Kindergarten St. Nikolai sind bei Familien sehr beliebt und bieten eine hohe Qualität der Betreuung.
Für den täglichen Bedarf findest du in der Nähe zahlreiche Supermärkte wie REWE und Edeka, die alles für deinen Einkauf bereithalten. Ärzte und Apotheken sind ebenso gut erreichbar, sodass du immer schnell versorgt bist.
Hannover hat auch ein breites Freizeitangebot zu bieten. Die Eilenriede, einer der größten Stadtwälder Europas, lädt zu ausgedehnten Spaziergängen und Radtouren ein. Zudem gibt es zahlreiche Parks und Seen, die zum Entspannen einladen.
Die Anbindung an den öffentlichen Nahverkehr ist optimal, sodass du schnell und bequem in die Innenstadt gelangst. Die Autobahnen A2 und A7 sind ebenfalls in der Nähe, was Pendlern eine schnelle Verbindung zu den umliegenden Städten ermöglicht.
Insgesamt ist Hannover ein hervorragender Standort für Familien, Naturliebhaber und Berufstätige, die die Vorzüge einer Großstadt genießen möchten, ohne auf die Natur verzichten zu müssen.
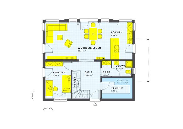
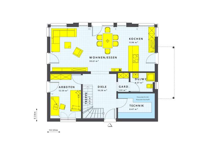
Grundriss
Grundriss EG
>
>
Grundriss OG
>
>
Adresse
30539 Hannover
Interessante Orte
Preis- und Lageinformationen
Preistrend für Bestandsimmobilien in Bemerode