Sie suchen ein Haus mit dem "gewissen Etwas"? Dann ist das EVOLUTION 148 V2 genau das Richtige!
Besonders reizvoll sind die perfekten Symmetrien, die dem Auge schmeicheln und Ruhe und Harmonie ausstrahlen.
Das beginnt bei der Anordnung und Größe der Architekturelemente und reicht bis hin zur Farbgestaltung.
Auf der Traufseite sind es die Fenster in zwei verschiedenen Formaten, die die Symmetrie bestimmen.
Der Bereich zwischen den Lichtöffnungen wurde grau abgesetzt.
Dadurch entsteht ein schöner Kontrast zur Hauptfarbe Weiß und den warmen Holzfensterrahmen.
Gartenseitig liegt ein Erker mit bodentiefen Fenstern und abgeschlepptem Dach auf der Symmetrieachse.
Er erstreckt sich über beide Etagen und schafft im Innenraum eine luftige Atmosphäre.
Gekrönt wird das Fertighaus von einem steil geneigten Satteldach.
Dessen große Dachflächen bieten optimale Voraussetzungen für die Installation einer leistungsfähigen Photovoltaikanlage,
die den Großteil des Stromverbrauchs decken kann.
Auf einer Wohnfläche von etwa 150 m² schafft das Haus viel Freiraum für Familein.
Der Eingang liegt auf der Traufseite. Hinter der Haustür finden sich Bewohner und Besucher in einer geräumigen Diele wieder,
in der sich auch mehrere Personen gleichzeitig aufhalten können, ohne sich gegenseitig auf die Füße zu treten.
Jacken und Taschen werden links in der Garderobe abgelegt, an die ein Gäste-WC und der Technikraum angrenzen.
Geradeaus gelangt man über einen breiten, offenen Durchgang in den weitläufigen Wohn-, Ess- und Kochbereich,
der sich über die gesamte Hauslänge erstreckt.
Der lichtdurchflutete Platz im Erker ist wie geschaffen für einen gemütlichen Lesesessel oder zierliche Cocktailmöbel im Vintage-Stil.
Komplettiert wird das Raumangebot der unteren Etage von einem flexibel nutzbaren Zimmer.
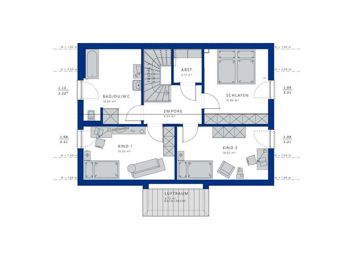
Das Dachgeschoss beherbergt die Ruhe- und Schlafräume. Den zukünftigen Bewohnern stehen zwei gleich große Kinderzimmer,
ein heller Schlafraum mit Platz für einen ausladenden Kleiderschrank, ein luxuriöses Bad sowie eine Abstellkammer zur Verfügung.
Im Innern heißt es: Eintreten und durchatmen. Denn im Preis jedes Bien-Zenker Hauses inbegriffen ist ein ökologischer Wandaufbau, der für ein positives, wohngesundes Raumklima sorgt. Die Basis bildet der Naturbaustoff Holz, der um weitere umweltfreundliche Materialien ergänzt wird.
Projektierung - ein Haus mit dem "gewissen Etwas"
85406 Zolling
Die vollständige Adresse der Immobilie erhalten Sie vom Anbieter.
Auf Karte anzeigen
Die vollständige Adresse der Immobilie erhalten Sie vom Anbieter.
Finanzierungszertifikat
In nur zwei Minuten zu Ihrem persönlichen Finanzierungszertifkat.
Infos
| Haustyp | Einfamilienhaus |
|---|---|
| Etagenzahl | 2 |
| Wohnfläche ca. | 156 m2 |
| Grundstücksfläche | 490 m2 |
| Zimmer | 4 |
| Schlafzimmer | 3 |
| Badezimmer | 2 |
Kosten
| Kaufpreis |
940.000 € |
|---|
Finanzierungsrechner:
Kaufpreis:
600.000 €
Eigenkapital:
600.000 €
Monatliche Rate
0 €
Effektiver Jahreszins
0 %
Sollzinsbindung
10 Jahre
Bausubstanz & Energieausweis
| Baujahr | unbekannt |
|---|
Beschreibung des Objekts
Ausstattung
Ausstattung - Ihr Weg ins neue Zuhause
Sie möchten einfach einziehen und sich um nichts mehr kümmern ?
Dann ist die Ausbaustufe **Schlüsselfertig** von Bien-Zenker genau das Richtige für Sie. Wir übernehmen sämtliche Arbeiten - Sie bringen nur noch Ihre Möbel mit und ziehen ein.
Mit dieser Ausbaustufe entscheiden Sie sich sorgenfrei für den komfortabelsten Weg ins Eigenheim. Ihr Bien-Zenker Haus wird präzise und zügig errichtet: Innerhalb von nur wenigen Tagen montieren wir die vorgefertigten Hauselemente auf Ihrem Bauplatz. Anschließend kümmern wir uns um den kompletten Innenausbau - fachgerecht, zuverlässig und termintreu.
So gewinnen Sie Zeit & Raum für das Wesentliche: die Vorfreude auf Ihre Zukunft im neuen Zuhause, die Sie gerne mit uns gemeinsam gestalten dürfen.
Wünschen Sie mehr Flexibilität, stelle ich gemeinsam mit Ihnen ein individuelles Leistungspaket zusammen - exakt abgestimmt auf Ihre Wünsche und Vorstellungen.
Selbstverständlich genießen Sie bei allen Leistungen die volle Bien-Zenker Gewährleistung.
**WICHTIGE HINWEISE:**
Sie sehen hier den Einstiegspreis für das abgebildete Haus auf Bodenplatte und Bauplatz in schlüsselfertiger Ausführung.
Den Bauplatz erwerben Sie separat mit unserer Hilfe vom Eigentümer. Dessen aktuell ausgewiesenen Grundstückspreis haben wir bereits eingerechnet.
Sonderbauteile wie Erker, Anbauten , besondere Fassadengestaltung etc. sind nicht im Einstiegspreis enthalten.
Wollen Sie durch Eigenleistung sparen ? Wir bieten Ihnen dazu gerne alternative Ausbaustufen an. Damit senken Sie Ihren Einstiegspreis spürbar !
Lage
Zolling verfügt über alle wesentlichen Einrichtungen des
täglichen Bedarfs, die fußläufig oder in kurzer Entfernung
erreichbar sind.
ÖPNV: Zolling ist in den Münchner Verkehrs- und Tarifverbund
(MW) integriert Mehrere Buslinien verbinden den Ort mit den
umliegenden Gemeinden und insbesondere mit der nahe
gelegenen Stadt Freising Von Freising aus besteht eine direkte
Anbindung mit der S-Bahnlinie S1 an den Flughafen München
sowie die Münchner Innenstadt.
Sonstige Angaben
Im Mittelpunkt steht für uns der Bau Ihres Bien-Zenker Hauses. Den von uns projektierten Bauplatz haben wir gezielt für Sie als Hauskunden vorgesehen - damit Sie Haus & Grund aus einer Hand erhalten.
Bien-Zenker GmbH ist einer der führenden deutschen Premium-Fertighaushersteller. Über 85.000 realisierte Wohnträume in fast 115-jährigen Tradition sprechen für sich.
Überzeugen Sie sich am besten selbst von der Qualität und Vielfalt eines Bien-Zenker Hauses - machen Sie sich persönlich ein Bild z.b. in unserem Musterhaus Poing
Sie haben grundsätzliche Fragen oder möchten einfach mal den ersten Schritt gemeinsam mit uns ausprobieren ?
Einfach hier schreiben - ich melde mich gerne für ein erstes kurzes Telefonat. Ich freue mich auf den Austausch mit Ihnen!
Wie geht's dann weiter nach unserer Kontaktaufnahme ?
Bedarfsanalyse für Angebot und Bauplatz
Wir machen gemeinsam eine professionelle Bedarfsanalyse - idealerweise in unserem Musterhaus.
Sie bildet quasi das Fundament zunächst für ein individuell maßgeschneidertes Angebot, das sowohl funktional als auch gestalterisch und vor allem finanziell zu Ihnen passt.
Sollte Ihnen der vorgesehene Bauplatz wider Erwarten nicht zusagen, hilft uns die Analyse im 2. Schritt auch bei der erfolgreichen Suche nach Alternativen.
Unser bewährter Bien-Zenker Grundstücks-Service erleichtert Ihre Suche erheblich, den idealen Bauplatz zu finden.
Adresse
85406 Zolling
Interessante Orte
Preis- und Lageinformationen
Preistrend für Bestandsimmobilien in Zolling