Herzlich Willkommen in Ihrem zukünftigen Einfamilienhaus in Weingarten (Baden)! Hier werden Ihre individuellen Wünsche und Vorstellungen Wirklichkeit. Auf einem großzügigen Grundstück von 274 m² entsteht ein modernes Zuhause mit einer großzügigen Wohnfläche von 222,30 m², aufgeteilt auf zwei Etagen. Dieses Haus bietet Ihnen fünf Zimmer, darunter vier Schlafzimmer, die ausreichend Platz für Ihre Familie und Gäste bereithalten. Ein Badezimmer sowie ein zusätzliches Gäste-WC gewährleisten höchsten Komfort und Funktionalität. Mit den innovativen Energietypen KFW40 und KFW55 genießen Sie höchste Energieeffizienz und einen nachhaltigen Lebensstil.
Ihr Traumhaus in Weingarten: Modern, nachhaltig und perfekt für Ihre Familie!
76356 Weingarten (Baden)
Die vollständige Adresse der Immobilie erhalten Sie vom Anbieter.
Auf Karte anzeigen
Die vollständige Adresse der Immobilie erhalten Sie vom Anbieter.
Finanzierungszertifikat
In nur zwei Minuten zu Ihrem persönlichen Finanzierungszertifkat.
Infos
| Haustyp | Einfamilienhaus |
|---|---|
| Etagenzahl | 2 |
| Wohnfläche ca. | 222 m2 |
| Grundstücksfläche | 268 m2 |
| Zimmer | 5 |
| Schlafzimmer | 4 |
| Badezimmer | 1 |
Kosten
| Kaufpreis |
639.251 € |
|---|
Finanzierungsrechner:
Kaufpreis:
600.000 €
Eigenkapital:
600.000 €
Monatliche Rate
0 €
Effektiver Jahreszins
0 %
Sollzinsbindung
10 Jahre
Bausubstanz & Energieausweis
| Baujahr | 2026 |
|---|---|
| Bauphase | Haus in Planung (projektiert) |
Beschreibung des Objekts
Ausstattung
Das Einfamilienhaus überzeugt durch eine umfassende Ausstattung, die höchsten Qualitätsstandards gerecht wird:
- Energieeffizienzwand für optimale Dämmleistung
- Elegante Echtholztreppe
- Nachhaltige Heizkosten durch Luft-Wasser-Wärmepumpe
- Behagliche Fußbodenheizung
- Be- und Entlüftungsanlage für ein gesundes Raumklima
- 3-fach verglaste Fenster mit Aluminiumlamellen-Rollläden
- Hohe Raumhöhe von 2,75 m für ein großzügiges Raumgefühl
- TOXPROOF Gütesiegel für schadstoffgeprüfte Materialien
- Just-in-Time-Lieferungen für einen reibungslosen Bauablauf
- Bemusterung in unserem eigenen Bemusterungszentrum mit erstklassigen Markenprodukten.
Lage
Das Einfamilienhaus befindet sich in einem ruhigen Wohngebiet in Weingarten (Baden), das durch eine hervorragende Infrastruktur besticht. Schulen, Einkaufsmöglichkeiten und Freizeitaktivitäten sind gleich um die Ecke und bieten Ihnen alles, was Sie für ein angenehmes Familienleben benötigen. Die naturnahe Umgebung lädt zu Spaziergängen und Outdoor-Aktivitäten ein.
Sonstige Angaben
allkauf steht für maximale Sicherheit und kurze Lieferzeiten. Bei uns dürfen Sie sich auf eine garantierte Fertigstellung Ihres Traumhauses verlassen, sodass Sie einen reibungslosen Bauprozess erleben können.
Zu allen Häusern gehört:
- Energieeffizienzwand
- Echtholztreppe
- Luft-Wasser-Wärmepumpe
- Fußbodenheizung
- Be- und Entlüftungsanlage
- 3-fach verglaste Fenster mit Aluminiumlamellen-Rollläden
- Lichte Raumhöhe von 2,75 m
- einschließlich erhöhter Fenster und Türen
- TOXPROOF Gütesiegel für schadstoffgeprüfte Materialien
- Just-in-Time-Lieferungen
- Bemusterung in unserem eigenen Bemusterungszentrum mit Markenprodukten
Ob Einfamilienhaus, Doppelhaus oder Bungalow - bei allkauf finden Sie Ihr Traumhaus! Vereinbaren Sie noch heute Ihren Termin zur Planung Ihres allkauf Traumhauses.
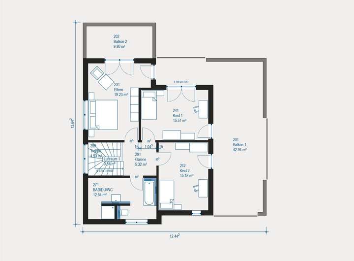
Grundriss
Grundriss
>
>
Grundriss
>
>
Adresse
76356 Weingarten (Baden)
Interessante Orte
Preis- und Lageinformationen
Preistrend für Bestandsimmobilien in Weingarten (Baden)