Anmutig und modern ist die Architektur des Energiesparhauses mit Satteldach. Die Fassade wird von einer waagerechten Holzverschalung und der Auswahl der Fensterformate geprägt. Der Grundriss des Hausentwurfes sieht im Erdgeschoss einen geräumigen Wohn- und Essbereich mit einer separaten Küche vor.
Ihr neues Zuhause mit wenige Eigenleistung auf Ihrem Grundstück
88444 Ummendorf
Die vollständige Adresse der Immobilie erhalten Sie vom Anbieter.
Auf Karte anzeigen
Die vollständige Adresse der Immobilie erhalten Sie vom Anbieter.
Finanzierungszertifikat
In nur zwei Minuten zu Ihrem persönlichen Finanzierungszertifkat.
Infos
| Vermarktungsart | Kaufen |
|---|---|
| Grundstücksfläche | 500 m2 |
Kosten
| Miete pro Jahr |
279.999 € |
|---|
Finanzierungsrechner:
Kaufpreis:
600.000 €
Eigenkapital:
600.000 €
Monatliche Rate
0 €
Effektiver Jahreszins
0 %
Sollzinsbindung
10 Jahre
Beschreibung des Objekts
Lage
Mit meinem Grundstückservice wohnen auch Sie bald in Ihrem
perfektem Traumhaus.
Sonstige Angaben
STREIF Leistungen sind mehr wert - schon im Grundpreis!
INDIVIDUELLE ARCHITEKTUR
-persönliche Architekten-Planung
-individuelle Grundrissgestaltung ohne Mehrpreis
UNSERE BAUWEISE
-mehrschichtiger diffusionsvariabler Wandaufbau bis U-Wert 0,10 W / m² * K - im Gefach (zwischen den Stielen) gemessen
-hochstabile Innenwand und Konstruktion
-Fenster gesamt: Uw-Wert 0,81 W/m² * K
Glas der Fenster: Ug-Wert 0,6 W/m² * K
-Haustür ab UD-Wert 0,64 W/m² * K
-30 Jahre Garantie auf statisches Tragwerk
-ausschließlich handgemacht in Deutschland
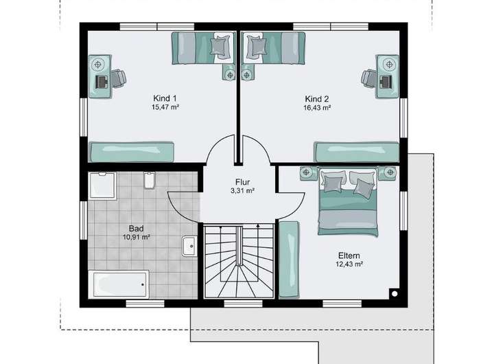
Grundriss
Grundriss EG
>
>
Grundriss OG
>
>