Dieses außergewöhnliche Grundstück kombiniert eine ruhige, geschützte Grünlage mit unmittelbarer Innenstadtnähe.
An einem zügigen Verkauf sind wir interessiert und sehen dann auch noch deutliche Verhandlungsspielräume. Vergleichbare Grundstücke werden im Kreis Alzey-Worms und speziell in Alzey für deutlich über 400€/m2 gehandelt.
Keine Maklergebühren. Privatverkauf.
Das Objekt liegt nicht direkt an einer Straße, sondern leicht eingerückt – ideal für ein privates, abgeschirmtes Wohnumfeld. Ein gewachsener Baumbestand verleiht dem Areal Charakter und bietet einen wertvollen natürlichen Rahmen für zukünftige Bebauung.
Aufgrund der Grundstücksgröße und Struktur eignet sich die Fläche hervorragend für die Errichtung mehrerer Wohneinheiten. Ob modernes Mehrfamilienhaus oder hochwertige Stadtwohnungen – das Grundstück bietet vielseitige Entwicklungsmöglichkeiten.
Eine seltene Gelegenheit, ruhiges Wohnen und zentrale Lage zu verbinden und zugleich ein Projekt mit Zukunftspotenzial zu realisieren.
Hausanschlüsse für Gas, Wasser, Abwasser, Strom, Telefon und Internet sind vorhanden.
Enfernungen:
1km, 4min zum Parkplatz am Obermarkt
3min zur Autobahnauffahrt der A63 (Erbes-Büdesheim), ohne Ampel
Auf dem Grundstück steht derzeit noch ein Fertighaus aus den 1960er-Jahren, das für eine Neubebauung entfernt werden muss. Die Abrisskosten können mit etwa 50.000 Euro veranschlagt werden. Eine Übernahme des Abrisses durch den Verkäufer ist nach Absprache möglich.
Das Haus war bis zuletzt bewohnt und könnte mit überschaubarem Renovierungsaufwand noch viele Jahre weiterhin gut genutzt werden. Aus unserer Sicht bietet jedoch ein Neubau die deutlich attraktivere Option.
Der angegebene Preis ist - wie oben geschrieben - unsere Verhandlungsbasis.
Seltene Chance in Alzey: Ruhiges Grundstück. Grünlage. Innenstadtnähe. Hohes Bebauungspotential
Am Roten Tor 16,
55232 Alzey
Auf Karte anzeigen
Finanzierungszertifikat
In nur zwei Minuten zu Ihrem persönlichen Finanzierungszertifkat.
Infos
| Vermarktungsart | Kaufen |
|---|---|
| Grundstücksfläche | 1.283 m2 |
| Erschließung | Erschlossen |
| Bebaubar nach | wie Nachbarbebauung |
| Verfügbar ab | 7.12.2025 |
Kosten
| Miete pro Jahr |
378.000 € |
|---|---|
| Provision | Nein |
Finanzierungsrechner:
Kaufpreis:
600.000 €
Eigenkapital:
600.000 €
Monatliche Rate
0 €
Effektiver Jahreszins
0 %
Sollzinsbindung
10 Jahre
Beschreibung des Objekts
Lage
Am Roten Tor 16, 55232 Alzey.
Bei Google muss man "Am Roten Tor 16b" eingeben, um das Grundstück zu finden.
Das Grundstück ist auf den Katasteramtsplänen mit den Ziffern 161/11 und 160/11 bezeichnet (die beiden Teilgrundstücke gehören zusammen).
Das Grundstück Nr. 160/11 hat lt. Grundbuch eine Fläche von 716m2
Das Grundstück Nr. 161/14 hat lt. Grundbuch eine Fläche von 567m2
Die Gesamtfläche der Liegenschaft beträgt damit 716m2 + 567m2 = 1283m2
Link auf google maps
https://maps.app.goo.gl/4KRr3o5xokKqy5v18
Nach Rücksprache können Sie das Grundstück gerne jederzeit betreten, um sich selbst ein Bild vor Ort zu machen.
Sonstige Angaben
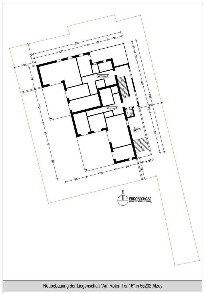
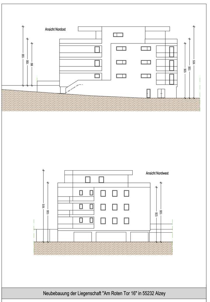
GEPLANTE NEUBEBAUUNG (Vorkonzept)
Das unten dargestellte Vorkonzept stammt von unserem Architekten und dient als möglicher Bebauungsvorschlag. Eine entsprechende Bauvoranfrage ist derzeit in Bearbeitung.
Nach dem Konzept beträgt die bebaute Fläche des geplanten Gebäudes ca. 555m2, was ca. 43% der Grundstücksfläche entspricht.
Die Bruttogeschoßflächen des geplanten Gebäudes betragen: Keller/Garage – ca. 542m2 (teilweise unterirdisch) EG, OG1, OG2 – jeweils ca. 327m2 Penthouse – ca. 214m2. Insgesamt: 1719m2.
Das Gebäude ist mit 4 bis 5 Geschoßen geplant (der Keller ist im Norden ein Geschoß).
Geplant ist die Errichtung von 7 Wohnungen
(3 Wohnungen ca. 100m2, 3 Wohnungen ca. 120m2 und eine Wohnung mit ca. 150m2).
Für die 7 Wohnungen sind 14 PKW-Abstellplätze vorgesehen.
Davon 12 im Untergeschoß und 2 im Freien.
Der Vorschlag ist unverbindlich und stellt keine zugesicherte Planung dar.
Grundriss
Vorkonzept Neu Ansicht SW SO
>
>
Vorkonzept Neu Ansicht NO NW
>
>
Bildschirmfoto 20251206 um 160
>
>
Vorkonzept Neu Erdgeschoss
>
>
Bildschirmfoto 20251206 um 160
>
>
Vorkonzept Neu 2tes OG
>
>
Bildschirmfoto 20251206 um 160
>
>
Vorkonzept Neu Penthouse
>
>