Die im besten Wohnbereich der Stadt Siegen gelegene traditionelle Unternehmervilla wurde im Jahr 1955 auf einem unvergleichlichen Grundstück von ca. 1650 qm auf nahezu ebener Fläche erbaut. Bereits Im Jahr 1976 erfolgte, ebenfalls aus Architektenfeder, eine Erweiterungsmaßnahme, durch die ein Schwimmbad und ein Kaminzimmer entstanden sind und die niveauvolle Villa seine zusätzliche Aufwertung erfuhr. Der bereits üppig vorhandene Wohnraum wurde damit auf sensationelle ca. 345 qm erweitert und subtil akzentuiert. Bei Entrée des Foyers taucht man in die gediegene Architektur ein und ventiliert den Esprit der guten alten Zeit. So durfte neben einem sehr großzügig ausgelegten Salon mit angrenzendem Esszimmer, nebst Küche, und mit eigener vorgelagerter Ost-Terrasse auch nicht das Musikzimmer fehlen. Mit der von renommierter Architektenhand erfolgten Erweiterung im Jahr 1976 ist durch das edel-rustikale Kaminzimmer und das Schwimmbad ein signifikanter Raumzuwachs erfolgt, der den luxuriösen Anspruch und noblen Gesamteindruck weiter vertiefte. Vom Salon aus erfolgt der Gartenzugang über verglaste Flügeltüren mit klassischen Fensterläden als Beschattung, ganz im Landhaus-Stil. Der Garten mit bester Süd-Westausrichtung ist nicht einsehbar und ermöglicht private Abgeschiedenheit selbst in dieser zentralen Lage. Das Dachgeschoss offeriert die privaten Räumlichkeiten, die mit drei Schlafräumen und dem Master-Bedroom mit Badezimmer-en-Suite keinen Platzmangel aufkommen lassen. Ein diskreter Aufgang zum ausgebauten Spitzboden eröffnet weitere zwei Schlafräume bzw. Gästezimmer. Die Villa verfügt über eine Komplettunterkellerung mit Räumen von außergewöhnlich guter Beschaffenheit. Eine Doppelgarage mit reichlich bemessener Verkehrsfläche runden dieses imposante Domizil perfekt ab. In Summe; ein repräsentatives Anwesen ohne Gleichen am Siegener Giersberg !
Wohnkultur aus Tradition
57072 Siegen
Die vollständige Adresse der Immobilie erhalten Sie vom Anbieter.
Auf Karte anzeigen
Die vollständige Adresse der Immobilie erhalten Sie vom Anbieter.
Finanzierungszertifikat
In nur zwei Minuten zu Ihrem persönlichen Finanzierungszertifkat.
Infos
| Haustyp | Villa |
|---|---|
| Wohnfläche ca. | 345 m2 |
| Grundstücksfläche | 1.650 m2 |
| Bezugsfrei ab | Nach Absprache |
| Zimmer | 7 |
| Schlafzimmer | 4 |
| Badezimmer | 2 |
| Garage/Stellplatz | Garage |
| Anzahl Garage/Stellplatz | 2 |
Kosten
| Kaufpreis |
750.000 € |
|---|---|
| Provision |
3,57 inkl. MwSt. |
Finanzierungsrechner:
Kaufpreis:
600.000 €
Eigenkapital:
600.000 €
Monatliche Rate
0 €
Effektiver Jahreszins
0 %
Sollzinsbindung
10 Jahre
Bausubstanz & Energieausweis
| Baujahr | 1955 |
|---|---|
| Heizungsart | Gas-Heizung |
| Wesentliche Energieträger | Gas |
| Energieausweis | liegt vor |
| Energieausweistyp | Bedarfsausweis |
| Energieverbrauchskennwert | 345,3 kWh/(m²*a) |
| Energieeffizienzklasse | H |
345,3
kWh/(m²*a)
Energieeffizienzklasse H
- A+
- A
- B
- C
- D
- E
- F
- G
- H
- 0
- 25
- 50
- 75
- 100
- 125
- 150
- 175
- 200
- 225
- >250
Beschreibung des Objekts
Lage
Das begeisternde Nobel-Domizil alter Schule befindet sich in bester Lage des Siegener Giersbergs, der Top-Lage der Universitätsstadt Siegen schlechthin. Einkaufsmöglichkeiten für den täglichen Bedarf befinden sich fußläufig in Minutennähe, die Oberstadt mit den historischen Highlights Oberes und Unteres Schloss sowie das KrönchenCenter lassen sich ebenfalls binnen ca. 10 Minuten fußläufig erreichen. Die Unterstadt mit City Galerie offeriert Einkaufsmöglichkeiten für den täglichen und den gehobenen Bedarf, das Apollo Theater sowie die Siegerlandhalle stehen für kulturelles Angebot und Vielfalt. Kindergärten sowie alle Schultypen wie Grundschule, Gesamtschule, Waldorfschule und Gymnasium befinden sich im nahen sowie im erweiterten Umfeld der Immobilie. Die Universität Siegen ist über die B54N (HTS) schnell erreichbar, gleiches gilt für die Autobahnen A 45 und A 4, wodurch eine gute Anbindung an die Städte Köln, Dortmund und Frankfurt gegeben ist. Siegen bietet mit drei Krankenhäusern und einer Kinderklinik sowie einem breitgefächerten Spectrum an Arzt-, Facharztpraxen und Therapiezentren eine hervorragende und umfassende medizinische Versorgung. Als Oberzentrum verfügt die Universitätsstadt Siegen über großes Einzugsgebiet in Südwestfalen sowie im Dreiländereck zu Rheinland-Pfalz und Hessen.
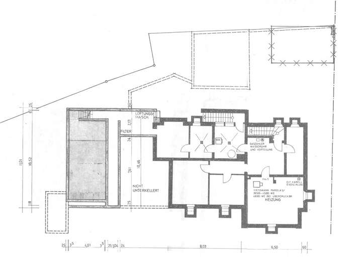
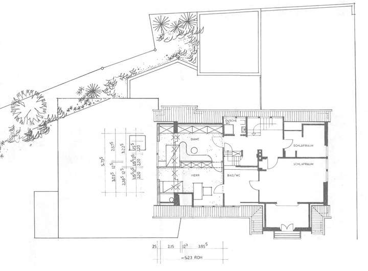
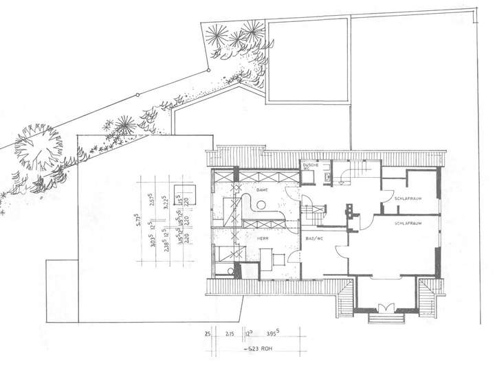
Grundriss
Erdgeschoss
>
>
Dachgeschoss
>
>
Kellergeschoss
>
>
Adresse
57072 Siegen
Interessante Orte
Preis- und Lageinformationen
Preistrend für Bestandsimmobilien in Siegen