Betreten Sie ein Zuhause, das Geschichten erzählt und den Alltag auf magische Weise besonders macht. Diese charmante Doppelhaushälfte aus dem Jahr 1959 begrüßt Sie mit einem unvergleichlichen Gefühl von Geborgenheit und zeitloser Eleganz – hier verschmelzen Beständigkeit, Charakter und Raum für neue Erinnerungen zu einem harmonischen Ganzen.
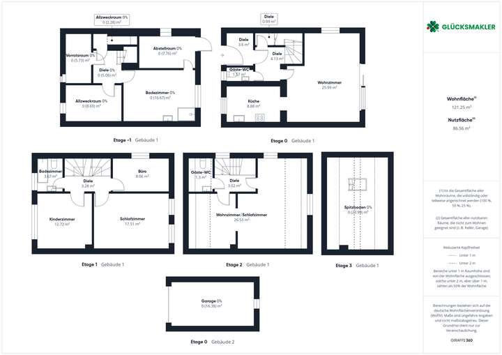
Auf rund 121 m² Wohnfläche entfalten sich lichtdurchflutete Zimmer, die den Alltag in ein lebendiges, freundliches Spiel aus Licht und Raum verwandeln. Sechs vielseitige Räume laden dazu ein, eigene Träume zu verwirklichen – sei es als Rückzugsorte oder kreative Oasen. Das ausgebaute Dachgeschoss schwebt wie ein stiller, magischer Rückzugsort über allem.
Das großzügige Grundstück von ca. 878 m² wirkt wie eine grüne Bühne voller Leben: Blumen, Sträucher und Rasen schaffen einen Garten, der zum Entspannen, Spielen und Genießen einlädt. Die einladende Terrasse verbindet drinnen und draußen auf zauberhafte Weise, sodass sonnige Stunden und entspannte Abende zu besonderen Momenten werden, die man für immer festhalten möchte.
Im Inneren sorgen Fliesen, warmes Parkett und moderner Vinylboden für eine harmonische Mischung aus Komfort und Ästhetik. Das komfortable Badezimmer und zwei separate Gäste WC´s machen den Alltag bequem. Die 2005 eingebauten Fenster fangen das Sonnenlicht ein und tauchen die Räume in eine warme, freundliche Atmosphäre, während die moderne Elektrik aus 2021 für zuverlässige Sicherheit sorgt. Ein bereits vorhandener Kaminzug eröffnet die wunderbare Möglichkeit, später einen gemütlichen Kamin einzubauen – perfekt für stimmungsvolle Abende voller Wärme und knisternder Magie. Klassische Heizkörper, teils elektrische Rollläden und eine Deckenhöhe von ca. 2,50 m verstärken das angenehme Wohngefühl. Der Keller bietet Stauraum, Hobbyfläche und sogar Potenzial für eine Sauna, während die Garage Auto und Fahrräder schützt.
Die Lage verbindet stille Rückzugsorte mit städtischer Nähe: Einkaufsmöglichkeiten, Schulen, Kitas und Ärzte sind bequem erreichbar, Bus, Bahn und Hauptbahnhof bringen Sie flexibel ans Ziel. Für Momente voller Leichtigkeit locken Fitnessstudios, Spazierwege und der nahe Kemnader See – ein Ort, an dem Alltag und Erholung sich auf wunderbare Weise verbinden.
Dieses Haus erzählt nicht nur von Wänden und Dächern – es erzählt von Raum zum Träumen, Lachen und Leben. Ein Ort, an dem Magie in kleinen Details wohnt und neue Geschichten darauf warten, geschrieben zu werden.
Zeitlose Doppelhaushälfte mit großzügigem Grundstück und inspirierendem Charme
58455 Witten
Die vollständige Adresse der Immobilie erhalten Sie vom Anbieter.
Auf Karte anzeigen
Die vollständige Adresse der Immobilie erhalten Sie vom Anbieter.
Finanzierungszertifikat
In nur zwei Minuten zu Ihrem persönlichen Finanzierungszertifkat.
Infos
| Haustyp | Doppelhaushaelfte |
|---|---|
| Wohnfläche ca. | 121 m2 |
| Nutzfläche | 86,56 m2 |
| Grundstücksfläche | 878 m2 |
| Zimmer | 6 |
| Schlafzimmer | 3 |
| Badezimmer | 1 |
| Garage/Stellplatz | Garage |
| Anzahl Garage/Stellplatz | 2 |
Kosten
| Kaufpreis |
449.000 € |
|---|---|
| Provision |
3,57 % inkl. 19% Mehrwertsteuer |
Finanzierungsrechner:
Kaufpreis:
600.000 €
Eigenkapital:
600.000 €
Monatliche Rate
0 €
Effektiver Jahreszins
0 %
Sollzinsbindung
10 Jahre
Bausubstanz & Energieausweis
| Baujahr | 1959 |
|---|---|
| Letzte Sanierung | 2021 |
| Bauphase | Haus fertig gestellt |
| Objektzustand | Gepflegt |
| Qualität der Austattung | Normal |
| Heizungsart | Zentralheizung |
| Wesentliche Energieträger | Erdgas leicht |
| Energieausweis | liegt vor |
| Energieausweistyp | Verbrauchsausweis |
| Energieverbrauchskennwert | 82,5 kWh/(m²*a) |
| Energieeffizienzklasse | C |
82,5
kWh/(m²*a)
Energieeffizienzklasse C
- A+
- A
- B
- C
- D
- E
- F
- G
- H
- 0
- 25
- 50
- 75
- 100
- 125
- 150
- 175
- 200
- 225
- >250
Beschreibung des Objekts
Ausstattung
- charmante Doppelhaushälfte
- Baujahr ca. 1959
- massiv gebaut
- ca. 121 m² Wohnfläche
- großes Grundstück mit ca. 878 m²
- 5 – 6 vielseitige Zimmer
- ausgebautes Dachgeschoss
- solider Keller mit Potenzial, nutzbar als Stauraum, Hobbybereich oder für zukünftige Ausbaumöglichkeiten (wie zB. Wellnessbereich)
- 1 Dusche im Keller
- Fußböden aus Fliesen, warmem Parkett und modernem Vinyl
- 1 Badezimmer im Wohnbereich
- 2 Gäste-WC's
- Gas-Zentralheizung
- zweifach verglaste Fenster
- Deckenhöhe ca. 2,50 m
- teilweise elektrische Rollläden
- einladende Terrasse, Zugang über das Wohnzimmer
- vorhandener Kaminzug ermöglicht eine komfortable Nachrüstung eines Kamins
- Garage mit Schutz und Stauraum
Modernisierungen:
2000 - Erneuerung der vorhandenen Gas-Kombitherme
2000 - Rohrisolierung Waschkeller Heizung
2001 - neue Regenrinne und Regenfallrohre
2001 - neuer Garagenanstrich
2001 - Erneuerungen einiger Heizkörper
2001 - Erneuerungen und Änderungen mehrerer Heizkörper
2003 - Trockenfirst saniert
2003 - Erneuerungen Dachfenster
2003 - Erneuerungen einiger Fenster inkl. Wärmeschutz-Isolierglas
2005 - neue Rolladen mit neuem Antrieb für die Terrassentür
2005 - Geländesicherung mit Winkelstützelementen
2006 - Erneuerungen einiger Fenster
2006 - Erneuerung Fenster und Rolladen in der Küche und im Gäste-WC im Erdgeschoss
2007 - Ortgangverbreiterung / Dachdecker- und Klempnerarbeiten
2007 - Tormauerabdeckung mit Kupferblech
2007 - Wärmedämmarbeiten
2021 - gesamte Elektrounterverteilung
2021 - neue Oberböden: Erdgeschoss Olivenechtholzparkett und Obergeschosse durchgehend in Vinylböden
2021 - vollständige Renovierungsarbeiten im gesamten Haus
Lage
Zwischen Ruhe und Leben – hier fühlt sich jeder Tag besonders an: Eingebettet in grüne Straßen und eine harmonische Nachbarschaft, bietet dieses Wohnviertel den perfekten Ort, um den Alltag entspannt zu genießen. Platz zum Spielen, Raum zum Durchatmen und kurze Wege zu Einkauf, Schulen und Freizeitmöglichkeiten machen das Leben hier leicht und angenehm. Eine Lage, die Ruhe, Komfort und Lebensqualität auf einzigartige Weise verbindet – hier kommt man gern nach Hause.
Verkehrsanbindung
Direkte Anbindung zum Autobahnkreuz A44 in alle Richtungen: ca. 500 m (ca. 2 Autominuten)
Bus-Haltestelle ,,Hörder Str.": ca. 350 m (ca. 4 Gehminuten)
Straßenbahn-Haltestelle ,,Crengeldanz": ca. 450 m (ca. 5 Gehminuten)
Bahnhof ,,Witten Hauptbahnhof": ca. 2,2 km (ca. 25 Gehminuten oder 7 Minuten mit dem Auto)
Stadtzentrum Witten: ca. 2 km (ca. 21 Gehminuten oder 6 Minuten mit dem Auto)
Überörtlich: Gute Anbindung durch das Verkehrsnetz von Witten und das Ruhrgebiet. (Witten liegt geographisch günstig im Ruhrgebiet.)
Einkaufsmöglichkeiten
Rewe-Supermarkt + Malzers Backstube: ca. 450 m (ca. 6 Gehminuten)
Netto-Supermarkt: ca. 600 m (ca. 8 Gehminuten)
Bäckerei Hagenkötter: ca. 1 km (ca. 15 Gehminuten oder 3 Minuten mit dem Auto)
Größeres Einkaufszentrum: StadtGalerie Witten, mit vielen Shops (u.a. H&M, Deichmann, Saturn) – im Stadtzentrum von Witten, ca. 2,4 km (ca. 28 Gehminuten oder 10 Minuten mit dem Auto)
Gesundheitsversorgung
Marienhospital Witten: ca. 1,4 km (ca. 17 Gehminuten oder 6 Minuten mit dem Auto)
Evangelisches Krankenhaus Witten: ca. 2,7 km (ca. 8 Minuten mit dem Auto)
Hausarzt Praxis Yousef Ebech: ca. 350 m (ca. 5 Gehminuten)
alwadent Zahnarzt: ca. 1 km (ca. 12 Gehminuten oder 6 Minuten mit dem Auto)
Kinderarzt Familie Dönig: ca. 1,2 km (ca. 14 Gehminuten oder 5 Minuten mit dem Auto)
Central-Apotheke, Dr. Erol Yilmaz e.K.: ca. 350 m (ca. 4 Gehminuten)
Bildungseinrichtungen
AWO Kita Crengeldanz: ca. 700 m (ca. 10 Gehminuten oder 3 Minuten mit dem Auto)
Crengeldanzschule-Grundschule: ca. 900 m (ca. 11 Gehminuten oder 4 Minuten mit dem Auto)
Adolf-Reichwein-Realschule: ca. 1,7 km (ca. 20 Gehminuten oder 4 Minuten mit dem Auto)
Ruhr Gymnasium: ca. 1,7 km (ca. 20 Gehminuten oder 5 Minuten mit dem Auto)
Städtisches Schiller-Gymnasium: ca. 2,1 km (ca. 25 Gehminuten oder 8 Minuten mit dem Auto)
Freizeit & Naherholung
MULTISPORT Witten Fitnessstudio: ca. 750 m (ca. 9 Gehminuten oder 4 Minuten mit dem Auto)
BE FIT Witten: ca. 1,7 km (ca. 21 Gehminuten oder 7 Minuten mit dem Auto)
Kemnader See: ca. 5 km (ca. 13 Minuten mit dem Auto)
Sonstige Angaben
Provision:
Wir weisen daraufhin, dass bei einer notariellen Beurkundung der Immobilie eine Provision in Höhe von 3,57 % inkl. 19% Mehrwertsteuer für den Käufer fällig wird.
Haftungsausschluss:
Eine Haftung für die Richtigkeit oder Vollständigkeit der Angaben werden nicht übernommen. Alle Angaben erfolgten auf Grundlage der Informationen der Eigentümer. Alle Immobilienangebote sind freibleibend und vorbehaltlich Irrtümer, Zwischenverkauf- und Vermietung oder sonstiger Zwischenverwertung.
Gerne führen wir mit Ihnen eine individuelle Einzelbesichtigung durch. Vereinbaren Sie hierzu einen Besichtigungstermin mit uns. Wir freuen uns auf Sie.
Grundriss
Keller
>
>
Erdgeschoss
>
>
1. Obergeschoss
>
>
2. Obergeschoss
>
>
Spitzboden
>
>
Garage
>
>
Alle Grundrisse
>
>
Adresse
58455 Witten
Interessante Orte
Preis- und Lageinformationen
Preistrend für Bestandsimmobilien in Witten