Diese Doppelhaushälfte aus dem Jahr 1978 ist ein Haus voller Möglichkeiten, mit viel Raum, guter Substanz und dem Potenzial, ein Zuhause ganz nach eigenen Vorstellungen zu gestalten. Auf einem ca. 400 m² großen Erbpachtgrundstück gelegen, stehen insgesamt ca. 239 m² Wohn- und Nutzfläche sowie 6 Zimmer (davon 4-5 Schlafzimmer) zur Verfügung. Die großzügige Aufteilung über mehrere Ebenen schafft Bereiche für Rückzug, Miteinander und kreative Nutzungsideen. Bereits beim Betreten beeindrucken Licht und Raum. Renovierungsbedarf besteht, doch genau darin liegt der besondere Reiz. Das solide Bauwerk, die zweischalige Klinkerfassade und die betondeckten Ebenen bilden eine hervorragende Basis für Modernisierung und individuelle Gestaltung. Ein Highlight ist der beheizte Wintergarten im hinteren Bereich des Hauses, ein ganzjährig nutzbarer Wohlfühlort mit schönem Übergang in den Garten. Ebenso sorgt der Kamin für besondere Atmosphäre und gemütliche Wärme. Praktisch ist auch das Duschbad im Erdgeschoss, ideal für Gäste und den Familienalltag.
Zum Objekt gehört eine Garage, aktuell für 80 € monatlich vermietet. Die Übergabe erfolgt nach Absprache. Die Stadt hat zudem signalisiert, dass ein Erwerb des Erbpachtgrundstücks grundsätzlich möglich wäre.
Die Immobilie wird im digitalen Bieterverfahren angeboten, transparent und fair. Eine virtuelle Besichtigung steht bereits jetzt zur Verfügung: https://tour.ogulo.com/7xDL
Großzügige Doppelhaushälfte auf Erbpachtgrundstück im Bieterverfahren mit viel Raum zum Gestalten
28199 Bremen
Die vollständige Adresse der Immobilie erhalten Sie vom Anbieter.
Auf Karte anzeigen
Die vollständige Adresse der Immobilie erhalten Sie vom Anbieter.
Finanzierungszertifikat
In nur zwei Minuten zu Ihrem persönlichen Finanzierungszertifkat.
Infos
| Haustyp | Doppelhaushaelfte |
|---|---|
| Wohnfläche ca. | 184 m2 |
| Nutzfläche | 87 m2 |
| Grundstücksfläche | 400 m2 |
| Zimmer | 6 |
| Schlafzimmer | 4 |
| Badezimmer | 2 |
| Garage/Stellplatz | Garage |
| Anzahl Garage/Stellplatz | 1 |
Kosten
| Kaufpreis |
300.000 € |
|---|---|
| Provision |
3,57 % Provision inklusive 19% MwSt. des beurkundeten Kaufpreises |
Finanzierungsrechner:
Kaufpreis:
600.000 €
Eigenkapital:
600.000 €
Monatliche Rate
0 €
Effektiver Jahreszins
0 %
Sollzinsbindung
10 Jahre
Bausubstanz & Energieausweis
| Baujahr | 1978 |
|---|---|
| Objektzustand | Renovierungsbedürftig |
| Qualität der Austattung | Normal |
| Heizungsart | Zentralheizung |
| Wesentliche Energieträger | Öl |
| Energieausweis | liegt vor |
| Energieausweistyp | Verbrauchsausweis |
| Energieverbrauchskennwert | 148,3 kWh/(m²*a) |
| Energieeffizienzklasse | E |
148,3
kWh/(m²*a)
Energieeffizienzklasse E
- A+
- A
- B
- C
- D
- E
- F
- G
- H
- 0
- 25
- 50
- 75
- 100
- 125
- 150
- 175
- 200
- 225
- >250
Beschreibung des Objekts
Ausstattung
- Doppelhaushälfte, Baujahr ca. 1978
- Erbpachtgrundstück ca. 400 m², Restlaufzeit ca. 41 Jahre
- Insgesamt 6 Zimmer, davon 4-5 Schlafzimmer
- Beheizter Wintergarten im Gartenbereich (1987)
- Kamin, genehmigt, mit Kassette
- Fußbodenheizung im Erdgeschoss und Obergeschoss
- Gästebad mit Dusche im Erdgeschoss
- Hauptbad en Suite im 70er-Stil: Doppelwaschbecken, Badewanne, Bidet
- Küche im 90er-Stil mit Miele-Geräten (Cerankochfeld, Spülmaschine)
- Wohnzimmer mit Laminat
- Eingangsbereich gefliest (Ende 90er)
- Massive Natursteintreppe
- Teilweise elektrische, teilweise manuelle Rollläden im Erdgeschoss und Obergeschoss
- Elektrische Markise (ca. 10 Jahre alt)
- Betondecken, zweischalige Klinkerfassade
- Elektrik dreiadrig, Kipp-Sicherungen
- Kupfer-Wasserleitungen (baujahrstypisch)
- Holzfenster, doppelt verglast
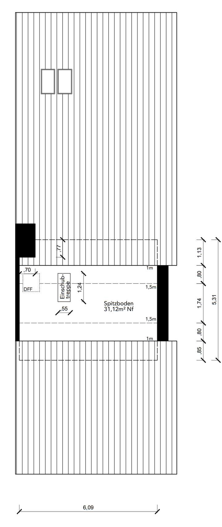
- Spitzboden als zusätzliche große Abstellfläche
- Garage, vermietet für 80 € monatlich
- Keine Baulast
- Hinweis aus 1997: Mögliche Grundwasserverunreinigung im Bereich
- Übergabe des Hauses nach Absprache
- Stadt Bremen stellte in Aussicht, dass ein Grundstückserwerb möglich sein könnte ca. 230 - 250 €/m²
- Immobilie wird im Bieterverfahren angeboten
- Virtuelle Besichtigung online: https://tour.ogulo.com/7xDL
Lage
Die Doppelhaushälfte befindet sich im beliebten Bremer Stadtteil Neuenland, einem Wohngebiet mit idealer Kombination aus urbaner Nähe und ruhiger Nachbarschaft. Die Lage zeichnet sich durch kurze Wege, gute Infrastruktur und eine hervorragende Anbindung an zentrale Bereiche der Stadt aus. In wenigen Minuten erreicht man die Bremer Neustadt, die mit Restaurants, Einkaufsmöglichkeiten, Schulen, Ärzten und kulturellen Angeboten überzeugt. Auch der Flughafen Bremen liegt in unmittelbarer Nähe, praktisch für Vielreisende, ohne dass dies im Wohnbereich zu einer spürbaren Lärmbelastung führt. Der Stadtteil ist geprägt von gewachsenen Wohnstraßen, gepflegten Gärten und einer freundlichen Nachbarschaft. Spazierwege, Grünflächen sowie der Werdersee und die Naherholungsgebiete der Umgebung sind schnell erreichbar und bieten viele Möglichkeiten zum Entspannen, Joggen oder Fahrradfahren.
Durch die Kombination aus ruhiger Wohnlage und direkter Nähe zu städtischen Angeboten gehört Neuenland zu den gefragten Bereichen im Bremer Süden – ideal für Familien, Berufspendler und alle, die kurze Wege schätzen.
Sonstige Angaben
Datenschutz (DSGVO)
Wir möchten Sie darauf hinweisen, dass wir Ihre personenbezogenen Daten speichern, sobald Sie uns eine Kontaktanfrage senden. Diese Daten werden ausschließlich zur Kontaktaufnahme genutzt, beispielsweise um einen Besichtigungstermin zu vereinbaren. Eine Weitergabe Ihrer Daten an Dritte erfolgt nicht. Sollten Sie der Speicherung Ihrer Daten nicht zustimmen, bitten wir um eine kurze Mitteilung. Wir werden Ihre Daten dann umgehend löschen.
Geldwäschegesetz (GwG)
Als Immobilienmaklerunternehmen ist JUNG & WEISE Immobilienmakler vertreten durch Kamil Kaznowski gemäß § 1 Abs. 2 Nr. 10 und § 4 Abs. 3 Geldwäschegesetz (GwG) verpflichtet, vor Beginn einer Geschäftsbeziehung die Identität des Vertragspartners festzustellen und zu überprüfen. Dafür ist es notwendig, die relevanten Daten Ihres Personalausweises zu erfassen, beispielsweise durch eine Kopie. Das Geldwäschegesetz verpflichtet uns zudem, diese Unterlagen für einen Zeitraum von fünf Jahren aufzubewahren.
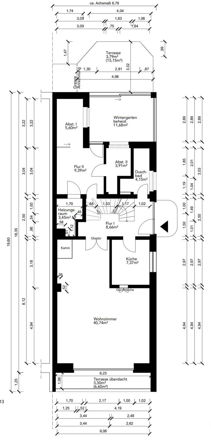
Grundriss
Außen
>
>
Erdgeschoss
>
>
Obergeschoss
>
>
Dachgeschoss
>
>
Spitzboden
>
>
Erdgeschoss
>
>
Obergeschoss
>
>
Dachgeschoss
>
>
Spitzboden
>
>
Adresse
28199 Bremen
Interessante Orte
Preis- und Lageinformationen
Preistrend für Bestandsimmobilien in Neuenland