Wir freuen uns, Ihnen diese hochwertige und top ausgestattete Doppelhaushälfte vorstellen zu dürfen. Das im Jahr 2022 in zukunftsweisender Holzmassivbauweise errichtete KfW-Effizienzhaus 40 überzeugt durch seine nachhaltige Bauweise, seine energieeffiziente Technik und eine durchdachte Raumaufteilung auf drei vollwertigen Wohngeschossen. Zudem ist das Haus vollständig unterkellert und bietet damit zusätzliche Nutz- und Wohnfläche.
Ein modernes Lüftungskonzept in Kombination mit hochwertiger, energieeffizienter Ausstattung – darunter 3-fach verglaste Kunststofffenster, eine Niedertemperatur-Fußbodenheizung und eine umweltfreundliche Nahwärmeversorgung – machen dieses Objekt zu einer Immobilie mit Zukunft.
Die rund 4 Schlafzimmer und flexibel nutzbaren Räume bieten ideale Voraussetzungen für Familien, Homeoffice oder Mehrgenerationenwohnen. Im Erdgeschoss befindet sich der Eingangsbereich mit Garderobe, ein Gäste-WC, die moderne Küche sowie der offene Wohn- und Essbereich mit bodentiefen Fenstern und einem traumhaften Blick in den Garten.
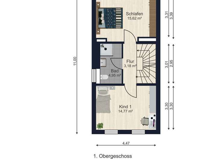
Das Obergeschoss beherbergt das Elternschlafzimmer, ein Kinderzimmer und ein hochwertig ausgestattetes Tageslichtbad mit ebenerdiger Dusche, Fußbodenheizung und zusätzlicher Wandheizung – ideal als Handtuchwärmer.
Im zweiten Obergeschoss finden sich zwei weitere Kinderzimmer, ein weiteres Badezimmer mit Badewanne sowie einer Wandheizung. Das Untergeschoss bietet neben dem Heizungsraum und Flur einen großzügigen Hobbyraum, der sich hervorragend als Büro, Fitnessraum oder Gästezimmer eignet.
Die Ausstattung lässt keine Wünsche offen: Echtholzparkettböden, Steckdosensysteme von Gira mit programmierbarer Steuerung, Smart-Home-Funktionalität und eine Wallbox mit einer Lademöglichkeit bis 11 kW und viele weitere Details unterstreichen den hohen Anspruch an Komfort und Technik.
Eine Einzelgarage mit elektrischem Tor und angrenzendem Außenstellplatz gehört ebenfalls zum Objekt. Besonders praktisch: Über eine Seitentür gelangen Sie direkt von der Garage in den gepflegten Garten mit überdachter Terrasse. Seiten- und Obermarkisen sorgen hier für optimalen Sonnen- und Wetterschutz.
Ein modernes, energieeffizientes Zuhause mit höchster Ausstattung, durchdachter Architektur und hervorragender Zukunftsperspektive – ideal für Familien oder als Kapitalanlage.
Neuwertige Doppelhaushälfte in moderner – KfW-40-Effizienzhaus mit Vollausstattung
94333 Geiselhöring
Die vollständige Adresse der Immobilie erhalten Sie vom Anbieter.
Auf Karte anzeigen
Die vollständige Adresse der Immobilie erhalten Sie vom Anbieter.
Finanzierungszertifikat
In nur zwei Minuten zu Ihrem persönlichen Finanzierungszertifkat.
Infos
| Haustyp | Doppelhaushaelfte |
|---|---|
| Wohnfläche ca. | 163 m2 |
| Grundstücksfläche | 184 m2 |
| Bezugsfrei ab | sofort |
| Zimmer | 6 |
| Schlafzimmer | 4 |
| Badezimmer | 2 |
| Garage/Stellplatz | Garage |
| Anzahl Garage/Stellplatz | 2 |
Kosten
| Kaufpreis |
565.000 € |
|---|---|
| Provision |
3,57% Gerne sind wir für weitere Fragen und Informationen unter Tel.: 09441 - 2089160 erreichbar. Sind auch Sie an einer diskreten Vermarktung interessiert? Dann kontaktieren Sie uns gerne. Bei Kauf verpflichtet sich der Käufer (Käuferprovision) an die Aurentum GmbH, eine Maklerprovision in der angegebenen Höhe nach notariellem Kaufvertrag zu leisten. Durch Ihre Objektanfrage bestätigen Sie die Vereinbarung und Anerkennung dieser Maklercourtage. Alle Angaben stammen vom Eigentümer der Makler übernimmt hierfür keine Haftung. Anfragen über die Immobilienportale werden nur mit vollständiger Adresse und Telefonnummer bearbeitet. Aufsichtsbehörde: IHK für München und Oberbayern, Max-Joseph-Str. 2, 80333 München. |
Finanzierungsrechner:
Kaufpreis:
600.000 €
Eigenkapital:
600.000 €
Monatliche Rate
0 €
Effektiver Jahreszins
0 %
Sollzinsbindung
10 Jahre
Bausubstanz & Energieausweis
| Baujahr | 2022 |
|---|---|
| Bauphase | Haus fertig gestellt |
| Objektzustand | Gepflegt |
| Qualität der Austattung | Gehoben |
| Heizungsart | Fernwärme |
| Wesentliche Energieträger | Pelletheizung |
| Energieausweis | liegt vor |
| Energieausweistyp | Bedarfsausweis |
| Energieverbrauchskennwert | 43,9 kWh/(m²*a) |
| Energieeffizienzklasse | A |
43,9
kWh/(m²*a)
Energieeffizienzklasse A
- A+
- A
- B
- C
- D
- E
- F
- G
- H
- 0
- 25
- 50
- 75
- 100
- 125
- 150
- 175
- 200
- 225
- >250
Beschreibung des Objekts
Ausstattung
* Doppelhaushälfte
* KfW-Effizienzhaus 40
* Baujahr 2022
* Gehobene Ausstattung
* Voll unterkellert
* Wohnfläche: ca. 164 m²
* Grundstücksfläche: 184 m²
* Energieeffizienz A
* Fußbodenheizung
* Böden: Echtholzparkett, Fliesen
* Wohnraumbelüftung mit Wärmerückgewinnung von Kermi
* 3-fach verglaste Kunststofffenster
* Elektrische Rollos
* Terrasse mit Terrassenüberdachung
* Markise & Seitenmarkise auf der Terrasse
* Pool mit Wärmepumpe
* Garage mit Wallbox bis 11 kW
* Balkonkraftwerk
* Smart Home (Licht, Rollos, Heizung, sämtliche Netzwerkgeräte des Hauses)
* Deckenspots
* Türen: 2,12 m
* Bauträger Garantie 5 Jahre - bis 2027
* Dächer und Garage begrünt
* Enthärtungsanlage von Grünbeck
* Glasfaser liegt an
* Ausgussbecken im Waschraum
* Erdgeschoss:
- Küche mit Einbauküche mit Markenelektorgeräten (Bosch, Bora, Miele)
- Gäste-WC
- Garderobe
- offener Wohn- und Essraum
- Zwischentür mit Zugang zum Wohnzimmer
- Wohnzimmer mit bodentiefen, großen Fenstern, Zugang zur Terrasse
* 1. Obergeschoss:
- Tageslichtbad großer ebenerdiger Dusche, WC, Waschbecken mit zusätzlichem Handtuchwärmer in Form eines elektrisch beheizten Wandfliesenelementes
- Kinderzimmer mit bodentiefen Fenster, französischer Balkon
- Elternschlafzimmer
* 2. Obergeschoss:
- 2 Kinderzimmer
- Tageslichtbad mit Badewanne, WC, inkl. Handtuchwärmer in Form eines elektrisch beheizten Wandfliesenelementes
* Kellergeschoss:
- Wasserundurchlässige Bauweise
- Hobbyraum
- Echtholzparkettboden, Fliesen
- Heizungsraum
* Garten:
- Pool
- Müllhäusschen
- Glasvordach über dem Eingang
- 1 Außenstellplatz,
- Einzelgarage
- Zugang von der Garage in den Garten (Tür)
Lage
Die charmante Stadt Geiselhöring liegt im niederbayerischen Landkreis Straubing-Bogen und überzeugt durch ihre idyllische, aber zugleich zentrale Lage zwischen Straubing, Regensburg und Landshut. Mit rund 7.000 Einwohnern bietet Geiselhöring eine perfekte Kombination aus ländlicher Ruhe und urbaner Lebensqualität – ein idealer Wohnort für Familien, Berufspendler und Ruhesuchende.
Dank der hervorragenden Verkehrsanbindung über die B8 sowie den Bahnhof Geiselhöring mit direkter Verbindung nach Straubing, Regensburg und Neufahrn ist die Region optimal in das überregionale Verkehrsnetz eingebunden. Die Autobahnen A3 und A92 sind in etwa 20 bis 25 Minuten erreichbar, was kurze Wege in die umliegenden Städte garantiert.
In puncto Infrastruktur lässt Geiselhöring keine Wünsche offen. Mehrere Supermärkte, Bäckereien, Apotheken und Fachgeschäfte sorgen für eine sehr gute Nahversorgung im Alltag. Zudem befinden sich in der Stadt diverse Ärzte, Zahnärzte und eine Apotheke, die eine ausgezeichnete medizinische Grundversorgung gewährleisten.
Familien profitieren von einem breiten Bildungsangebot: In Geiselhöring gibt es mehrere Kindergärten, eine Grund- und Mittelschule sowie weiterführende Schulen in den nahegelegenen Städten Straubing und Mallersdorf. Auch Freizeit- und Sportmöglichkeiten sind reichlich vorhanden – von Rad- und Wanderwegen in der schönen niederbayerischen Hügellandschaft bis hin zu Vereinen, Spielplätzen und kulturellen Veranstaltungen.
Die lebendige Innenstadt mit Cafés, Restaurants und Wochenmarkt rundet das attraktive Gesamtbild ab. Geiselhöring bietet damit eine hohe Lebensqualität, eine stabile Immobilienlage und ist zugleich ein gefragter Wohnstandort für alle, die zentrale Lage und Naturverbundenheit zu schätzen wissen.
Sonstige Angaben
Gerne sind wir für weitere Fragen und Informationen unter Tel.: 09441 - 2089160 erreichbar.
Bei Kauf verpflichtet sich der Käufer an die Aurentum GmbH, eine Maklerprovision in der angegebenen Höhe nach notariellem Kaufvertrag zu leisten. Durch Ihre Objektanfrage bestätigen Sie die Vereinbarung und Anerkennung dieser Maklercourtage. Alle Angaben stammen vom Eigentümer, der Makler übernimmt hierfür keine Haftung.
Anfragen über die Immobilienportale werden nur mit vollständiger Adresse und Telefonnummer bearbeitet. Aufsichtsbehörde: IHK für München und Oberbayern, Max-Joseph-Str. 2, 80333 München.
Bildrechte und Darstellungen:
Die in diesem Dokument bzw. auf dieser Website gezeigten Visualisierungen wurden teilweise mit Hilfe künstlicher Intelligenz erzeugt. Sie dienen der Illustration und ersetzen keine reale Besichtigung oder verbindliche Bau- und Ausstattungsbeschreibung. Für die Richtigkeit und Vollständigkeit der gezeigten Darstellungen wird keine Haftung übernommen.
Grundriss
Grundriss - EG
>
>
Grundriss - 1. OG
>
>
Grundriss - 2.OG
>
>
Grundriss - KG
>
>
Adresse
94333 Geiselhöring
Interessante Orte
Preis- und Lageinformationen
Preistrend für Bestandsimmobilien in Geiselhöring