Wir dürfen Ihnen eine sehr gepflegte Eigentumswohnung anbieten, die ab sofort frei ist. Die Wohnung hat ca. 72 m² Wohnfläche und liegt Hochparterre.
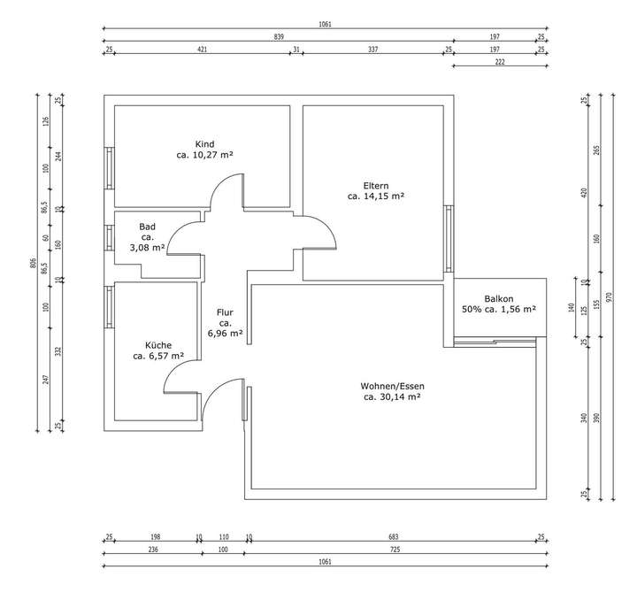
Die Immobilie bietet neben einem geräumigen Wohnzimmer mit Balkonzugang noch eine Küche samt Einbauküche, die im Kaufpreis enthalten ist. Das sanierte Tageslichtbad ist mit einer Dusche ausgestattet. Neben einem Elternschlafzimmer bietet die Wohnung noch ein Kinderzimmer und eine Abstellfläche. Weitere Nutzfläche bietet der eigene Kellerabteil mit Strom und Licht.
Für Fahrräder steht ein Fahrradkeller zur Verfügung. Eine Waschmaschine mit Münzzähler, sowie der Trocknungsraum, runden das Angebot ab.
Zum Objekt gehört noch ein Außenstellplatz, welcher im Kaufpreis enthalten ist.
Wir freuen uns, Ihnen das Objekt im persönlichen Gespräch vorstellen zu dürfen.
Sofort frei - sehr Gepflegte 3-Zimmer Wohnung, Hochparterre, mit Außenstellplatz - zu verkaufen
85053 Ingolstadt
Die vollständige Adresse der Immobilie erhalten Sie vom Anbieter.
Auf Karte anzeigen
Die vollständige Adresse der Immobilie erhalten Sie vom Anbieter.
Finanzierungszertifikat
In nur zwei Minuten zu Ihrem persönlichen Finanzierungszertifkat.
Infos
| Wohnungskategorie | Etagenwohnung |
|---|---|
| Wohnfläche ca. | 72 m2 |
| Bezugsfrei ab | sofort |
| Zimmer | 3 |
| Schlafzimmer | 2 |
| Badezimmer | 1 |
| Anzahl Garage/Stellplatz | 1 |
Kosten
| Kaufpreis |
269.000 € |
|---|---|
| Hausgeld |
171 € |
| Provision |
3,57% Gerne sind wir für weitere Fragen und Informationen unter Tel.: 09441 - 2089160 erreichbar. Sind auch Sie an einer diskreten Vermarktung interessiert? Dann kontaktieren Sie uns gerne. Bei Kauf verpflichtet sich der Käufer (Käuferprovision) an die Aurentum GmbH, eine Maklerprovision in der angegebenen Höhe nach notariellem Kaufvertrag zu leisten. Durch Ihre Objektanfrage bestätigen Sie die Vereinbarung und Anerkennung dieser Maklercourtage. Alle Angaben stammen vom Eigentümer der Makler übernimmt hierfür keine Haftung. Anfragen über die Immobilienportale werden nur mit vollständiger Adresse und Telefonnummer bearbeitet. Aufsichtsbehörde: IHK für München und Oberbayern, Max-Joseph-Str. 2, 80333 München. |
Finanzierungsrechner:
Kaufpreis:
600.000 €
Eigenkapital:
600.000 €
Monatliche Rate
0 €
Effektiver Jahreszins
0 %
Sollzinsbindung
10 Jahre
Bausubstanz & Energieausweis
| Baujahr | 1965 |
|---|---|
| Objektzustand | Gepflegt |
| Qualität der Austattung | Normal |
| Heizungsart | Gas-Heizung |
| Wesentliche Energieträger | Gas |
| Energieausweis | liegt vor |
| Energieausweistyp | Verbrauchsausweis |
| Energieverbrauchskennwert | 81,2 kWh/(m²*a) |
| Energieeffizienzklasse | C |
81,2
kWh/(m²*a)
Energieeffizienzklasse C
- A+
- A
- B
- C
- D
- E
- F
- G
- H
- 0
- 25
- 50
- 75
- 100
- 125
- 150
- 175
- 200
- 225
- >250
Beschreibung des Objekts
Ausstattung
* Eigentumswohnung, sofort verfügbar
* 3 Zimmer
* Wohnfläche: ca. 72 m²
* Hochparterre
* 1 Außenstellplatz inklusive
* Wohnzimmer mit Zugang zum Balkon
* Küche samt Einbauküche im Kaufpreis enthalten
* Schlafzimmer
* Kinderzimmer
* Kunststofffenster
* Manuelle Rollos
* Kellerabteil
* Tageslichtbad mit Dusche, WC
* Böden: Laminat, Fliesen
* Gasetagenheizung für Warmwasser
* Gaszentralheizung für Heizung
* Verbrauchskosten ca. 12-15 Euro pro Monat für Warmwasser (Gas)
* Kellerabteil mit Strom und Licht
* Fahrradkeller
* Trockenraum mit Waschmaschine mit Münzzähler
* Waschmaschinenanschluss in der Küche vorhanden
* Vollwärmeschutz angebracht
* Hausgeld zum 01.01.2025: 225,00 Euro (davon 53,46 Euro Rücklage)
* Rücklagen zum 01.01.2023 Gesamt: 168.139,99 Euro
* Rücklagen zum 01.01.2023 Wohnung: 7.283,67 Euro
Lage
Willkommen in Ingolstadt, einer charmanten Stadt in der bayerischen Region Oberbayern. Ingolstadt bietet eine ideale Kombination aus historischem Erbe, moderner Infrastruktur und einer lebendigen Gemeinschaft.
Die angebotene Immobilie liegt in einer begehrten Wohngegend Ingolstadts und bietet ihren Bewohnern ein komfortables und angenehmes Lebensumfeld. Die Stadt zeichnet sich durch ihre ausgezeichnete Verkehrsanbindung aus, wodurch sowohl die Erreichbarkeit innerhalb Ingolstadts, als auch die Anbindung an größere Städte wie München oder Nürnberg gewährleistet ist.
Ingolstadt besticht durch seine malerische Altstadt, die mit ihren historischen Gebäuden, gemütlichen Cafés und Geschäften zum Bummeln und Verweilen einlädt. Die Immobilie befindet sich in unmittelbarer Nähe zu diesen kulturellen Schätzen, was ihren Bewohnern ein authentisches Lebensgefühl vermittelt.
Für Naturliebhaber und Aktivurlauber bietet die Umgebung von Ingolstadt eine Vielzahl an Möglichkeiten zur Freizeitgestaltung. Parks, Grünflächen und Naherholungsgebiete laden zu entspannten Spaziergängen oder sportlichen Aktivitäten im Freien ein.
In Ingolstadt findet man zudem eine breite Auswahl an Bildungseinrichtungen, Einkaufsmöglichkeiten, Restaurants und Freizeiteinrichtungen, die den Alltag erleichtern und das Leben bereichern.
Wissenschaft, Kultur und Bildung: Ingolstadt hat heute zwei Hochschulen und ist eines der drei Regionalzentren in Bayern. Im Jahr 1472 wurde in Ingolstadt die erste bayerische Universität gegründet. Die Hochschule Ingolstadt bietet u.a. die Studiengänge Wirtschaftsingenieurwesen und Betriebswirtschaft an. Teilbereiche der 1980 gegründeten Katholischen Universität Eichstätt sind ebenfalls am Standort Ingolstadt angesiedelt.
Die Wirtschaft der Region ist mit Audi und einer Vielzahl von Zulieferbetrieben sowie dem Güterverkehrszentrum stark von der Automobilindustrie geprägt. Die Stadt ist auch ein Zentrum der Erdöl-, Luft- und Raumfahrtindustrie.
Hierzu trägt auch die Nähe zum Großraum München bei, ca. 10.000 Ingolstädter pendeln täglich in den Ballungsraum.
Am Hauptbahnhof halten die ICE-Züge mit Anschlussverbindungen ins gesamte Bundesgebiet.
Kurz gesagt, die Lage dieser Immobilie in Ingolstadt vereint das Beste aus urbanem Leben und natürlicher Schönheit und bietet somit ein attraktives Zuhause für jeden, der nach Komfort, Bequemlichkeit und Lebensqualität sucht.
Sonstige Angaben
Gerne sind wir für weitere Fragen und Informationen unter Tel.: 09441 - 2089160 erreichbar.
Bei Kauf verpflichtet sich der Käufer an die Aurentum GmbH, eine Maklerprovision in der angegebenen Höhe nach notariellem Kaufvertrag zu leisten. Durch Ihre Objektanfrage bestätigen Sie die Vereinbarung und Anerkennung dieser Maklercourtage. Alle Angaben stammen vom Eigentümer, der Makler übernimmt hierfür keine Haftung.
Anfragen über die Immobilienportale werden nur mit vollständiger Adresse und Telefonnummer bearbeitet. Aufsichtsbehörde: IHK für München und Oberbayern, Max-Joseph-Str. 2, 80333 München.
Grundriss
Grundriss
>
>
Adresse
85053 Ingolstadt
Interessante Orte
Preis- und Lageinformationen
Preistrend für Bestandsimmobilien in Südost