Bist du bereit? Lass uns loslegen!
Warum warten, wenn dein eigenes Zuhause nur eine Entscheidung entfernt ist?
Unsere Wegbegleiter holen dich dort ab, wo du gerade stehst, und ebnen deinen persönlichen Weg zum Wohneigentum.
Fehlt dir noch das passende Grundstück? Wir helfen dir, es zu finden.
Hast du Fragen zur Finanzierung? Wir haben die Lösung.
Bist du unsicher, welches Haus das richtige für dich ist? Unsere Experten unterstützen dich dabei.
Es gibt nie den perfekten Moment, aber es gibt den richtigen Schritt.
Dein Zuhause beginnt heute mit White&Black.
+++ Traumhaus mit selbst Hand anlegen+++ Tel:0172/3023080
19322 Breese
Die vollständige Adresse der Immobilie erhalten Sie vom Anbieter.
Auf Karte anzeigen
Die vollständige Adresse der Immobilie erhalten Sie vom Anbieter.
Finanzierungszertifikat
In nur zwei Minuten zu Ihrem persönlichen Finanzierungszertifkat.
Infos
| Haustyp | Einfamilienhaus |
|---|---|
| Wohnfläche ca. | 149 m2 |
| Nutzfläche | 0 m2 |
| Grundstücksfläche | 2.043 m2 |
| Zimmer | 4 |
| Schlafzimmer | 3 |
| Badezimmer | 1 |
| Anzahl Garage/Stellplatz | 0 |
Kosten
| Kaufpreis |
233.421 € |
|---|---|
| Provision | Nein |
Finanzierungsrechner:
Kaufpreis:
600.000 €
Eigenkapital:
600.000 €
Monatliche Rate
0 €
Effektiver Jahreszins
0 %
Sollzinsbindung
10 Jahre
Bausubstanz & Energieausweis
| Baujahr | 2026 |
|---|---|
| Bauphase | Haus in Planung (projektiert) |
| Qualität der Austattung | Gehoben |
| Heizungsart | Wärmepumpe |
Beschreibung des Objekts
Ausstattung
THINK WHITE – Do it yourself.
- Fertige Gebäudehülle – du entscheidest über den Innenausbau
- Maximale Individualität – für kreative Köpfe & Macher
- Ideal für Eigenleistung – handwerkliches Geschick spart bares Geld
- Optimierte Grundrisse – smarte Wohnkonzepte für flexible Gestaltung
- Hochwertige Bauweise – modern, nachhaltig & energieeffizient
- Zugang zu staatlichen Förderprogrammen – clever finanzieren & sparen
Für alle, die ihr Zuhause selbst gestalten wollen!
Lage
🏡 Familienfreundliche Lage & Umwelt
Groß Breese ist ein charmantes Straßendorf mit Allee und direktem Zugang zu Wiesen und Wald – ideal für Spaziergänge und mit Natur nah dran. Sehr familienfreundlich, mit KITA und Grundschule direkt am Waldrand in nur ca. 2 km Entfernung vom Ortskern .
🛍️ Einkaufsmöglichkeiten & Versorgung
Breese selbst ist landwirtschaftlich-rural geprägt – es gibt keine Supermärkte direkt im Dorf.
In Wittenberge (ca. 6 km entfernt) findet ihr ein großes Einkaufsangebot:
Supermärkte wie Kaufland und weitere Discounter
Verschiedene Arztpraxen, Gastronomie, ein Hallenbad
Ein Einkaufszentrum mit breitem Angebot .
🎓 Schulen & Kinderbetreuung
Breese: Grundschule mit integrierter KITA direkt am Waldrand (2 km entfernt) .
Wittenberge:
Mehrere Grundschulen
Oberschule
Gymnasium (Marie-Curie-Gymnasium)
Oberstufenzentrum
Acht Kitas + Stadtbibliothek
.
🚆 Öffentliche Verkehrsmittel
🚌 Buslinien
Linie 958 verbindet Breese/Bad Wilsnack mit Wittenberge Bahnhof (ca. 35 Min)
.
Linie 938 (Bad Wilsnack ↔ Wittenberge ZOB) hält auch in Breese (mehrmals täglich)
.
Bus 942: Stündliche innerstädtische Verbindung in Wittenberge inkl. zum Bahnhof, Einkaufszentrum und Hallenbad
.
PlusBus 944: Ausflugsverbindung u. a. nach Lenzen – mit Fahrradmitnahme (Saison Ostern bis Oktober)
.
🚉 Bahnverkehr
Wittenberge Bahnhof liegt an der Strecke Berlin–Hamburg, ist Anschluss für:
ICE, EC, IC-Fernverkehr
Regionalzüge: RE6 (Prignitz‑Express stündlich nach Berlin über Perleberg/Pritzwalk/Neuruppin), RE8 (Berlin ↔ Wismar über Wittenberge stündlich)
.
Von hier aus sind Hamburg und Berlin gut erreichbar – auch der Flughafen BER ist per RE8 direkt verbunden
.
Zukünftig besserer Autobahnanschluss dank A14-Ausbau nahe Karstädt und Verbindung über die B195/B189 .
Sonstige Angaben
Das Haus ist projektiert inkl. Grundstück. Das Grundstück wird in Kommission angeboten bzw. direkt von Dritten verkauft. Daher kann der genannte Preis aufgrund aktueller Marktsituationen schwanken.
Die Bauabwicklung kann kurzfristig nach Grundstückserwerb begonnen werden. Bilder zeigen möglicherweise Sonderausstattungen, die auf Wunsch gegen Aufspreis zusätzlich angeboten werden können.
Erhalte in deinem persönlichen Beratungsgespräch kostenlos alle wichtigen Informationen zu diesem Projekt, insbesondere: Lage und Bebauungsmöglichkeiten des Baugrundstücks, Baukosten-Kalkulation, Finanzierungs- u. Förderungsmöglichkeiten sowie detaillierte Architektur- uund Grundrissplanung.
Wir freuen uns darauf, dich beraten zu dürfen!
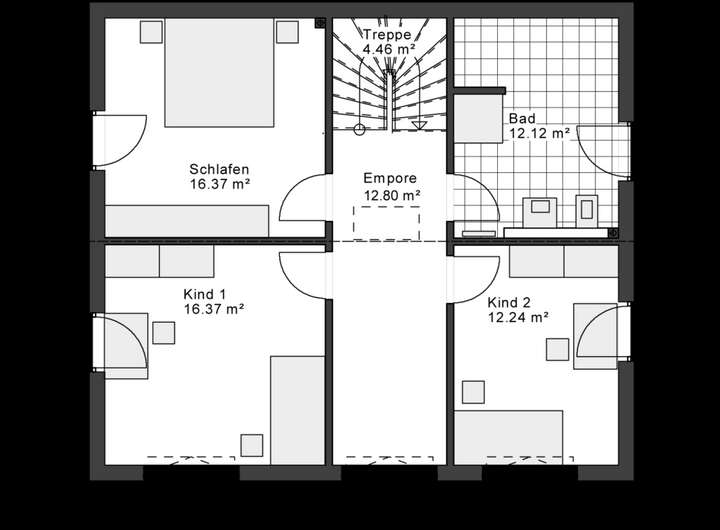
Grundriss
Grundriss EG
>
>
Grundriss OG
>
>
Adresse
19322 Breese
Interessante Orte
Preis- und Lageinformationen
Preistrend für Bestandsimmobilien in Breese