Dieses exklusive KFW40 plus Einfamilienhaus, ein moderner Neubau aus dem Jahr 2025, vereint zeitgemäßes Design, hochwertige Ausstattung und innovative Haustechnik. Auf ca. 350 m² Wohnfläche und einem rund 821 m² großen Grundstück entsteht ein Wohntraum, der Komfort, Eleganz und Energieeffizienz verbindet. Helle, großzügige Räume mit XXL-Fenstern, Stahlbetondecken und durchgehendem Parkett schaffen eine stilvolle Atmosphäre. Elektrische Rollläden und im Erdgeschoss Plissees, sowie die Fußbodenheizung sorgen für Behaglichkeit. Treppe und Fensterbänke aus echtem Schiefer setzen edle Akzente. Die Haustechnik erfüllt höchste Ansprüche: Photovoltaikanlage mit Fox-Stromspeicher, Wärmepumpe und intelligentes Lüftungssystem bieten moderne Nachhaltigkeit. Ein besonderes Highlight: Die Abluft wird in die Doppelgarage geleitet, die dadurch auch im Winter temperiert bleibt. LAN-Anschlüsse, Glasfaser, das installierte Kamerasystem, die Türen sowie das geplante elektrische Garagentor runden die Ausstattung ab. Der flexible Grundriss ermöglicht Büro, Konferenzraum, Gästezimmer oder Mehrgenerationenwohnen. Der private Elternbereich im OG verfügt über Ankleidezimmer, luxuriöses Bad und Fitnessraum mit Starkstromanschluss für Sauna oder Geräte. Von hier gelangt man auf die Dachterrasse mit Blick in den Garten. Der Kinderbereich bietet eigenes Bad und praktischen Wäscheraum. Die Außenanlagen umfassen zwei Gartenbereiche, die vielfältige Nutzung erlauben. Hinter der Doppelgarage war zudem ein Pool vorgesehen.
Neubau-Erstbezug am Bothfelder Wald – 350 m² luxuriöses Wohnen
30657 Hannover
Die vollständige Adresse der Immobilie erhalten Sie vom Anbieter.
Auf Karte anzeigen
Die vollständige Adresse der Immobilie erhalten Sie vom Anbieter.
Finanzierungszertifikat
In nur zwei Minuten zu Ihrem persönlichen Finanzierungszertifkat.
Infos
| Haustyp | Einfamilienhaus |
|---|---|
| Etagenzahl | 1 |
| Wohnfläche ca. | 350 m2 |
| Grundstücksfläche | 821 m2 |
| Zimmer | 9 |
| Schlafzimmer | 4 |
| Badezimmer | 4 |
| Garage/Stellplatz | Garage |
| Anzahl Garage/Stellplatz | 2 |
Kosten
| Kaufpreis |
1.800.000 € |
|---|---|
| Provision |
3% zzgl. MwSt |
Finanzierungsrechner:
Kaufpreis:
600.000 €
Eigenkapital:
600.000 €
Monatliche Rate
0 €
Effektiver Jahreszins
0 %
Sollzinsbindung
10 Jahre
Bausubstanz & Energieausweis
| Baujahr | 2025 |
|---|---|
| Objektzustand | Neuwertig |
| Heizungsart | Wärmepumpe |
| Energieausweis | liegt vor |
| Energieausweistyp | Bedarfsausweis |
| Energieverbrauchskennwert | 29,7 kWh/(m²*a) |
| Energieeffizienzklasse | A+ |
29,7
kWh/(m²*a)
Energieeffizienzklasse A+
- A+
- A
- B
- C
- D
- E
- F
- G
- H
- 0
- 25
- 50
- 75
- 100
- 125
- 150
- 175
- 200
- 225
- >250
Beschreibung des Objekts
Ausstattung
Zusammengefasst:
- Einfamilienhaus
- Baujahr 2025
- KFW 40+
- Neubau 2025
- 350m² Wohnfläche
- 821m² Grundstück
- modernes Design
- Parkett
- elektrische Rollläden im OG, elektrische Plissees im EG
- Fußbodenheizung
- Treppe und Fensterbänke aus echtem Schiefer
- Wärmepumpe
- Photovoltaikanlage mit Fox Stromspeicher
- intelligentes Lüftungssystem
- Doppelgarage
- 9 Zimmer
- 5-6 Schlafzimmer
- 4 Bäder
- Fitnessraum im Elternbereich
- Ankleidezimmer im Elternbereich
- 1 Dachterrasse
- mehrere Abstellräume / Hauswirtschaftsräume
- Hinterer Gartenbereich für Pool vorgesehen
Lage
Das Einfamilienhaus befindet sich in Bothfeld, einem begehrten Stadtteil im Nordosten Hannovers, der für seine ruhige Wohnlage und gleichzeitig hervorragende Anbindung an die Innenstadt bekannt ist. Die Straße Hamstergrund ist verkehrsberuhigt, geprägt von gepflegten Einfamilienhäusern und kleineren Mehrfamilienhäusern, was eine angenehme, familienfreundliche Atmosphäre schafft. Bothfeld bietet eine ausgezeichnete Infrastruktur: Einkaufsmöglichkeiten für den täglichen Bedarf, Schulen, Kindergärten sowie medizinische Einrichtungen befinden sich in unmittelbarer Nähe. Auch Sport- und Freizeitangebote, Grünflächen sowie Spielplätze sind fußläufig erreichbar und machen den Stadtteil besonders attraktiv für Familien. Die Verkehrsanbindung ist hervorragend: Sowohl öffentliche Verkehrsmittel wie Bus und Stadtbahn als auch die Nähe zu wichtigen Straßenverbindungen ermöglichen eine schnelle Erreichbarkeit des Stadtzentrums und weiterer Stadtteile. Die Lage kombiniert somit ruhiges Wohnen mit städtischer Flexibilität. Die Umgebung zeichnet sich durch viel Grün, gepflegte Nachbarschaften und eine hohe Wohnqualität aus. Die Nähe zu Parks und Grünanlagen lädt zu Spaziergängen, Jogging oder Freizeitaktivitäten im Freien ein. Insgesamt bietet die Lage des Hauses am Hamstergrund eine ideale Mischung aus ruhigem, familienfreundlichem Wohnen, guter Infrastruktur und schneller Anbindung an die Innenstadt – perfekt für Familien, Berufspendler oder Menschen, die urbanes Leben mit einer entspannten Wohnatmosphäre verbinden möchten.
Sonstige Angaben
Alle Angaben in diesem Exposé wurden sorgfältig und so vollständig wie möglich gemacht. Dennoch kann das Vorhandensein von Fehlern nicht ausgeschlossen werden. Die Angaben in diesem Exposé erfolgen daher ohne Gewähr und basieren ausschließlich auf Informationen, die uns vom Verkäufer bzw. von Dritten zur Verfügung gestellt wurden, so dass wir eine Gewähr für die Vollständigkeit, Richtigkeit und Aktualität dieser Angaben nicht übernehmen können. Irrtum und Zwischenverkauf / Zwischenvermietung bleiben vorbehalten.
Da wir unseren Auftraggebern zur Diskretion verpflichtet sind und es sich bei den Informationen zu der Immobilie um sensible Daten handelt, bitten wir um Verständnis, dass wir Ihre Anfragen nur unter vollständiger Nennung Ihres Namens, der Anschrift und der Telefonnummer bearbeiten können!
Weitere Fragen beantwortet Ihnen sehr gerne Herr Ahmet Özaslan unter 0172 7774496. Zögern Sie nicht, uns anzurufen! Wir sind immer bereit, Ihnen bei der Suche nach Ihrer Traumimmobilie behilflich zu sein.
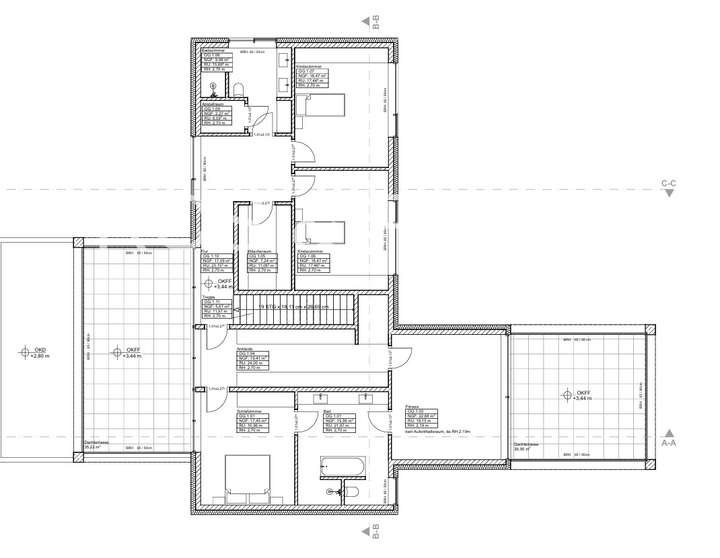
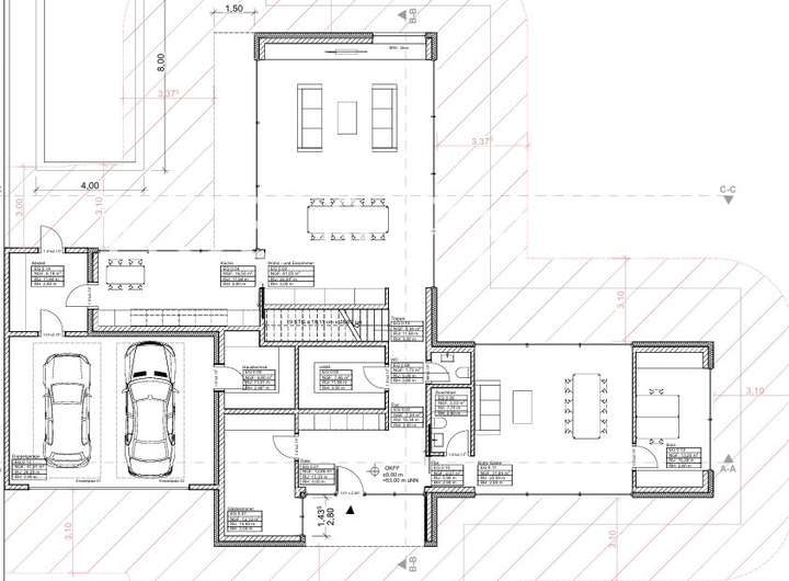
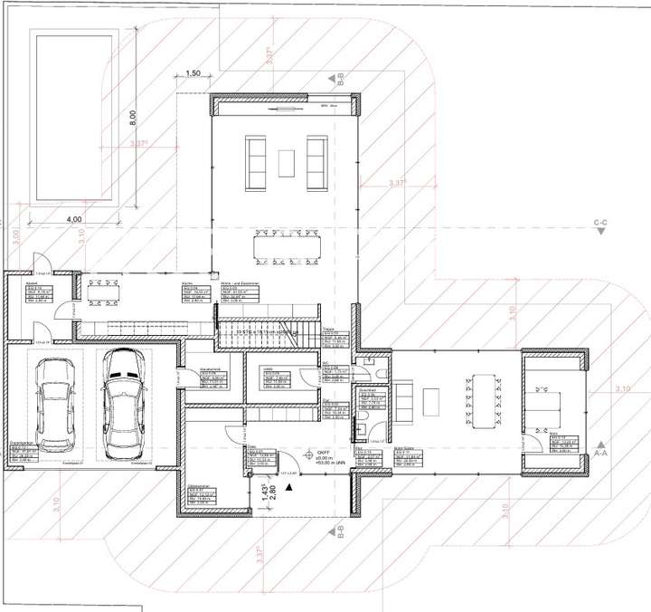
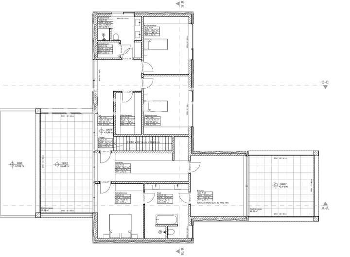
Grundriss
Grundriss EG
>
>
Grundriss OG
>
>
Adresse
30657 Hannover
Interessante Orte
Preis- und Lageinformationen
Preistrend für Bestandsimmobilien in Bothfeld