Mit seinem modernen Landhaus-Flair passt das Fertighaus besonders gut in ländliche Regionen, es macht aber auch auf kleineren Vorstadt-Grundstücken eine gute Figur.
«
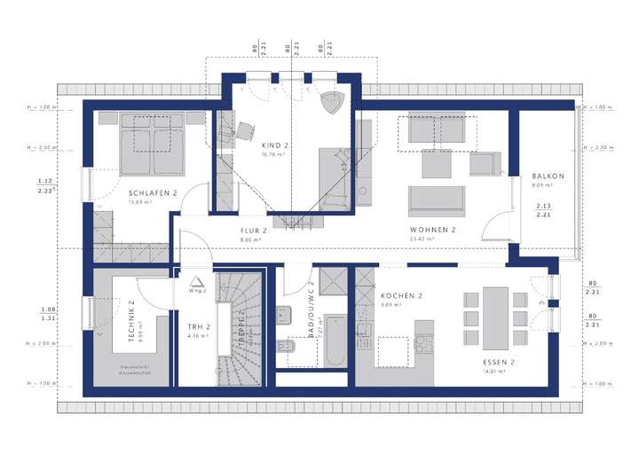
Ein elegantes Satteldach-Querhaus, ein zweigeschossiger Giebelerker mit Balkon und großzügige Panoramafenster: Es sind die designstarken Architektur-Bauteile, die diesem Zweifamilienhaus einen unverwechselbaren Charakter verleihen. Hinzu kommen dunkelgrau abgesetzte Fassadenflächen, die die strahlend weiße Putzfassade akzentuieren. Den krönenden Abschluss bildet ein klassisches Satteldach mit weiten Dachüberständen. Mit seinem modernen Landhaus-Flair passt das Fertighaus besonders gut in ländliche Regionen, es macht aber auch auf kleineren Vorstadt-Grundstücken eine gute Figur. Die bebaute Fläche beträgt nur knapp 130 m². Im Innern hält das Haus ein großzügiges Platzangebot für zwei dreiköpfige Familien bereit: Jedes Geschoss bildet eine eigene Wohneinheit. Auch ein Generationenwohnen ist möglich. Erschlossen werden die beiden Wohnungen über ein gemeinsames Treppenhaus. Mit mehr als 6 m² könnte hier sogar ein Kinderwagen abgestellt werden, ohne dass es zu eng wird. Das Raumangebot ist in Erd- und Dachgeschoss nahezu identisch. Empfangen werden die Bewohner und Besucher jeweils von einem geräumigen Flur, der mit einer Garderobe oder mit einem Schuhschrank ausgestattet werden kann. Gleich in der Nähe des Eingangs wurden die beiden Schlafzimmer platziert. Dringt man weiter in das Haus vor, erreicht man das Badezimmer, das mit einer Wanne und einer Dusche für jeden Geschmack das passende Wellnessprogramm bietet. Die Diele mündet schließlich in den offenen Wohn-, Ess- und Kochbereich, der über bodentiefe Verglasungen in eine luftig-leichte Atmosphäre getaucht wird. Im Dachgeschoss fluten zusätzlich Dachflächenfenster die Räume mit Tageslicht. In der warmen Jahreszeit erweitert sich das Wohngeschehen auf die sonnigen Freisitze - im Erdgeschoss ist das die überdachte Terrasse, im Dachgeschoss der Balkon mit zauberhaftem Ausblick über die Umgebung. Zu jeder Wohneinheit gehört ein eigener Technikraum, der vom Treppenhaus aus betreten wird. Hier findet die gesamte Heiz- und Haustechnik Platz, die bei Bien-Zenker im Standard aus einer energieeffizienten Wohlfühl-Klima-Heizung+ besteht.
INDIVIDUELLE WÜNSCHE
Bien-Zenker Wohnen im Zweifamilienhaus in begehrter Lage
91085 Weisendorf
Die vollständige Adresse der Immobilie erhalten Sie vom Anbieter.
Auf Karte anzeigen
Die vollständige Adresse der Immobilie erhalten Sie vom Anbieter.
Finanzierungszertifikat
In nur zwei Minuten zu Ihrem persönlichen Finanzierungszertifkat.
Infos
| Haustyp | Mehrfamilienhaus |
|---|---|
| Etagenzahl | 2 |
| Wohnfläche ca. | 210 m2 |
| Grundstücksfläche | 918 m2 |
| Zimmer | 6 |
| Schlafzimmer | 4 |
| Badezimmer | 2 |
Kosten
| Kaufpreis |
1.302.856 € |
|---|---|
| Provision | Nein |
Finanzierungsrechner:
Kaufpreis:
600.000 €
Eigenkapital:
600.000 €
Monatliche Rate
0 €
Effektiver Jahreszins
0 %
Sollzinsbindung
10 Jahre
Bausubstanz & Energieausweis
| Baujahr | unbekannt |
|---|
Beschreibung des Objekts
Ausstattung
Wohlfühlklimaheizung -
Wärmepumpe inkl. Lüftung, Wärmerückgewinnung und Feuchtigkeitsregulierung
inkl. Bodenplatte
Lage
Traumgrundstück in begehrter ruhiger Lage, kurze Wege
super Verkehrsanbindung
Zur Bebauung mit einem Bien-Zenker Haus
Sonstige Angaben
Bien-Zenker-Musterhaus
Terminvereinbarung unter Tel. 09135/7273902 oder 0151/14982218
Grundriss
10502-1118-22-g
>
>
10504-1118-21-g
>
>
Adresse
91085 Weisendorf
Interessante Orte
Preis- und Lageinformationen
Preistrend für Bestandsimmobilien in Weisendorf