WELCOME HOME. WELCOME TO YOUR FUTURE.
Dein Zuhause ist mehr als vier Wände – es ist dein Rückzugsort, dein Investment, dein neuer Lebensabschnitt.
White&Black macht Wohneigentum bezahlbar, modern und flexibel.
Jetzt ist der richtige Moment, um anzukommen.
Heute dein Zuhause, morgen deine Zukunft.
27755 Delmenhorst
Die vollständige Adresse der Immobilie erhalten Sie vom Anbieter.
Auf Karte anzeigen
Die vollständige Adresse der Immobilie erhalten Sie vom Anbieter.
Finanzierungszertifikat
In nur zwei Minuten zu Ihrem persönlichen Finanzierungszertifkat.
Infos
| Haustyp | Einfamilienhaus |
|---|---|
| Wohnfläche ca. | 141 m2 |
| Nutzfläche | 0 m2 |
| Grundstücksfläche | 554 m2 |
| Zimmer | 4 |
| Schlafzimmer | 3 |
| Badezimmer | 1 |
| Anzahl Garage/Stellplatz | 0 |
Kosten
| Kaufpreis |
456.240 € |
|---|---|
| Provision | Nein |
Finanzierungsrechner:
Kaufpreis:
600.000 €
Eigenkapital:
600.000 €
Monatliche Rate
0 €
Effektiver Jahreszins
0 %
Sollzinsbindung
10 Jahre
Bausubstanz & Energieausweis
| Baujahr | 2026 |
|---|---|
| Bauphase | Haus in Planung (projektiert) |
| Qualität der Austattung | Gehoben |
| Heizungsart | Wärmepumpe |
Beschreibung des Objekts
Ausstattung
THINK FAST-VOLLENDET – Der perfekte Mittelweg.
- Technik, Heizung & Sanitärinstallation sind drin – du kümmerst dich nur um den Feinschliff
- Professionell vorbereitet für deinen Innenausbau – sauber, trocken & startklar
- Keine Rohbauphase mehr – sofort loslegen mit Boden, Wand & Co.
- Ideal für Teil-Eigenleistung – mit smartem Budget zum eigenen Zuhause
- Effizient & zukunftssicher – Haustechnik und Dämmung auf Top-Niveau
Für alle, die noch selbst Hand anlegen – aber nicht bei null anfangen wollen.
Lage
Geborgenheit und Freiheit im neuen Eigenheim
Sonstige Angaben
Das Haus ist projektiert inkl. Grundstück. Das Grundstück wird in Kommission angeboten bzw. direkt von Dritten verkauft. Daher kann der genannte Preis aufgrund aktueller Marktsituationen schwanken.
Die Bauabwicklung kann kurzfristig nach Grundstückserwerb begonnen werden. Bilder zeigen möglicherweise Sonderausstattungen, die auf Wunsch gegen Aufspreis zusätzlich angeboten werden können.
Erhalte in deinem persönlichen Beratungsgespräch kostenlos alle wichtigen Informationen zu diesem Projekt, insbesondere: Lage und Bebauungsmöglichkeiten des Baugrundstücks, Baukosten-Kalkulation, Finanzierungs- u. Förderungsmöglichkeiten sowie detaillierte Architektur- uund Grundrissplanung.
Wir freuen uns darauf, dich beraten zu dürfen!
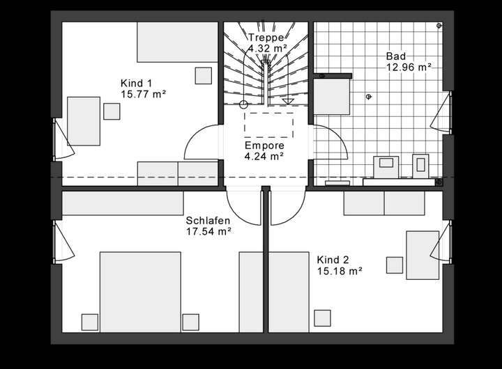
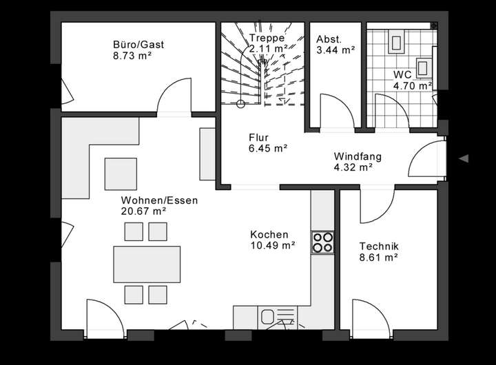
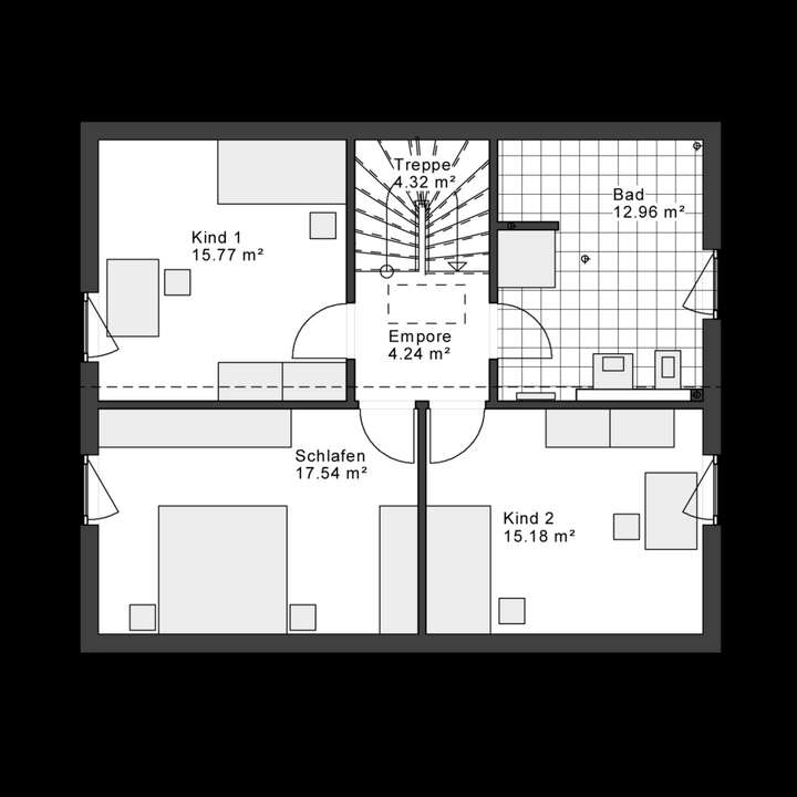
Grundriss
Grundriss EG
>
>
Grundriss OG
>
>
Adresse
27755 Delmenhorst
Interessante Orte
Preis- und Lageinformationen
Preistrend für Bestandsimmobilien in Düsternort