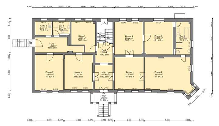
Dieses imposante Gutshaus, errichtet im Jahre 1878 und 1890 erweitert, präsentiert sich heute als eine Oase der Ruhe und Eleganz. Es wurde aufwendig und liebevoll saniert, wobei die beeindruckende Stuckfassade und das großzügige, über ca. 220 m² große Erdgeschoss, bereits denkmalschutzgerecht fertiggestellt wurden. Die Einliegerwohnung bietet die Möglichkeit einer Vermietung oder erfreut Ihre Gäste.
2015/2016 wurden die Heizung, Elektrik, Sanitär und die Wandanstriche erneuert und die Decke gedämmt, die Original-Türen zum Teil aufgearbeitet und teils neu angefertigt. In den Jahren 2024 und 2025 sind die Wandanstriche, beide Bäder und Küchen im gesamten Erdgeschoss komplett erneuert worden. Zudem wurden die originalen Fußböden teils aufwendig freigelegt und aufgearbeitet. Außerdem wurde 2025 eine Wanddämmung (denkmalgerechte Einblasdämmung) des kompletten EG sowie Teilen des OG vorgenommen, der Stuck an der Außenfassade denkmalgerecht aufgearbeitet, ebenso die Fenster.
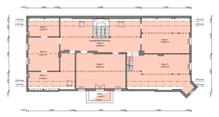
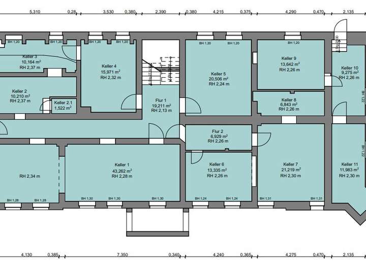
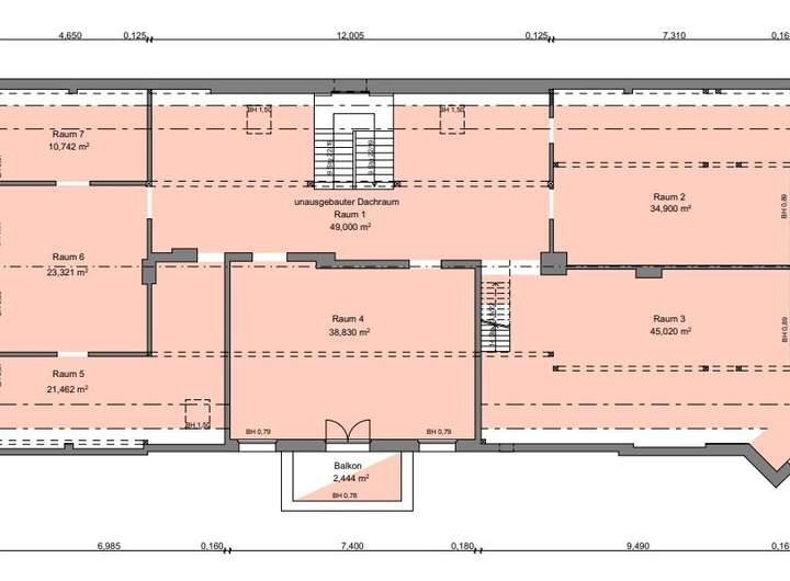
Das darüberliegende Obergeschoss ist vollständig entkernt und die ersten Sanierungsschritte sind erfolgt. Es bietet damit eine großzügige Spielwiese für Ihre eigenen Ideen und Konzepte. Mitte der 90er Jahre wurde das Dach komplett neu gedeckt. Es gibt noch einen Dachboden, der Stauraum bietet. Darüber hinaus sorgt auch die vollständige Unterkellerung des Hauses für noch mehr Abstellfläche.
Um das Haus herum erstreckt sich auf 735 m² der Garten mit seinen Obststräuchern und steinernen Wegen.
Repräsentative Villa mit Gründerzeit-Charme in ländlicher Idylle
14669 Ketzin
Die vollständige Adresse der Immobilie erhalten Sie vom Anbieter.
Auf Karte anzeigen
Die vollständige Adresse der Immobilie erhalten Sie vom Anbieter.
Finanzierungszertifikat
In nur zwei Minuten zu Ihrem persönlichen Finanzierungszertifkat.
Infos
| Etagenzahl | 2 |
|---|---|
| Wohnfläche ca. | 443 m2 |
| Nutzfläche | 204,07 m2 |
| Grundstücksfläche | 735 m2 |
| Zimmer | 10 |
| Badezimmer | 2 |
| Garage/Stellplatz | Außenstellplatz |
| Anzahl Garage/Stellplatz | 3 |
Kosten
| Kaufpreis |
590.000 € |
|---|---|
| Provision |
3,57% inkl. MwSt. |
Finanzierungsrechner:
Kaufpreis:
600.000 €
Eigenkapital:
600.000 €
Monatliche Rate
0 €
Effektiver Jahreszins
0 %
Sollzinsbindung
10 Jahre
Bausubstanz & Energieausweis
| Denkmalschutzobjekt | Ja |
|---|---|
| Heizungsart | Zentralheizung |
| Wesentliche Energieträger | Gas |
| Energieausweis | laut Gesetz nicht erforderlich |
Beschreibung des Objekts
Ausstattung
- Dielen - und Parkettböden
- original Terrazzoboden
- Holzfenster
- 1 Wannenbad / 1 Duschbad
- Einliegerwohnung
- Keller
- Garten
- 2-3 Freiplätze
Lage
Der Ortsteil liegt inmitten der malerischen Fluss- und Seenlandschaft des Havellandes und zeichnet sich durch seine ruhige, naturnahe Lage sowie eine ländliche Atmosphäre aus. Er selbst gehört zu den ältesten Siedlungen im Havelland und wurde 1170 erstmals urkundlich erwähnt. Die Region ist stark geprägt durch die Havel und umliegende Gewässer wie den 800 m hinter dem Haus gelegenen Trebelsee. Dieser lädt zu gemütlichen Spaziergängen ein, bietet aber auch am anderen Ende des Sees Wassersportmöglichkeiten. Nur drei Kilometer entfernt liegt der Golfclub Potsdam. Im Ortsteil selbst befinden sich eine Kita, ein Jugendclub mit Spielplatz, ein Bolzplatz, ein Hofladen mit Pferdeweiden.
Im nur 6 km entfernt gelegenen Ketzin finden Sie sämtliche infrastrukturellen Notwendigkeiten, wie Einkaufsmöglichkeiten, Restaurants, Arztpraxen, Kindergärten, eine Grund- und eine Oberschule. Das 16 km entfernte Wustermark verfügt über einen Regionalbahnhof von wo aus man mit der mehrfach stündlich verkehrenden Regionalbahnverbindung den Hauptbahnhof Berlin binnen 30 Minuten erreicht Über die Landstraße gelangt man in einer halben Stunde Autofahrt in die Potsdamer Innenstadt.
Grundriss
Kellergeschoss
>
>
Erdgeschoss
>
>
Dachgeschoss
>
>
Adresse
14669 Ketzin
Interessante Orte
Preis- und Lageinformationen
Preistrend für Bestandsimmobilien in Ketzin