Diese modernisierte Doppelhaushälfte vereint Wohnkomfort in zentraler Lage und dennoch schnell im Grünen.
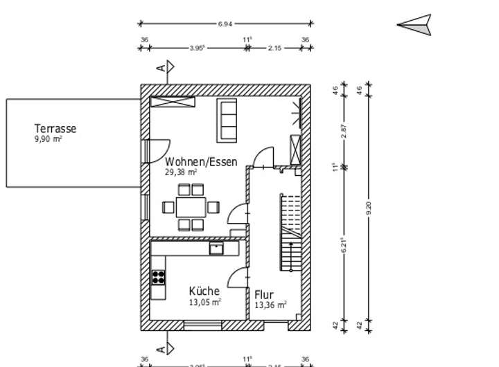
Im Erdgeschoss erwartet Sie eine geräumige Küche mit ausreichend Platz für eine Essecke.
Der Wohn/Essbereich mit Zugang in den eingezäunten Gartenbereich bietet Platz für gemütliche Stunden mit Freunden oder der Familie - hier findet gemeinsames Leben statt!
Die obere Etage überzeugt durch Ihre funktionale Raumaufteilung mit drei Räumen für Schlafzimmer, Homeoffice oder Gäste.
Das neu gestaltete Badezimmer mit moderner Ausstattung und Tageslicht rundet dieses Angebot ab und macht das Haus zu einem gemütlichen Zuhause für Paare oder Familien.
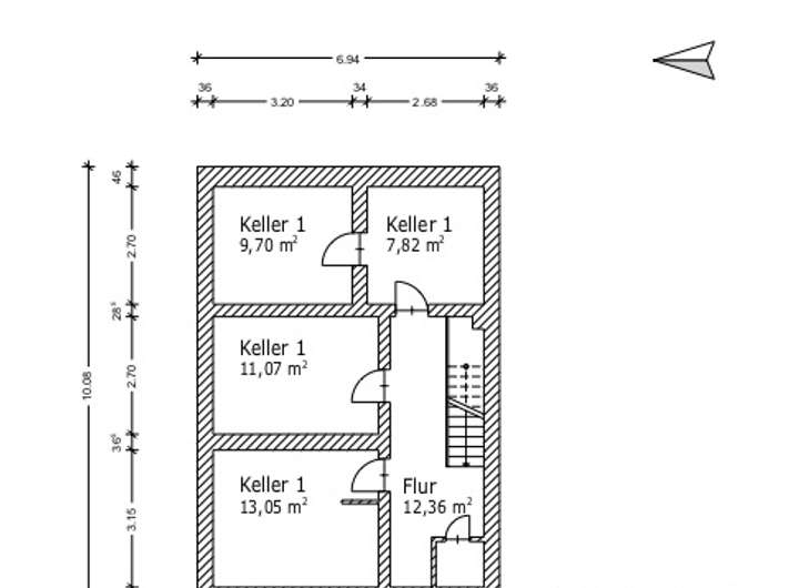
Das Haus verfügt zudem über einen Keller mit ausreichend Abstellräumen.
Hier befindet sich die neue Gasheizung aus 2025.
Vor dem Haus und in der Gegend befindet sich ausreichend Stellfläche für Ihren Pkw.
IHR NEUES ZUHAUSE IN DER WESTSTADT - MODERNISIERTE DOPPELHAUSHÄLFTE
49078 Osnabrück
Die vollständige Adresse der Immobilie erhalten Sie vom Anbieter.
Auf Karte anzeigen
Die vollständige Adresse der Immobilie erhalten Sie vom Anbieter.
Finanzierungszertifikat
In nur zwei Minuten zu Ihrem persönlichen Finanzierungszertifkat.
Infos
| Haustyp | Doppelhaushaelfte |
|---|---|
| Wohnfläche ca. | 112 m2 |
| Nutzfläche | 54 m2 |
| Grundstücksfläche | 364 m2 |
| Bezugsfrei ab | sofort |
| Zimmer | 4 |
| Schlafzimmer | 3 |
| Badezimmer | 1 |
Kosten
| Kaufpreis |
369.900 € |
|---|---|
| Provision |
3,57% Der Käufer zahlt bei Vertragsabschluss eine Maklerprovision in Höhe von 3,57% inkl. der gesetzlichen MwSt. in Höhe von 19%. Die Grundlage der Provision ist der beurkundete Kaufpreis. Die Provision ist bei Vertragsunterzeichnung fällig und verdient. |
Finanzierungsrechner:
Kaufpreis:
600.000 €
Eigenkapital:
600.000 €
Monatliche Rate
0 €
Effektiver Jahreszins
0 %
Sollzinsbindung
10 Jahre
Bausubstanz & Energieausweis
| Letzte Sanierung | 2025 |
|---|---|
| Bauphase | Haus fertig gestellt |
| Objektzustand | Modernisiert |
| Qualität der Austattung | Normal |
| Heizungsart | Zentralheizung |
| Wesentliche Energieträger | Gas |
| Energieausweis | liegt vor |
| Energieausweistyp | Verbrauchsausweis |
| Energieverbrauchskennwert | 108,9 kWh/(m²*a) |
| Energieeffizienzklasse | D |
108,9
kWh/(m²*a)
Energieeffizienzklasse D
- A+
- A
- B
- C
- D
- E
- F
- G
- H
- 0
- 25
- 50
- 75
- 100
- 125
- 150
- 175
- 200
- 225
- >250
Beschreibung des Objekts
Lage
Diese Doppelhaushälfte befindet sich im beliebten Stadtteil "Weststadt" in Osnabrück.
In der Nähe befinden sich Einkaufsmöglichkeiten, Ärzte, Schulen, Kindergärten und öffentliche Verkehrsmittel.
Für Berufspendler ist die A30 oder auch die Innenstadt in wenigen Minuten erreichbar.
Der Rubbenbruchsee mit dem Heger Holz liegen als Naherholungsgebiet fußläufig direkt vor der Tür.
Sonstige Angaben
Haben wir Ihr Interesse geweckt?
Für weitere Informationen nehmen Sie gerne Kontakt zu uns auf.
Bitte haben Sie Verständnis, dass wir nur auf Anfragen mit vollständigen Kontaktdaten reagieren werden.
Alle Angaben sind ohne Gewähr und basieren ausschließlich auf Informationen des Auftraggebers.
Wir übernehmen keine Gewähr für die Vollständigkeit, Richtigkeit und Aktualität dieser Angaben.
Grundriss
Grundriss Erdgeschoss
>
>
Grundriss Dachgeschoss
>
>
Grundriss Keller
>
>
Energieausweis Expose
>
>
Adresse
49078 Osnabrück
Interessante Orte
Preis- und Lageinformationen
Preistrend für Bestandsimmobilien in Weststadt