Traumhaft schöne Doppelhaushälfte in Westerland auf Sylt
In exzellenter Lage von Westerland liegt diese Immobilie, ruhig in einer Sackgasse gelegen und dennoch nur wenige Schritte von Strand, Promenade und Fußgängerzone entfernt.
Alle Einrichtungen des täglichen Bedarfs wie Bäcker, Lebensmittelgeschäfte und Restaurants sind bequem fußläufig erreichbar.
Dieses Hausteil verfügt über einen eigenen Eingang, einen Carportstellplatz mit Abstellraum sowie modernste Haustechnik mit eigener Erdwärmeversorgung, Glasfaseranschluss, Fußbodenheizung, maßgefertigten Tischlereinbauten und Natursteinbädern.
Als Dauerwohnung genehmigt perfekt als Ihr Zuhause auf Sylt.
Die Architektur vereint modernen Wohnkomfort mit traditioneller Sylter Bauweise, ideal für Eigennutzer oder Kapitalanleger, die Wert auf Lage, Qualität und Stil legen. Auch als Ensemble erhältlich.
Hausteil
Dauerwohnen 10b
Wohnen auf Sylt – Traumhafte Doppelhaushälfte im Herzen von Westerland
25980 Sylt (Gemeinde)
Die vollständige Adresse der Immobilie erhalten Sie vom Anbieter.
Auf Karte anzeigen
Die vollständige Adresse der Immobilie erhalten Sie vom Anbieter.
Finanzierungszertifikat
In nur zwei Minuten zu Ihrem persönlichen Finanzierungszertifkat.
Infos
| Haustyp | Doppelhaushaelfte |
|---|---|
| Etagenzahl | 3 |
| Wohnfläche ca. | 123 m2 |
| Nutzfläche | 0 m2 |
| Grundstücksfläche | 504 m2 |
| Zimmer | 3 |
| Schlafzimmer | 2 |
| Badezimmer | 2 |
| Garage/Stellplatz | Carport |
| Anzahl Garage/Stellplatz | 1 |
Kosten
| Kaufpreis |
0 € |
|---|---|
| Provision | Nein |
Finanzierungsrechner:
Kaufpreis:
600.000 €
Eigenkapital:
600.000 €
Monatliche Rate
0 €
Effektiver Jahreszins
0 %
Sollzinsbindung
10 Jahre
Bausubstanz & Energieausweis
| Baujahr | 2025 |
|---|---|
| Bauphase | Haus fertig gestellt |
| Objektzustand | Erstbezug |
| Qualität der Austattung | Luxus |
| Heizungsart | Wärmepumpe |
Beschreibung des Objekts
Ausstattung
Ausstattung / Aufteilung
*Untergeschoss*
Im Untergeschoss befindet sich ein großzügiger Vorflur mit reichlich Einbauschränken. Hier finden Sie außerdem eine Natursteindusche sowie eine Infrarot-Sauna. Weitere Schrankflächen bieten zusätzlichen Stauraum. Der Haustechnikraum ist ausgestattet mit einer Nibe-Wärmepumpe, Wasserspeicher, Glasfaseranschluss, Hebeanlage, Elektroverteilung sowie Anschlüssen und Stellplätzen für Waschmaschine und Trockner.
*Erdgeschoss*
Das Erdgeschoss empfängt Sie mit einem Vorflur, ausgestattet mit Garderobenschrank, Naturstein-Gäste-WC und Tischlerholztüren. Von hier aus gelangen Sie in den lichtdurchfluteten Wohn- und Essbereich mit Eichedielen. Die maßgefertigte Tischlerküche mit hochwertigen Geräten verfügt über ein Ceranfeld mit Muldenlüfter und eine Arbeitsplatte aus Nero Assoluto Naturstein. Ein moderner Gaskamin sorgt für Wohlfühlatmosphäre. Von hier aus führen Treppen sowohl ins Untergeschoss als auch ins Dachgeschoss. Südseitig öffnet sich der Wohnbereich zur Bangkirai-Terrasse.
*Dachgeschoss*
Über die Eichenholztreppe erreichen Sie das Dachgeschoss mit zwei Schlafzimmern, die jeweils über ein eigenes Bad verfügen. Eines der Bäder ist mit einer Wanne ausgestattet. Sämtliche Bäder sind in Naturstein ausgeführt und verfügen über hochwertige Armaturen und Villeroy & Boch Waschbecken. Maßgefertigte Badmöbel aus edlem Nussbaum sowie Kleiderschränke, teils mit LED-Beleuchtung, ergänzen die hochwertige Ausstattung.
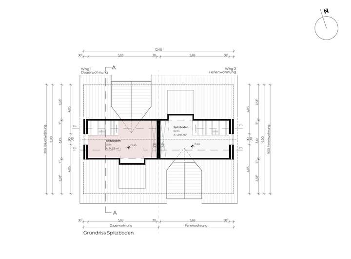
*Spitzboden*
Vom Nebenschlafzimmer führt eine Leitertreppe in den Spitzboden, der als zusätzlicher Raum genutzt werden kann. Mit einer Raumhöhe von ca. 1,60 m eignet er sich ideal als Stauraum oder Rückzugsfläche.
*Weitere Ausstattungsdetails*
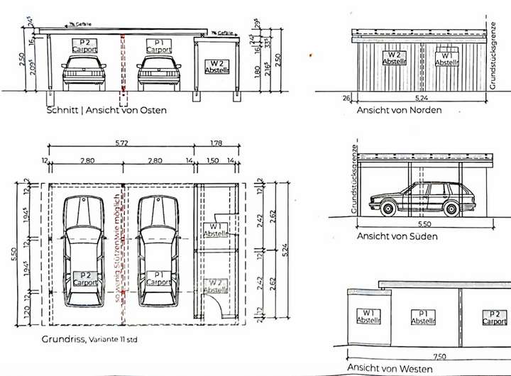
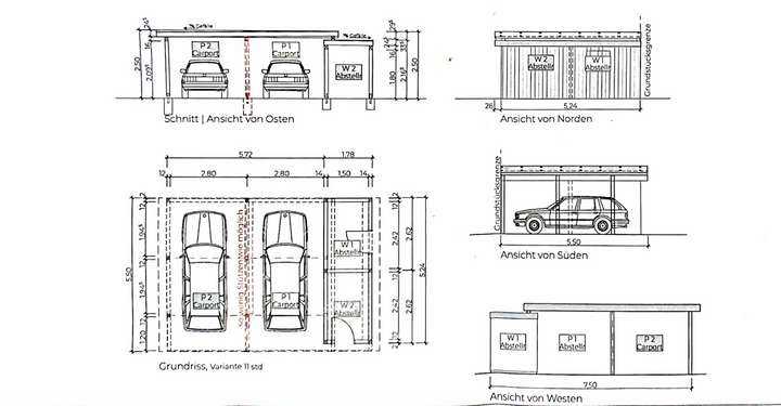
Die Wohnzimmer verfügen jeweils über zwei Terrassentüren, wobei die südlich ausgerichtete direkt auf die Bangkirai-Terrasse führt. Alle Holzfenster des Hauses öffnen sich nach außen. Zu jedem Hausteil gehört ein Stellplatz im Carport sowie ein dort befindlicher Abstellraum. Für die Dauerwohnung steht zusätzlich ein weiterer Abstellraum direkt am Haus zur Verfügung.
Die Dacheindeckung erfolgt mit Naturschiefer, die Verblendung mit einem historischen Stein. Dachrinnen und Fallrohre sind aus Kupfer ausgeführt. Das anfallende Regenwasser wird in eine unterirdische Rigole geleitet und kann dort versickern.
*Technik*
Die Immobilie ist mit moderner Haustechnik ausgestattet. Ein Glasfaseranschluss sorgt für schnelle Internetverbindungen, alle Räume verfügen über LAN-Anschlüsse. Ein zentraler Lichtausschalter am Ausgang ermöglicht komfortables Schalten beim Verlassen des Hauses. Die Flächenheizung ist in allen Räumen über Raumthermostate individuell steuerbar, ergänzt durch eine energieeffiziente Nibe-Wärmepumpe mit Brauchwasserspeicher und Erdwärmeversorgung. Sämtliche Fenster sind 3-fach verglast. Die Stellplätze sind bereits für Elektro-Ladestationen vorbereitet. Weitere Details sind LED-Beleuchtung in den Duschen, eine Infrarotsauna im Untergeschoss sowie eine hochwertige Küchenausstattung mit Miele-Ceran-Kochfeld und integriertem Muldenlüfter.
Lage
Diese Doppelhaushälfte liegt in einer der begehrtesten Lagen von Westerland, ruhig in einer kleinen Sackgasse und dennoch nur wenige Schritte vom Strand, der Promenade und der belebten Friedrichstraße entfernt. Hier verbindet sich die zentrale Lage mit der für Sylt so typischen Gelassenheit.
Alles, was das tägliche Leben angenehm macht, befindet sich in unmittelbarer Nähe: Bäcker, Feinkost, Lebensmittelgeschäfte, kleine Boutiquen, Restaurants und Cafés. Auch der Bahnhof, Ärzte und alle wichtigen Einrichtungen sind bequem zu Fuß erreichbar.
Diese Lage vereint das Beste aus zwei Welten, die Ruhe einer geschützten Wohnlage und die unmittelbare Nähe zu Meer, Stadtleben und Sylter Lebensart.
Sonstige Angaben
Die angegebenen Wohn- und Nutzflächen basieren auf dem Sylter Maß. Dabei werden sämtliche Flächen im Erd-, Dach- und Untergeschoss von Fußleiste zu Fußleiste gemessen. Die Terrasse, Spitzboden sowie Carport und Abstellraum werden mit 50% angerechnet. Diese Methode unterscheidet sich von der genormten Berechnung nach der Wohnflächenverordnung (WoFlV).
Ein Energieausweis liegt bei Besichtigung vor.
Besichtigungen sind jederzeit nach Absprache unter tel. 0171 839 79 70
Holger Drath möglich.
Weitere Dokumente
22 053 BV Dirk-Brodersen-Str.Grundriss
Lageplan
>
>
Schnitt
>
>
Untergeschoss
>
>
Erdgeschoss
>
>
Dachgeschoss
>
>
Spitzboden
>
>
Carport
>
>
Adresse
25980 Sylt (Gemeinde)
Interessante Orte
Preis- und Lageinformationen
Preistrend für Bestandsimmobilien in Sylt