Willkommen im neuen Zuhause! Die Stadtvilla Gredo mit 183 m² wird Bauherren glücklich machen. Die edle Villa betritt man durch einen Windfang, der mit einer Glastür vom großzügigen Wohnbereich getrennt ist. Der offene Wohn- und Essbereich überzeugt mit knapp 40m² und bietet mit großen Fensterelementen ausreichend Licht. Daran schließt die große Küche mit Kochinsel an. Somit wird aus diesem Bereich das gesellige Herzstück des Hauses. Im Erdgeschoss zu finden sind außerdem ein Home-Office, ein Duschbad und der Hauswirtschaftsraum.
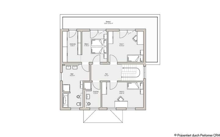
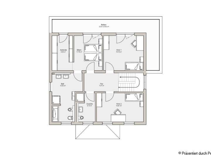
Über eine u-förmige Treppe erreicht man das Obergeschoss. Hier befinden sich zwei Kinderzimmer und ein Duschbad. Der separate Elternbereich besteht aus einem Schlafzimmer mit Ankleide und einem eigenem Badezimmer. So haben die Eltern die Möglichkeit sich zurückzuziehen.
Ein Highlight der Stadtvilla Gredo ist der 23 m² große Balkon, der vom Elternbereich und einem Kinderzimmer aus begehbar ist. Hier kann man entspannte Abende mit Blick in den Garten genießen.
Die Stadtvilla ermöglicht ein harmonisches Familienleben im Wohn- und Essbereich, der sich mit architektonisch bestens integrierten bodentiefen Fensterelementen zum Garten hin öffnet.
Auf Wunsch kann zusätzlich eine Garagen-Carport-Kombination angeboten werden.
Dieses Haus wird nach Ihren individuellen Wünschen geplant und ausgestattet!
Diese Haus hat Charakter
06686 Lützen
Die vollständige Adresse der Immobilie erhalten Sie vom Anbieter.
Auf Karte anzeigen
Die vollständige Adresse der Immobilie erhalten Sie vom Anbieter.
Finanzierungszertifikat
In nur zwei Minuten zu Ihrem persönlichen Finanzierungszertifkat.
Infos
| Haustyp | Einfamilienhaus |
|---|---|
| Wohnfläche ca. | 184 m2 |
| Grundstücksfläche | 610 m2 |
| Zimmer | 5 |
| Schlafzimmer | 3 |
| Badezimmer | 3 |
| Anzahl Garage/Stellplatz | 2 |
Kosten
| Kaufpreis |
596.150 € |
|---|---|
| Provision | Nein |
Finanzierungsrechner:
Kaufpreis:
600.000 €
Eigenkapital:
600.000 €
Monatliche Rate
0 €
Effektiver Jahreszins
0 %
Sollzinsbindung
10 Jahre
Bausubstanz & Energieausweis
| Baujahr | 2026 |
|---|---|
| Bauphase | Haus in Planung (projektiert) |
| Objektzustand | Erstbezug |
| Qualität der Austattung | Gehoben |
| Heizungsart | Wärmepumpe |
| Wesentliche Energieträger | Strom |
| Energieausweistyp | Bedarfsausweis |
| Energieverbrauchskennwert | 17,6 kWh/(m²*a) |
| Energieeffizienzklasse | A+ |
17,6
kWh/(m²*a)
Energieeffizienzklasse A+
- A+
- A
- B
- C
- D
- E
- F
- G
- H
- 0
- 25
- 50
- 75
- 100
- 125
- 150
- 175
- 200
- 225
- >250
Beschreibung des Objekts
Ausstattung
5 Zimmer, offene Küche, Windfang, Diele, 2 x Dusche, Flur, Bad, Ankleide, Hauswirtschaftsraum, Balkon
Das gezeigte Traumhaus im Überblick:
+ Schlüsselfertiges Massivhaus im Sinne der Ausstattungsbeschreibung "Edition 25"
+ Zukunftsorientierte Energieausstattung in Form einer Luft-Wasser-Wärmepumpe und Fußbodenheizung sowie einer kontrollierten Wohnraumlüftung mit Wärmerückgewinnung
+ Inklusive Bodenplatte
Beste Markenausstattung in jedem Kern-Haus:
+ Zimmermannsmäßiger Dachstuhl aus Konstruktionsvollholz
+ Dacheindeckung mit Betondachsteinen von Braas
+ Hochwertiger Kunstharz-Außenputz für eine langlebige Fassade
+ Vollständige Badausstattung von Villeroy & Boch mit Badewanne und flacher Duschwanne sowie einer Echtglasduschkabine
+ Fliesen von Villeroy & Boch in Bad und WC
+ Haustür mit 5-fach-Sicherheitsverriegelung
+ Erstklassige Innentüren der Marke Herholz
+ Fenster mit 3-Scheiben-Wärmeschutzverglasung und Rollläden
+ Stahl-Holz-Treppe mit individueller Farbgestaltungsmöglichkeit
+ Vollständige und überdurchschnittliche Elektroausstattung inklusive Klingelanlage und Netzwerkdosen
+ Rauchmelder für Ihre Sicherheit
+ Alle Leistungen aus einer Hand
+ Alle Planungs- und Architektenleistungen
+ Einsatz regionaler Handwerksbetriebe
+ Baubegleitende 5-Phasen-TÜV-Prüfung und Blower-Door-Test
+ Individuelle Anpassung auf Ihre Bedürfnisse
+ Auf Wunsch mit Keller erhältlich
+ Auf Wunsch mit weiteren Energietechniken erhältlich
Lage
- Baugrundstück mit hoher Wohnqualität
- alles was Sie brauchen, ist da: Einrichtugnen des täglichen Bedarfes, Dienstleistungen, Apotheken, Ärzte
- mehrere Kindergärten
- Schulen ebenso vorhanden
- sehr gute Anbindung an die A 14 & A 38
- ringsherum sehr gute Erholungsmöglichkeiten
Sonstige Angaben
Ist dies schon Ihr Traumhaus? Oder dürfen wir ein individuelles Haus für Sie planen?
Ich freue mich, Ihre Wünsche zu erfahren und Ihre Fragen zu beantworten.
Sie erreichen mich unter 0341-2527132
Ihre Grit Hohberg
Kern-Haus
Seit 1994 realisieren wir individuelle Häuser rund um Leipzig und Halle. Über 1.900 zufriedene Bauherren in der Region sprechen für sich.
Unser engagiertes Team plant und baut massive Häuser und begleitet Sie mit umfassendem Service.
+ Eigener Architekt
+ Preisgarantie
+ Verbindliche Bauzeit
+ 5-Phasen-TÜV-Prüfung
Der in dieser Anzeige gezeigte Preis versteht sich inklusive Grundstück und exklusive der Baunebenkosten.
Grundriss
Grundriss Erdgeschoss
>
>
Grundriss Obergeschoss
>
>
Adresse
06686 Lützen
Interessante Orte
Preis- und Lageinformationen
Preistrend für Bestandsimmobilien in Lützen