Das Massivhaus Esprit überzeugt mit vielen Finessen und macht somit seinem Namen alle Ehre. Klare Strukturen sorgen im Inneren für die Bewohner für ausreichend Platzangebot. Für genügend Licht und Helligkeit sorgen im Erd- und Dachgeschoss die bodentiefen Fensterelemente.
Das große Wohn-/ Esszimmer mit äußerst praktisch und intelligent angeschlossener Küche mit Speisekammer bietet sich ideal für ausgiebige Abendessen oder zum gemütlichen Fernsehen an. Somit dient das Erdgeschoss des modernen Einfamilienhauses als Mittelpunkt für das gemeinsame Leben im Haus. Die beiden Erker des Hauses runden das Gesamtbild der Räume ab und schenken dem Wohn- und Esszimmer eine besondere Kontur und Tiefe.
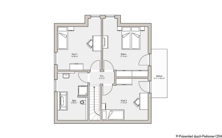
Im Dachgeschoss versprechen zwei Kinderzimmer und ein Elternschlafzimmer mit dem gemeinsamen Familienbad Ruhe und Entspannung pur. Mit dem Familienhaus Esprit liegen Sie immer richtig!
Dieses Haus wird nach Ihren individuellen Wünschen geplant und ausgestattet!
Wie im Bilderbuch - hier lesen Sie sich ins Happy End
04643 Geithain
Die vollständige Adresse der Immobilie erhalten Sie vom Anbieter.
Auf Karte anzeigen
Die vollständige Adresse der Immobilie erhalten Sie vom Anbieter.
Finanzierungszertifikat
In nur zwei Minuten zu Ihrem persönlichen Finanzierungszertifkat.
Infos
| Haustyp | Einfamilienhaus |
|---|---|
| Wohnfläche ca. | 133 m2 |
| Grundstücksfläche | 627 m2 |
| Zimmer | 4 |
| Schlafzimmer | 3 |
| Badezimmer | 1 |
| Anzahl Garage/Stellplatz | 2 |
Kosten
| Kaufpreis |
447.680 € |
|---|---|
| Provision | Nein |
Finanzierungsrechner:
Kaufpreis:
600.000 €
Eigenkapital:
600.000 €
Monatliche Rate
0 €
Effektiver Jahreszins
0 %
Sollzinsbindung
10 Jahre
Bausubstanz & Energieausweis
| Baujahr | 2026 |
|---|---|
| Bauphase | Haus in Planung (projektiert) |
| Objektzustand | Erstbezug |
| Qualität der Austattung | Gehoben |
| Heizungsart | Wärmepumpe |
| Wesentliche Energieträger | Strom |
| Energieausweistyp | Bedarfsausweis |
| Energieverbrauchskennwert | 18,8 kWh/(m²*a) |
| Energieeffizienzklasse | A+ |
18,8
kWh/(m²*a)
Energieeffizienzklasse A+
- A+
- A
- B
- C
- D
- E
- F
- G
- H
- 0
- 25
- 50
- 75
- 100
- 125
- 150
- 175
- 200
- 225
- >250
Beschreibung des Objekts
Ausstattung
4 Zimmer, offene Küche, Diele, WC, Flur, Bad, Hauswirtschaftsraum, Speisekammer
Das gezeigte Traumhaus im Überblick:
+ Schlüsselfertiges Massivhaus im Sinne der Ausstattungsbeschreibung "Edition 25"
+ Zukunftsorientierte Energieausstattung in Form einer Luft-Wasser-Wärmepumpe und Fußbodenheizung sowie einer kontrollierten Wohnraumlüftung mit Wärmerückgewinnung
+ Inklusive Bodenplatte
Beste Markenausstattung in jedem Kern-Haus:
+ Zimmermannsmäßiger Dachstuhl aus Konstruktionsvollholz
+ Dacheindeckung mit Betondachsteinen von Braas
+ Hochwertiger Kunstharz-Außenputz für eine langlebige Fassade
+ Vollständige Badausstattung von Villeroy & Boch mit Badewanne und flacher Duschwanne sowie einer Echtglasduschkabine
+ Fliesen von Villeroy & Boch in Bad und WC
+ Haustür mit 5-fach-Sicherheitsverriegelung
+ Erstklassige Innentüren der Marke Herholz
+ Fenster mit 3-Scheiben-Wärmeschutzverglasung und Rollläden
+ Stahl-Holz-Treppe mit individueller Farbgestaltungsmöglichkeit
+ Vollständige und überdurchschnittliche Elektroausstattung inklusive Klingelanlage und Netzwerkdosen
+ Rauchmelder für Ihre Sicherheit
+ Alle Leistungen aus einer Hand
+ Alle Planungs- und Architektenleistungen
+ Einsatz regionaler Handwerksbetriebe
+ Baubegleitende 5-Phasen-TÜV-Prüfung und Blower-Door-Test
+ Individuelle Anpassung auf Ihre Bedürfnisse
+ Auf Wunsch mit Keller erhältlich
+ Auf Wunsch mit weiteren Energietechniken erhältlich
Lage
- wunderschöne Baugebiet in Geithain
- viele Erholungsmöglichkeiten
- Kinderspileplätze, Grünanlagen in unmittelbarer Nähe
- perfekte Verkehrsanbindung an öffentliches Verkehrsnetz
- gute Anbindung zur Autobahn
- S-Bahn in 5 Minuten fußläufig zu erreichen
Sonstige Angaben
Ist dies schon Ihr Traumhaus? Oder dürfen wir ein individuelles Haus für Sie planen?
Ich freue mich, Ihre Wünsche zu erfahren und Ihre Fragen zu beantworten.
Sie erreichen mich unter 0341-2527132
Ihre Grit Hohberg
Kern-Haus
Seit 1994 realisieren wir individuelle Häuser rund um Leipzig und Halle. Über 1.900 zufriedene Bauherren in der Region sprechen für sich.
Unser engagiertes Team plant und baut massive Häuser und begleitet Sie mit umfassendem Service.
+ Eigener Architekt
+ Preisgarantie
+ Verbindliche Bauzeit
+ 5-Phasen-TÜV-Prüfung
Der in dieser Anzeige gezeigte Preis versteht sich inklusive Grundstück und exklusive der Baunebenkosten.
Grundriss
Grundriss Erdgeschoss
>
>
Grundriss Dachgeschoss
>
>
Adresse
04643 Geithain
Interessante Orte
Preis- und Lageinformationen
Preistrend für Bestandsimmobilien in Geithain