Objektnr: 1067479
Dieses attraktive Einfamilienhaus in Leiferde vereint modernen Wohnkomfort mit entspannter Lebensqualität. Das Einfamilienhaus aus dem Jahr 1968 wurde in Fertigbauweise der Firma Okal erbaut und bietet auf mehreren Etagen viel Platz für die ganze Familie. Die gesamte Wohnfläche beträgt ca. 220 m², einschließlich der großzügigen Schwimmhalle und des lichtdurchfluteten Wintergartens.
Die Klinkerfassade mit ca. 60 mm Dämmung sorgt für eine ansprechende Optik und gute Energieeffizienz. Das Satteldach mit Betondachsteinen ergänzt den soliden Zustand. Kunststofffenster mit Isolierverglasung bieten eine gute Wärmedämmung – im Erdgeschoss wurden sie 2004 erneuert, im Obergeschoss stammen sie aus 1997. Das Haus wird durch eine Gaszentralheizung aus dem Jahr 2003 beheizt, unterstützt von einer Solarthermieanlage, die zur Reduzierung der Energiekosten beiträgt und einen kostengünstigen Betrieb des Schwimmbades ermöglicht.
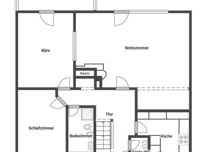
Ein besonderes Highlight ist die Schwimmhalle mit ca. 38 m² Fläche und einem Schwimmbecken von ca. 24 m². Der Zugang erfolgt bequem durch den Garten sowie direkt vom Untergeschoss aus. Für zusätzliche Erholung sorgt eine Sauna, die das Wellnessangebot des Hauses abrundet. Der großzügige Wintergarten mit angrenzender Terrasse und Blick in den grünen Garten lädt zu gemütlichen Stunden bei jeder Wetterlage ein. Auch das Wohnzimmer punktet mit einem Kaminofen, der für wohlige Wärme sorgt.
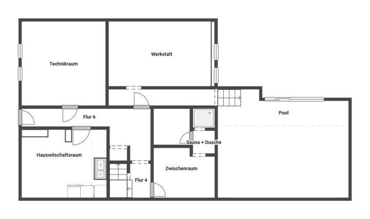
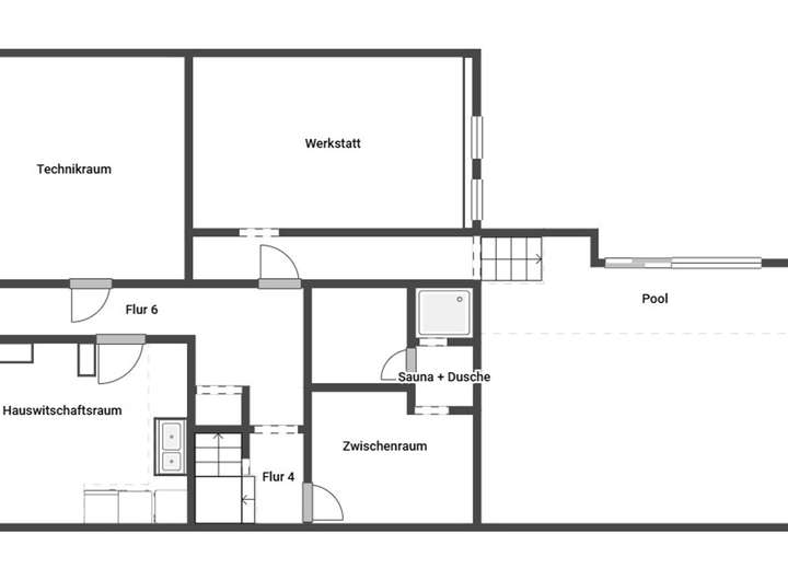
Das Haus ist voll unterkellert und bietet vielfältige Nutzungsmöglichkeiten. Der gesamte Keller ist gefliest und befindet sich in einem sehr guten Zustand. Neben einem geräumigen Partyraum bzw. Werkstatt gibt es einen Heizungsraum, eine Waschküche sowie direkten Zugang zur Sauna und zum Pool. Zusätzlich steht ein großer Dachboden zur Verfügung, der reichlich Stauraum für alles bietet, was nicht täglich gebraucht wird.
Das Haus wird vor Übergabe vollständig geräumt. Auf Wunsch können auch fest verbaute Möbel wie Einbauschränke entfernt werden. Es ist aktuell direkt bezugsfertig, kann aber selbstverständlich nach eigenen Vorstellungen gestaltet werden. Ein wesentlicher Vorteil der Fertigbauweise besteht darin, dass die Raumaufteilung mit geringem Aufwand verändert werden kann. Im Erdgeschoss ist lediglich die Mittelachse tragend, was flexible Umgestaltungen erlaubt. Im Dachgeschoss können alle innenliegenden Wände frei angepasst werden.
Ein Schadstoffgutachten wurde bereits erstellt und gibt keinen Anlass zur Besorgnis. Die Ergebnisse können im Detail eingesehen werden. Der häufig diskutierte bautypische Stoff Lindan konnte im Rahmen des Gutachtens nicht nachgewiesen werden.
Dieses Einfamilienhaus ist ideal für Familien, die großzügigen Wohnraum, entspannende Freizeitmöglichkeiten und eine solide Energiebilanz zu schätzen wissen – verbunden mit der Möglichkeit, das Haus flexibel an individuelle Wohnbedürfnisse anzupassen.
Charmantes Einfamilienhaus mit Schwimmhalle, Wintergarten und Kamin – Okal Fertighaus
38124 Braunschweig
Die vollständige Adresse der Immobilie erhalten Sie vom Anbieter.
Auf Karte anzeigen
Die vollständige Adresse der Immobilie erhalten Sie vom Anbieter.
Finanzierungszertifikat
In nur zwei Minuten zu Ihrem persönlichen Finanzierungszertifkat.
Infos
| Haustyp | Einfamilienhaus |
|---|---|
| Etagenzahl | 2 |
| Wohnfläche ca. | 220 m2 |
| Grundstücksfläche | 750,06 m2 |
| Bezugsfrei ab | ab sofort |
| Zimmer | 7 |
| Schlafzimmer | 4 |
| Badezimmer | 2 |
Kosten
| Kaufpreis |
369.000 € |
|---|---|
| Provision |
3,57 % Die Provision i.H.v. 3,57 % inkl. MwSt. ist mit Kaufvertragsbeurkundung fällig, sofern der Verkaufspreis über 83.000,00 € liegt. Liegt der Verkaufspreis dagegen bei/unter 83.000,00 €, ist die fest vereinbarte Mindestprovision i.H.v. mind. 5.950,00 € inkl. MwSt. mit Kaufvertragsbeurkundung fällig. Die Mindestprovision fällt insg. nur einmal an, wodurch Verkäufer und Käufer die Mindestprovision dann jeweils mit 2.975,00 € inkl. MwSt. tragen. |
Finanzierungsrechner:
Kaufpreis:
600.000 €
Eigenkapital:
600.000 €
Monatliche Rate
0 €
Effektiver Jahreszins
0 %
Sollzinsbindung
10 Jahre
Bausubstanz & Energieausweis
| Baujahr | 1968 |
|---|---|
| Bauphase | Haus fertig gestellt |
| Objektzustand | Gepflegt |
| Heizungsart | Gas-Heizung |
| Wesentliche Energieträger | Gas |
| Energieausweis | liegt vor |
| Energieausweistyp | Bedarfsausweis |
| Energieverbrauchskennwert | 108,2 kWh/(m²*a) |
| Energieeffizienzklasse | D |
108,2
kWh/(m²*a)
Energieeffizienzklasse D
- A+
- A
- B
- C
- D
- E
- F
- G
- H
- 0
- 25
- 50
- 75
- 100
- 125
- 150
- 175
- 200
- 225
- >250
Beschreibung des Objekts
Ausstattung
+ In ruhiger Umgebung in Sackgassenlage von Braunschweig, empfiehlt sich das Objekt zur Vermietung und zur privaten Verwendung
+ Entspannung im Freien: Der Garten auf ca. 750 m² Grund lädt zum Verweilen ein - ein Wintergarten bereichert das Erlebnis
+ Das Objekt präsentiert sich in einem gepflegten Zustand
+ Vielseitige Ausstattung des Hauses inkl. einer Einbauküche
+ Das Objekt bietet Staufläche dank des Kellers sowie Platz für Pkw dank einer Garage und eines Freistellplatzes
Lage
Lage: Sackgassenlage mit minimiertem Straßenlärm - friedliche Atmosphäre und Ruhe im Alltag
Bildung und Betreuung: Zu Fuß zu Kindergarten und Schule in max. 800 m Entfernung
Nahversorgung: Anlaufstellen wie Supermarkt, Apotheke, Postfiliale und Bankfiliale in einem Radius von max. 6 km
Anbindung: Nächste Bushaltestelle, nächster Bahnhof sowie nächste Autobahn gut erreichbar
Sonstige Angaben
Vereinbaren Sie noch heute einen Besichtigungstermin!
_____________________________________________________
Alle Angaben sind ohne Gewähr und basieren ausschließlich auf Informationen, die uns von unserem Auftraggeber zur Verfügung gestellt wurden. Wir übernehmen keine Gewähr für die Vollständigkeit, Richtigkeit und Aktualität der Angaben.
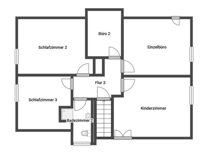
Grundriss
Grundriss Skizze EG
>
>
Grundriss Skizze OG
>
>
Grundriss Skizze UG
>
>
Adresse
38124 Braunschweig
Interessante Orte
Preis- und Lageinformationen
Preistrend für Bestandsimmobilien in Stöckheim-Leiferde