Zum Verkauf steht ein großzügiges Grundstück mit einer Fläche von 1614 m² in der charmanten Gemeinde Mutterstadt. Dieses voll erschlossene Grundstück bietet Ihnen eine Vielzahl von Möglichkeiten für Ihre Bauvorhaben. Ob Sie ein neues Zuhause für Ihre Familie schaffen oder ein Wohnprojekt realisieren möchten – die Entscheidung liegt ganz bei Ihnen.
Die Nachbarbebauung, die gemäß §34 BauGB erfolgt, ermöglicht Ihnen flexible und an die Umgebung angepasste Bebauungsmöglichkeiten. Das bedeutet, dass Sie hier kreatives Gestaltungsvermögen entfalten können und Ihre Vorstellungen in Einklang mit der vorhandenen Architektur bringen können. Stellen Sie sich vor, wie Ihr ganz persönlicher Rückzugsort oder ein lebendiges Wohnprojekt, das die Gemeinschaft bereichert, hier Gestalt annimmt.
Diese Gelegenheit ist nicht nur eine Investition in ein Grundstück, sondern auch in eine Vision, die Sie über den Zeitraum hinaus begleiten kann. Die Lage in Mutterstadt ist bestens geeignet, um sowohl ruhige Wohnbedingungen als auch eine gute Anbindung an das umliegende Verkehrsnetz zu bieten.
Nutzen Sie die Chance, auf diesem attraktiven Baugrundstück Ihre Ideen und Träume in die Tat umzusetzen. Lassen Sie uns gemeinsam an dieser spannenden Möglichkeit arbeiten, die nicht nur Ihre Lebensqualität steigern, sondern auch einen nachhaltigen Einfluss auf die Gemeinschaft ausüben kann.
Ich freue mich darauf, in einem persönlichen Gespräch mehr über Ihre Vorstellungen und Wünsche zu erfahren. Lassen Sie uns gemeinsam den ersten Schritt in diese aufregende Zukunft gehen!
Entfalten Sie Ihre Träume auf einem tollen Baugrundstück!
67112 Mutterstadt
Die vollständige Adresse der Immobilie erhalten Sie vom Anbieter.
Auf Karte anzeigen
Die vollständige Adresse der Immobilie erhalten Sie vom Anbieter.
Finanzierungszertifikat
In nur zwei Minuten zu Ihrem persönlichen Finanzierungszertifkat.
Infos
| Vermarktungsart | Kaufen |
|---|---|
| Grundstücksfläche | 1.641 m2 |
Kosten
| Miete pro Jahr |
679.000 € |
|---|---|
| Provision |
3,57 3,57 |
Finanzierungsrechner:
Kaufpreis:
600.000 €
Eigenkapital:
600.000 €
Monatliche Rate
0 €
Effektiver Jahreszins
0 %
Sollzinsbindung
10 Jahre
Beschreibung des Objekts
Lage
Die Immobilie befindet sich in einem der begehrtesten Stadtteile von Mutterstadt, in einer absoluten A-Lage. Der Stadtteil besticht durch seine ruhige und familienfreundliche Atmosphäre, gepaart mit einer ausgezeichneten Infrastruktur. In unmittelbarer Nähe befinden sich zahlreiche Einkaufsmöglichkeiten, Schulen, Kindergärten und Restaurants. Auch die grünen Naherholungsgebiete laden zu Spaziergängen und sportlichen Aktivitäten im Freien ein.
Mutterstadt selbst ist eine charmante Stadt in der Metropolregion Rhein-Neckar. Mit einer guten Verkehrsanbindung an die umliegenden Städte wie Ludwigshafen und Mannheim, bietet sie ihren Bewohnern ein angenehmes Wohn- und Lebensumfeld. Die historische Altstadt lädt zum Bummeln und Entdecken ein, während das kulturelle Angebot mit Museen und Veranstaltungen vielfältig ist. Die Stadt verbindet Tradition mit Modernität und bietet eine hohe Lebensqualität.
Die Region rund um Mutterstadt ist geprägt von einer malerischen Landschaft mit Weinbergen und Wäldern. Die Nähe zum Rhein und dem Pfälzer Wald bietet vielfältige Freizeitmöglichkeiten für Naturliebhaber und Outdoor-Enthusiasten. Die Pfalz ist zudem bekannt für ihre exzellenten Weine und kulinarischen Spezialitäten, die in den gemütlichen Weinstuben genossen werden können. In dieser lebenswerten Region vereint sich die idyllische Natur mit einer ausgezeichneten Lebensqualität.
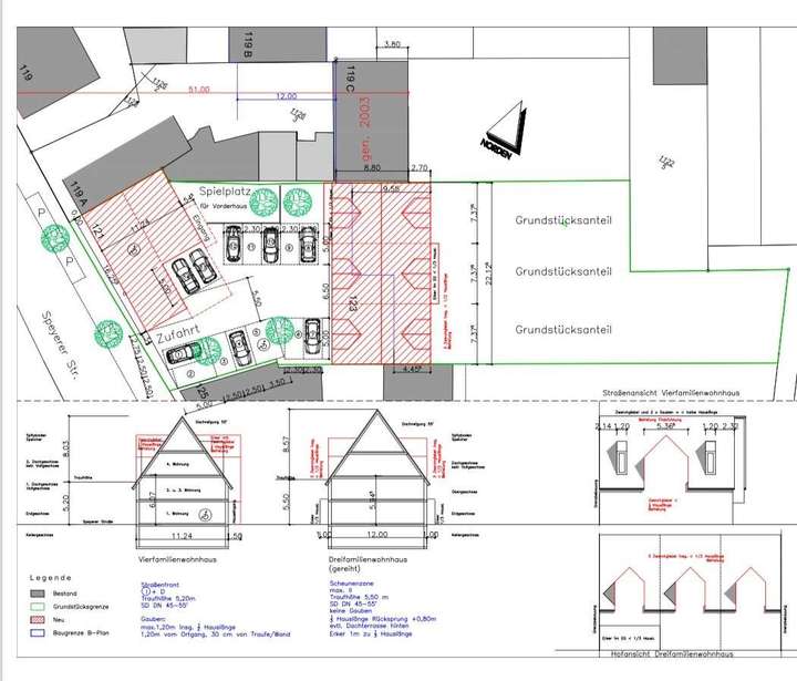
Grundriss
Planung Idee
>
>
Lageplan Speyerstr.
>
>
Kataster Speyererstr121-123
>
>