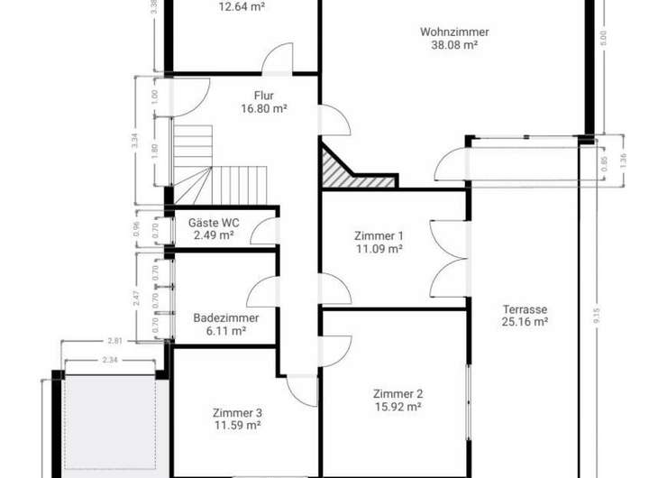
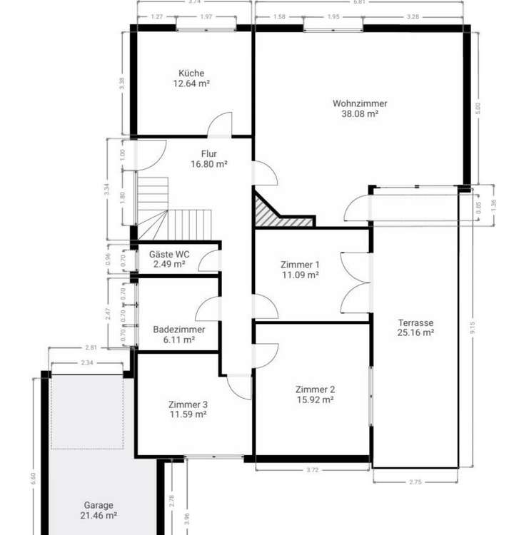
Das Haus aus dem Jahr 1980 präsentiert sich in ruhiger, familienfreundlicher Lage von Hamburg‑Niendorf und überzeugt durch seine großzügige Raumaufteilung und die vielseitigen Nutzungsmöglichkeiten. Im Erdgeschoss befindet sich eine große Wohneinheit mit ca. 125 m², bestehend aus einem lichtdurchfluteten Wohnzimmer mit Zugang zur Terrasse, drei Schlafzimmern, Küche, Badezimmer und Gäste‑WC; die Wohnung ist derzeit bis 30.11.2025 vermietet und steht ab 01.12.2025 zur freien Nutzung zur Verfügung. Das Dachgeschoss bietet weitere ca. 75 m² Wohnfläche mit Wohnzimmer, zwei Schlafzimmern, Küche, Bad und Balkon und ist aktuell als Einliegerwohnung mit Staffelmietvertrag vermietet; eine ordentliche Eigenbedarfskündigung nach § 573, 573a BGB ist grundsätzlich möglich.
Im Kellergeschoss stehen ca. 115 m² Nutzfläche mit Lager‑ und Hobbyräumen, Heizungsraum, Waschküche und einem Kellerraum mit Schankbar zur Verfügung, der leer übergeben wird. Das Haus ist voll unterkellert, über zwei Zugänge erreichbar und wurde 2023 mit Wärmepumpen modernisiert. Eine angeschlossene Garage und ein Carport mit direktem Grundstückszugang runden das Angebot ab und bieten komfortable Parkmöglichkeiten direkt am Haus.
Ausstattung & Highlights
• Ca. 200 m² Wohnfläche + ca. 137 m² Nutzfläche (insgesamt ca. 337 m²)
• 11 Zimmer auf drei Etagen, ideal für Familien, Homeoffice oder Mehrgenerationenwohnen
• Einliegerwohnung im Dachgeschoss mit bestehendem Mietverhältnis und Staffelmiete
• Terrasse und Balkon, gepflegter Garten mit großer Grünfläche
• Garage und Carport mit direktem Zugang zum Grundstück
• Voll unterkellert mit vielseitig nutzbaren Räumen und Schankbar (leer bei Übergabe)
• Wärmepumpenmodernisierung seit 2023
*
• Beliebte, ruhige Wohnlage in Hamburg‑Niendorf mit sehr guter Infrastruktur und Verkehrsanbindung
*
• Bauantrag zur zusätzlichen Grundstücksnutzung in Bearbeitung – attraktives Entwicklungspotenzia
Charmantes Einfamilienhaus mit Einliegerwohnung, großem Grundstück & Ausbaupotenzial in Hamburg‑Nien
Nienkamp 5,
22453 Hamburg
Auf Karte anzeigen
Finanzierungszertifikat
In nur zwei Minuten zu Ihrem persönlichen Finanzierungszertifkat.
Infos
| Haustyp | Einfamilienhaus |
|---|---|
| Etagenzahl | 3 |
| Wohnfläche ca. | 200 m2 |
| Nutzfläche | 137 m2 |
| Grundstücksfläche | 1.050 m2 |
| Bezugsfrei ab | 9.12.2025 |
| Zimmer | 11 |
| Schlafzimmer | 5 |
| Badezimmer | 2 |
| Garage/Stellplatz | Carport |
| Anzahl Garage/Stellplatz | 1 |
Kosten
| Kaufpreis |
1.285.000 € |
|---|---|
| Provision | Nein |
| Mieteinnahmen | 1.335 € |
Finanzierungsrechner:
Kaufpreis:
600.000 €
Eigenkapital:
600.000 €
Monatliche Rate
0 €
Effektiver Jahreszins
0 %
Sollzinsbindung
10 Jahre
Bausubstanz & Energieausweis
| Baujahr | 1980 |
|---|---|
| Letzte Sanierung | 2023 |
| Bauphase | Haus fertig gestellt |
| Objektzustand | Gepflegt |
| Qualität der Austattung | Gehoben |
| Heizungsart | Wärmepumpe |
| Wesentliche Energieträger | Gas |
| Energieausweis | laut Gesetz nicht erforderlich |
Beschreibung des Objekts
Lage
Das weitläufige Grundstück ist sowohl von der Vorderseite als auch von der Seite zugänglich und bietet auf der rückwärtigen Grünfläche viel Platz für Garten, Spielbereich oder weitere Gestaltungsideen. Ein bestehendes kleines Gartenhäuschen wird vor Übergabe entfernt, sodass neue Eigentümer eigene Konzepte umsetzen können. Die Umgebung ist geprägt von gepflegten Einfamilienhäusern, kurzen Wegen zu Einkaufsmöglichkeiten, Schulen, Kitas, Ärzten sowie einer sehr guten Anbindung an U‑Bahn, Bus, A7 und den Hamburger Flughafen; der nahegelegene Niendorfer Gehege Park sorgt für hohen Freizeit‑ und Erholungswert im Grünen.
Grundriss
grundriss_keller
>
>
grundriss_EG
>
>
grundriss_1OG
>
>
Adresse
Nienkamp 5, 22453 Hamburg
Interessante Orte
Preis- und Lageinformationen
Preistrend für Bestandsimmobilien in Niendorf