Objektnr: 1066932
In gefragter Lage von Gifhorn wartet dieses außergewöhnliche Objekt auf seine neuen Besitzer – sei es als lukratives Investment, für den Start in die Selbstständigkeit oder zur Verwirklichung eines einzigartigen Veranstaltungs- und Gastronomiekonzepts. Besonders interessant: Es besteht kein Denkmalschutz – dadurch sind Umbauten und Modernisierungen deutlich unkomplizierter realisierbar.
Das Ensemble aus Restaurant, Hotel und Ausbaureserven überzeugt durch stabile Einnahmen und enorme Flexibilität in der Nutzung. Ob als klassisches Restaurant mit Hotelbetrieb, moderne Eventlocation für Hochzeiten und Feiern oder als exklusive Veranstaltungsräume – hier sind Ihrer Vision keine Grenzen gesetzt.
Der großzügige Gastraum mit eleganter Theke, das charmante Kaminzimmer und die geräumige Gastro- sowie separate Kaltküche bieten optimale Voraussetzungen für einen anspruchsvollen gastronomischen Betrieb und Events aller Art. Stilvolle WC-Anlagen ergänzen die Ausstattung auf hohem Niveau.
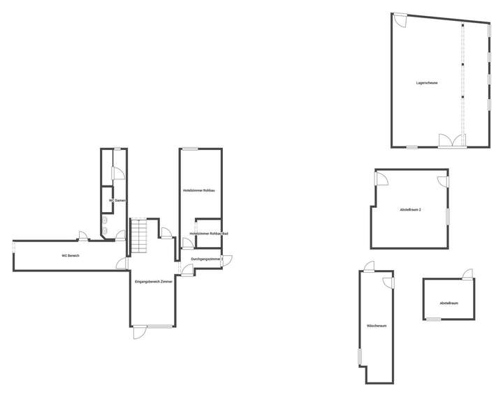
Im Hotelbereich stehen sechs gepflegte Zimmer (je ca. 15–18 m²) zur Verfügung, eines davon derzeit im Ausbau – perfekt, um Übernachtungsgästen nach Veranstaltungen höchsten Komfort zu bieten. Eine modernisierte Betreiberwohnung mit ca. 113 m² bietet zusätzlichen Wohnraum oder Platz für weitere Konzepte.
Ein weiteres Plus: Das separate Nebengebäude eröffnet Ihnen zusätzlichen Raum für Ausbau, Lagerung oder kreative Ideen. Zudem ist das Grundstück auch als Baugrundstück nutzbar – eine attraktive Option für zukünftige Erweiterungen oder neue Bebauung.
Die Immobilie präsentiert sich in einem sehr gepflegten Zustand: Hochwertige Modernisierungen wie eine neue Theke, renoviertes Kaminzimmer, moderne Küchentechnik und erneuerte Gäste-WCs wurden bereits umgesetzt. Zudem wurden 2021 fünf Hotelzimmer samt Bädern umfassend saniert. Ausbaureserven für weitere Hotelzimmer, einen Tanzsaal oder großzügige Eventflächen sind vorhanden und bieten enormes Entwicklungspotenzial.
Eine effiziente Gasheizung und eine unterstützende Ölheizung sichern die Wärmeversorgung. Die monatlichen Betriebskosten für Strom und Gas liegen aktuell bei ca. 3.000 €, mit einer jährlichen Rückerstattung von ca. 4.000–5.000 €. Hinzu kommen etwa 1.500 € jährlich für Versicherungen.
Besonders attraktiv: Rund 40 Stellplätze auf beiden Seiten der Straße garantieren eine entspannte Parksituation – auch bei großen Veranstaltungen.
Ob Gastronom, Eventveranstalter oder Investor – dieses Objekt bietet Ihnen die perfekte Bühne für Ihren Erfolg!
Vielseitiges Top-Objekt in Wilsche: Restaurant, Hotel und Eventlocation – Ihre Chance auf Erfolg!
38518 Gifhorn
Die vollständige Adresse der Immobilie erhalten Sie vom Anbieter.
Auf Karte anzeigen
Die vollständige Adresse der Immobilie erhalten Sie vom Anbieter.
Finanzierungszertifikat
In nur zwei Minuten zu Ihrem persönlichen Finanzierungszertifkat.
Infos
| Haustyp | Mehrfamilienhaus |
|---|---|
| Etagenzahl | 2 |
| Wohnfläche ca. | 531 m2 |
| Grundstücksfläche | 4.142,21 m2 |
| Bezugsfrei ab | nach Absprache |
| Zimmer | 10 |
| Schlafzimmer | 1 |
| Badezimmer | 3 |
Kosten
| Kaufpreis |
449.000 € |
|---|---|
| Provision |
7,14 % Käufer-Provision: 7,14 % inkl. MwSt., sofern der Verkaufspreis über 83.000,00 € liegt. Die Provision ist mit Beurkundung des Kaufvertrages fällig. Liegt der Verkaufspreis dagegen bei/unter 83.000,00 €, ist die fest vereinbarte Mindestprovision i.H.v. mind. 5.950,00 € inkl. MwSt. mit Kaufvertragsbeurkundung fällig. |
Finanzierungsrechner:
Kaufpreis:
600.000 €
Eigenkapital:
600.000 €
Monatliche Rate
0 €
Effektiver Jahreszins
0 %
Sollzinsbindung
10 Jahre
Bausubstanz & Energieausweis
| Baujahr | 1804 |
|---|---|
| Bauphase | Haus fertig gestellt |
| Heizungsart | Gas-Heizung |
| Wesentliche Energieträger | Gas, Öl |
| Energieausweis | liegt vor |
| Energieausweistyp | Verbrauchsausweis |
| Energieverbrauchskennwert | 355,0 kWh/(m²*a) |
| Energieeffizienzklasse | H |
355,0
kWh/(m²*a)
Energieeffizienzklasse H
- A+
- A
- B
- C
- D
- E
- F
- G
- H
- 0
- 25
- 50
- 75
- 100
- 125
- 150
- 175
- 200
- 225
- >250
Beschreibung des Objekts
Ausstattung
+ Großzügige Räume und Ausbaupotential als Eventlocation
+ Wohnung für den Eigenbedarf oder Weitervermietung
+ Hotel mit 6 Zimmern (eines im Ausbau, 5 modernisiert), Nebengebäude, ca. 40 Stellplätze für Pkw
+ Beste Voraussetzungen für Eigennutzung oder Vermietung dank einwandfreiem Zustand
Lage
Lage: Attraktive Lage in Wilsche mit guten Bedingungen für Selbstnutzer oder Anleger
Bildung und Betreuung: Familienfreundliche Lage dank Kindergarten und Schule in fußläufiger Entfernung
Nahversorgung: Täglicher Bedarf gedeckt: Supermarkt, Apotheke, Postfiliale und Bankfiliale in max. 6 km Entfernung
Anbindung: Nächste Bushaltestelle, nächster Bahnhof und nächste Autobahn komfortabel erreichbar
Sonstige Angaben
Vereinbaren Sie noch heute einen Besichtigungstermin!
_____________________________________________________
Alle Angaben sind ohne Gewähr und basieren ausschließlich auf Informationen, die uns von unserem Auftraggeber zur Verfügung gestellt wurden. Wir übernehmen keine Gewähr für die Vollständigkeit, Richtigkeit und Aktualität der Angaben.
Grundriss
Grundriss Skizze EG
>
>
Grundriss Skizze 1.OG
>
>
Adresse
38518 Gifhorn
Interessante Orte
Preis- und Lageinformationen
Preistrend für Bestandsimmobilien in Gifhorn