Das Bauhaus Anteo ist ein modernes Kern-Haus mit 214 m². Hier hat eine Familie genügend Platz um sich Wohlzufühlen.
Das Wohn- und Esszimmer auf 55 m² wird zum Lebensmittelpunkt des Hauses, denn direkt angeschlossen ist die offene Küche mit Speisekammer. Große Fensterelemente im Wohnbereich bieten eine grenzenlose Sicht nach draußen. Ebenfalls im Erdgeschoss zu finden sind ein Home-Office, ein Duschbad und der Hauswirtschaftsraum, über den man in die Doppelgarage gelangt.
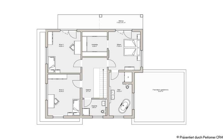
Eine geradlinige Treppe führt in die lichtdurchflutete Galerie im Obergeschoss. Für die Eltern ist hier ein 40 m² großer, separater Bereich geplant. Dieser dient als perfekter Rückzugsort nach einem stressigen Tag. Vom geräumigen Schlafzimmer gelangt man in die Ankleide als auch in das Badezimmer mit Dusche und freistehender Badewanne. Von der Galerie erreicht man außerdem zwei gleichgroße Kinderzimmer und ein weiteres Duschbad.
Abgerundet wird der durchdachte Grundriss von einem großzügigen Balkon in Richtung des Gartens. Dieser ist von einem der Kinderzimmer und dem Elternbereich begehbar.
Dieses Haus wird nach Ihren individuellen Wünschen geplant und ausgestattet!
Wohnkomfort - gepaart mit Stil
04668 Grimma
Die vollständige Adresse der Immobilie erhalten Sie vom Anbieter.
Auf Karte anzeigen
Die vollständige Adresse der Immobilie erhalten Sie vom Anbieter.
Finanzierungszertifikat
In nur zwei Minuten zu Ihrem persönlichen Finanzierungszertifkat.
Infos
| Haustyp | Einfamilienhaus |
|---|---|
| Wohnfläche ca. | 214 m2 |
| Grundstücksfläche | 960 m2 |
| Zimmer | 5 |
| Schlafzimmer | 3 |
| Badezimmer | 3 |
| Anzahl Garage/Stellplatz | 2 |
Kosten
| Kaufpreis |
822.900 € |
|---|---|
| Provision | Nein |
Finanzierungsrechner:
Kaufpreis:
600.000 €
Eigenkapital:
600.000 €
Monatliche Rate
0 €
Effektiver Jahreszins
0 %
Sollzinsbindung
10 Jahre
Bausubstanz & Energieausweis
| Baujahr | 2026 |
|---|---|
| Bauphase | Haus in Planung (projektiert) |
| Objektzustand | Erstbezug |
| Qualität der Austattung | Gehoben |
| Heizungsart | Wärmepumpe |
| Wesentliche Energieträger | Strom |
| Energieausweistyp | Bedarfsausweis |
| Energieverbrauchskennwert | 17,6 kWh/(m²*a) |
| Energieeffizienzklasse | A+ |
17,6
kWh/(m²*a)
Energieeffizienzklasse A+
- A+
- A
- B
- C
- D
- E
- F
- G
- H
- 0
- 25
- 50
- 75
- 100
- 125
- 150
- 175
- 200
- 225
- >250
Beschreibung des Objekts
Ausstattung
5 Zimmer, offene Küche, Diele, 2 x Dusche, Galerie, Bad, Ankleide, Hauswirtschaftsraum, Speisekammer, Balkon, Doppelgarage
Das gezeigte Traumhaus im Überblick:
+ Schlüsselfertiges Massivhaus im Sinne der Ausstattungsbeschreibung "Edition 25"
+ Zukunftsorientierte Energieausstattung in Form einer Luft-Wasser-Wärmepumpe und Fußbodenheizung sowie einer kontrollierten Wohnraumlüftung mit Wärmerückgewinnung
+ Inklusive Bodenplatte
Beste Markenausstattung in jedem Kern-Haus:
+ Hochwertiger Kunstharz-Außenputz für eine langlebige Fassade
+ Vollständige Badausstattung von Villeroy & Boch mit Badewanne und flacher Duschwanne sowie einer Echtglasduschkabine
+ Fliesen von Villeroy & Boch in Bad und WC
+ Haustür mit 5-fach-Sicherheitsverriegelung
+ Erstklassige Innentüren der Marke Herholz
+ Fenster mit 3-Scheiben-Wärmeschutzverglasung und Rollläden
+ Stahl-Holz-Treppe mit individueller Farbgestaltungsmöglichkeit
+ Vollständige und überdurchschnittliche Elektroausstattung inklusive Klingelanlage und Netzwerkdosen
+ Rauchmelder für Ihre Sicherheit
+ Alle Leistungen aus einer Hand
+ Alle Planungs- und Architektenleistungen
+ Einsatz regionaler Handwerksbetriebe
+ Baubegleitende 5-Phasen-TÜV-Prüfung und Blower-Door-Test
+ Individuelle Anpassung auf Ihre Bedürfnisse
+ Auf Wunsch mit Keller erhältlich
+ Auf Wunsch mit weiteren Energietechniken erhältlich
Lage
- das Grundstück ist sehr schön gelegen
- direkt an der Grenze zu Grimma/Waldbardau
- Schulen und KITA befindet sich Grimma
- etwa 200 Meter vom Grundstück ist eine Bushaltestelle
- sie haben zahlreiche Einkaufsmöglichkeiten Grimma direkt
- ebenso gute Anschlussmöglichkeiten mit öffentlichen Verkehrsmitteln und Auto
Sonstige Angaben
Ist dies schon Ihr Traumhaus? Oder dürfen wir ein individuelles Haus für Sie planen?
Ich freue mich, Ihre Wünsche zu erfahren und Ihre Fragen zu beantworten.
Sie erreichen mich unter 0341-2527132
Ihre Grit Hohberg
Kern-Haus
Seit 1994 realisieren wir individuelle Häuser rund um Leipzig und Halle. Über 1.900 zufriedene Bauherren in der Region sprechen für sich.
Unser engagiertes Team plant und baut massive Häuser und begleitet Sie mit umfassendem Service.
+ Eigener Architekt
+ Preisgarantie
+ Verbindliche Bauzeit
+ 5-Phasen-TÜV-Prüfung
Der in dieser Anzeige gezeigte Preis versteht sich inklusive Grundstück und exklusive der Baunebenkosten.
Grundriss
Grundriss Erdgeschoss
>
>
Grundriss Obergeschoss
>
>
Adresse
04668 Grimma
Interessante Orte
Preis- und Lageinformationen
Preistrend für Bestandsimmobilien in Grimma