Mitten im Schlaubetal - Wohnen in der Natur oder ein Feriendomizil zum Entspannen!
Diese liebevoll sanierte Doppelhaushälfte mit einer Wohnfläche von ca. 73 m² präsentiert sich auf einem großzügigen Grundstück von ca. 2.122 m² als wohldurchdachtes Wohnangebot. Das im Jahr 1923 errichtete und unter Denkmalschutz stehende Gebäude verbindet historischen Charakter mit modernem Wohnkomfort. Im Rahmen einer umfassenden Sanierung im Jahr 2011 wurde die Immobilie technisch und optisch auf den aktuellen Stand gebracht, sodass ein angenehmes Wohnumfeld entstanden ist.
Das denkmalgeschützte Gebäude verbindet auf gelungene Weise historischen Charme mit moderner Ausstattung. Die Fassade und die denkmalrelevanten Elemente wurden im Rahmen der Sanierung besonders sorgfältig erhalten und restauriert.
Der weitläufige Garten bietet zahlreiche Gestaltungsmöglichkeiten, sei es als Spielfläche, für Hobbygärtner oder zum Entspannen im Freien. Aufgrund der Grundstücksgröße ist auch an sonnigen Tagen Privatsphäre gewährleistet. Die gepflegte Außenanlage rundet das Gesamtbild der Immobilie ab.
Parkmöglichkeiten sind auf dem Grundstück vorhanden. Die Lage ist ruhig und sehr idyllisch.
Diese gepflegte Doppelhaushälfte ist sowohl für Paare als auch für kleine Familien geeignet, die Wert auf ein harmonisches Wohnumfeld, historische Bausubstanz und moderne Ausstattung legen. Überzeugen Sie sich bei einem persönlichen Besichtigungstermin von den Vorzügen dieser Immobilie! Wir freuen uns darauf, Ihnen das Objekt vorstellen zu dürfen.
Liebevoll sanierte und denkmalgeschützte Doppelhaushälfte auf großem Grundstück
15890 Siehdichum
Die vollständige Adresse der Immobilie erhalten Sie vom Anbieter.
Auf Karte anzeigen
Die vollständige Adresse der Immobilie erhalten Sie vom Anbieter.
Finanzierungszertifikat
In nur zwei Minuten zu Ihrem persönlichen Finanzierungszertifkat.
Infos
| Haustyp | Doppelhaushaelfte |
|---|---|
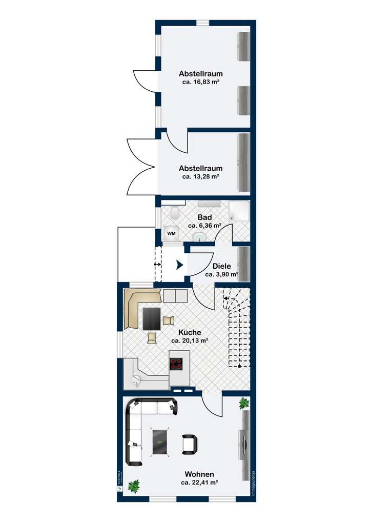
| Wohnfläche ca. | 73 m2 |
| Grundstücksfläche | 2.122 m2 |
| Zimmer | 3 |
| Badezimmer | 1 |
| Garage/Stellplatz | Carport |
| Anzahl Garage/Stellplatz | 1 |
Kosten
| Kaufpreis |
225.000 € |
|---|---|
| Provision |
Käuferprovision beträgt 3,57 % (inkl. MwSt.) des beurkundeten Kaufpreises |
Finanzierungsrechner:
Kaufpreis:
600.000 €
Eigenkapital:
600.000 €
Monatliche Rate
0 €
Effektiver Jahreszins
0 %
Sollzinsbindung
10 Jahre
Bausubstanz & Energieausweis
| Baujahr | 1923 |
|---|---|
| Denkmalschutzobjekt | Ja |
| Objektzustand | Saniert |
| Heizungsart | Fußbodenheizung |
| Wesentliche Energieträger | Holz |
| Energieausweis | laut Gesetz nicht erforderlich |
Beschreibung des Objekts
Ausstattung
Grundstücksfläche ca. 2.122 m²
Wohnfläche ca. 73 m²
BAUWEISE UND AUSTATTUNG:
- Baujahr 1923
- denkmalgeschützt
- Umfassende Sanierung von 2011-2013
- Holzfenster (Isoglas)
- Fußböden: Laminat, Fliesen, Dielen
- Zentralheizung
- Innentreppe in Holz
- Einbauküche
AUSSENBEREICH:
- Grundstück vollständig eingefriedet
- Aufwendige Gartenanlage
- Doppelgarage
- Gartenlaube im Rohbau
- Nebengebäude für Gartengeräte
Lage
Siehdichum besticht durch seine ruhige Lage inmitten einer naturnahen Umgebung, die Familien ein sicheres und harmonisches Lebensumfeld bietet. Die Gemeinde überzeugt mit einer angenehmen Infrastruktur, die den Alltag erleichtert, und einer ländlichen Lebensqualität, die Raum für Erholung und Gemeinschaft schafft.
Die unmittelbare Umgebung von Siehdichum lädt mit weitläufigen Grünflächen und naturnahen Freizeitmöglichkeiten zu gemeinsamen Aktivitäten im Freien ein. Die Dorfgemeinschaftshäuser und Freilichtbühnen fördern zudem ein lebendiges Miteinander und kulturelle Teilhabe, die das soziale Gefüge stärken.
Kindergärten in der Nähe bieten zudem eine liebevolle Betreuung und fördern frühkindliche Entwicklung. Die medizinische Versorgung ist durch Allgemeinmediziner und Fachärzte in wenigen Autominuten gesichert, was für Familien ein beruhigendes Gefühl von Sicherheit und Fürsorge schafft. Einkaufsmöglichkeiten für den täglichen Bedarf sind ebenfalls gut erreichbar und runden das familienfreundliche Angebot ab. Die Anbindung an den öffentlichen Nahverkehr, etwa durch die Bushaltestelle „Fünfeichen, Försterei“ in nur einer Gehminute, ermöglicht flexible Mobilität und erleichtert den Zugang zu weiterführenden Schulen und Freizeitangeboten.
Für Familien, die Wert auf eine behütete und naturnahe Umgebung legen, bietet Siehdichum eine ideale Heimat mit einer ausgewogenen Mischung aus Sicherheit, Gemeinschaft und Lebensqualität – ein Ort, an dem Kinder unbeschwert aufwachsen und Eltern sich rundum wohlfühlen können.
Sonstige Angaben
GELDWÄSCHE: Als Immobilienmaklerunternehmen ist die von Poll Immobilien GmbH nach § 2 Abs. 1 Nr. 14 und § 11 Abs. 1, 2 Geldwäschegesetz (GwG) dazu verpflichtet, bei der Begründung einer Geschäftsbeziehung die Identität des Vertragspartners festzustellen und zu überprüfen, bzw. sobald ein ernsthaftes Interesse an der Durchführung des Immobilienkaufvertrages besteht. Hierzu ist es erforderlich, dass wir nach § 11 Abs. 4 GwG die relevanten Daten Ihres Personalausweises festhalten (wenn Sie als natürliche Person handeln) – beispielsweise mittels einer Kopie. Bei einer juristischen Person benötigen wir eine Kopie des Handelsregisterauszugs, aus welchem der wirtschaftlich Berechtigte hervorgeht. Das Geldwäschegesetz sieht vor, dass der Makler die Kopien bzw. Unterlagen fünf Jahre aufbewahren muss. Als unser Vertragspartner haben Sie auch eine Mitwirkungspflicht nach § 11 Abs. 6 GwG.
HAFTUNG: Wir weisen darauf hin, dass die von uns weitergegebenen Objektinformationen, Unterlagen, Pläne etc. vom Verkäufer bzw. Vermieter stammen. Eine Haftung für die Richtigkeit oder Vollständigkeit der Angaben übernehmen wir daher nicht. Es obliegt daher unseren Kunden, die darin enthaltenen Objektinformationen und Angaben auf ihre Richtigkeit hin zu überprüfen. Alle Immobilienangebote sind freibleibend und vorbehaltlich Irrtümer, Zwischenverkauf- und Vermietung oder sonstiger Zwischenverwertung.
UNSER SERVICE FÜR SIE ALS EIGENTÜMER:
Planen Sie den Verkauf oder die Vermietung Ihrer Immobilie, so ist es für Sie wichtig, deren Marktwert zu kennen. Lassen Sie kostenfrei und unverbindlich den aktuellen Wert Ihrer Immobilie professionell durch einen unserer Immobilienspezialisten einschätzen. Unser bundesweites und internationales Netzwerk ermöglicht es uns, Verkäufer bzw. Vermieter und Interessenten bestmöglich zusammenzuführen.
Grundriss
Erdgeschoss
>
>
Dachgeschoss
>
>
Adresse
15890 Siehdichum
Interessante Orte
Preis- und Lageinformationen
Preistrend für Bestandsimmobilien in Siehdichum