Baugrundstück ca. 913 m² (B 18 x L 50 Meter). Im hinteren Bereich des Grundstückes steht bereits ein Mehrfamilienhaus mit drei vermieteten Wohneinheiten, ca. 230 m² Gesamtwohnfläche sowie ein Schuppen mit drei Boxen als Kellerersatz. Dieses wunderbare Grundstück erlaubt Ihnen im vorderen Bereich zur Straße Ihren individuellen Neubau zu errichten, Sie wohnen dann in guter, gehobener Nachbarschaft. Das Mehrfamilienhaus mit Vollwärmedämmung ist nicht unterkellert. Im Jahr 2000 erhielt das Gebäude (Baujahr 1932) eine Grundsanierung mit einem modernen Anbau. Auf jeder Etage gibt es jeweils eine Wohneinheit mit jeweils Terrasse/Balkon. Alle Wohnungen sind jeweils mit Gasetagenheizungen und modernen ISO-Fenstern ausgestattet. Jede Wohnung hat jeweils ein Wannenbad mit Fenster und die Küchen sind im amerikanischen Stil offen in das jeweilige Wohnzimmer integriert. Die Böden sind teilweise gefliest, teilweise mit Laminat belegt. Die Mieter wohnen bereits seit sehr vielen Jahren dort, sind sehr zufrieden und möchten auch weiterhin dort wohnen bleiben. Aus Gründen der Privatsphäre haben wir die Wohnungen nicht fotografiert, dafür bitten wir um Ihr Verständnis. Sie finden hier eine spannende Immobilie, wo Sie Ihr eigenes Wohnhaus bauen und gleichzeitig generieren Sie Mieteinnahmen über das vermietete Bestandsgebäude.
Baugrundstück – inklusive einem Mehrfamilienhaus – Gelegenheit!
Frankenstraße 20,
16547 Birkenwerder
Auf Karte anzeigen
Finanzierungszertifikat
In nur zwei Minuten zu Ihrem persönlichen Finanzierungszertifkat.
Infos
| Vermarktungsart | Kaufen |
|---|---|
| Grundstücksfläche | 913 m2 |
| Erschließung | Erschlossen |
| Empfohlene Nutzung | Doppelhaus, Einfamilienhaus |
| Bebaubar nach | wie Nachbarbebauung |
| Verfügbar ab | sofort bzw. nach Vereinbarung! |
Kosten
| Miete pro Jahr |
775.000 € |
|---|---|
| Provision |
3,48 % vom Kaufpreis inklusive Mehrwertsteuer |
Finanzierungsrechner:
Kaufpreis:
600.000 €
Eigenkapital:
600.000 €
Monatliche Rate
0 €
Effektiver Jahreszins
0 %
Sollzinsbindung
10 Jahre
Beschreibung des Objekts
Lage
Frankenstraße in Birkenwerder. Sie wohnen in gehobener Nachbarschaft in absolut ruhiger und grüner Umgebung. Die Zentren Berlins sind ca. 25 Kilometer entfernt und sind mit dem Auto in 30-40 Minuten gut erreichbar. Birkenwerder ist mit der S-Bahn S1 und S8 wunderbar angebunden und bringt Sie schnell nach und durch Berlin. Einkaufsmöglichkeiten für den täglichen Bedarf gibt es in vielfältiger Auswahl in der näheren Umgebung, ebenso wie Schulen und Kindergärten.
Sonstige Angaben
Grundstück ca. 913 m² – Bodenrichtwert 380,- EUR
Preis: 337.000 EUR
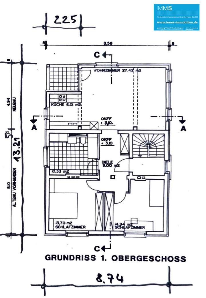
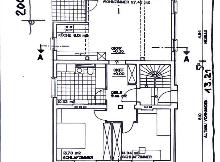
Mehrfamilienhaus – Wohnfläche insgesamt ca. 230 m² - Netto-Mieteinnahmen jährlich insgesamt 19.872,- EUR
Preis: 438.000 EUR
Kaufpreis insgesamt: 775.000 EUR
Besichtigung:
Wünschen Sie einen Besichtigungstermin, erbitten wir Ihre Anfrage ausschließlich über das Kontaktformular hier in dieser Anzeige. Alle anderen Fragen beantworten wir gern telefonisch.
Grundriss
Obj.-Nr. 30250202 - Grundriss
>
>
Obj.-Nr. 30250202 - Grundriss
>
>
Obj.-Nr. 30250202 - Grundriss
>
PDF
Download
>