Dieses Fertighaus in Niesgrau ist mehr als nur ein Bauwerk - es ist dein persönlicher Rückzugsort, maßgeschneidert nach deinen Vorstellungen. Mit einem modernen Pultdach und einer großzügigen Wohnfläche von 166,72 m² erstreckt sich das Haus über zwei Vollgeschosse, die dir und deiner Familie allerhand Platz bieten. Die fünf Zimmer sind ideal angelegt, sodass sowohl Rückzugsorte als auch gemeinschaftliche Bereiche harmonisch miteinander verbunden sind. Zwei Balkone laden dazu ein, die frische Luft zu genießen und die Umgebung zu erleben. Hier wird der Traum vom perfekten Zuhause Wirklichkeit!
Besonders hervorzuheben sind die zusätzlichen Leistungen von Living Haus, die dein Bauprojekt zu einem stressfreien Erlebnis machen. Die hochwertige Traumküche wird individuell nach deinem Grundriss geplant und kommt mit modernster Technik sowie cleveren Stauraumlösungen. So kannst du direkt nach dem Einzug mit dem Kochen beginnen.
Mit dem Living Haus Bau-Cockpit behältst du jederzeit den Überblick über den Bauprozess. Alle relevanten Informationen sind digital und einfach zugänglich, sodass du dich auf das Wesentliche konzentrieren kannst. Das I-KON Konzept sorgt für nachhaltiges und energieeffizientes Bauen, damit dein Zuhause nicht nur schön, sondern auch umweltfreundlich ist.
Finanziere dein Traumhaus mit dem Zuhause-Darlehen, das dir bis zu 250.000 EUR zu besonders günstigen Konditionen bereitstellt. Das Zuhause-Paket sorgt dafür, dass dein Haus mit einer hochwertigen Grundausstattung geliefert wird, die moderne Böden, edle Türen und stilvolle Sanitäranlagen umfasst.
Und wenn du selbst Hand anlegen möchtest, bietet dir das DIY-Ausbau-Coaching die Möglichkeit, mit Experten an deiner Seite den Innenausbau zu gestalten. In nur drei Tagen lernst du, wie du deine Wohnräume kreativ umsetzen kannst.
Dieses Konzept vereint alles, was du für dein individuelles Fertighaus benötigst - von der Planung über die Ausführung bis hin zur persönlichen Gestaltung. Dein Traumhaus wird hier Wirklichkeit!
Dein individuelles LivingHaus: Ein Zuhause nach deinen Wünschen inklusive Küche & ganz nah an de
24395 Niesgrau
Die vollständige Adresse der Immobilie erhalten Sie vom Anbieter.
Auf Karte anzeigen
Die vollständige Adresse der Immobilie erhalten Sie vom Anbieter.
Finanzierungszertifikat
In nur zwei Minuten zu Ihrem persönlichen Finanzierungszertifkat.
Infos
| Haustyp | Einfamilienhaus |
|---|---|
| Etagenzahl | 2 |
| Wohnfläche ca. | 166 m2 |
| Nutzfläche | 166,72 m2 |
| Grundstücksfläche | 584 m2 |
| Zimmer | 5 |
| Schlafzimmer | 1 |
| Badezimmer | 1 |
Kosten
| Kaufpreis |
378.525 € |
|---|
Finanzierungsrechner:
Kaufpreis:
600.000 €
Eigenkapital:
600.000 €
Monatliche Rate
0 €
Effektiver Jahreszins
0 %
Sollzinsbindung
10 Jahre
Bausubstanz & Energieausweis
| Baujahr | 2027 |
|---|---|
| Bauphase | Haus in Planung (projektiert) |
| Energieausweis | liegt vor |
| Energieausweistyp | Bedarfsausweis |
| Energieverbrauchskennwert | 18,0 kWh/(m²*a) |
| Energieeffizienzklasse | A+ |
18,0
kWh/(m²*a)
Energieeffizienzklasse A+
- A+
- A
- B
- C
- D
- E
- F
- G
- H
- 0
- 25
- 50
- 75
- 100
- 125
- 150
- 175
- 200
- 225
- >250
Beschreibung des Objekts
Ausstattung
Das Eigenheim überzeugt mit einer Vielzahl an hochwertigen Ausstattungsmerkmalen. Für dein individuelles Zuhause stehen eine Vielzahl von Optionen zur Verfügung: moderne Böden, edle Türen, stilvolle Sanitäranlagen und eine individuell geplante Küche, die perfekt auf deine Bedürfnisse abgestimmt ist. Auch die energieeffiziente Wärmepumpentechnik sorgt für ein angenehmes Raumklima und effizientes Heizen. Aluminiumgeschäumte Rollläden bieten einen optimalen Hitzeschutz im Sommer und tragen zur Wärmedämmung im Winter bei. Damit ist dein Zuhause nicht nur schön, sondern auch äußerst funktional und ökologisch.
Mit diesen Optionen kannst du sicher sein, dass dein zukünftiges Zuhause genau nach deinen Vorstellungen gestaltet wird - so, wie du es willst!
Lage
Niesgrau ist ein charmantes Dorf, das für Familien und Naturliebhaber gleichermaßen attraktiv ist. In der Umgebung findest du zahlreiche Bildungseinrichtungen, darunter moderne Schulen und Kindergärten, die für eine exzellente Betreuung und Förderung sorgen. Einkaufsmöglichkeiten sind ebenfalls in der Nähe, sodass du alles, was du benötigst, bequem erreichen kannst. Supermärkte bieten eine große Auswahl an Lebensmitteln und anderen Produkten des täglichen Bedarfs.
Für die medizinische Versorgung stehen dir in der Umgebung verschiedene Ärzte und Kliniken zur Verfügung. Familienfreundliche Freizeitangebote wie Spielplätze, Sporteinrichtungen und Wanderwege laden zu Aktivitäten im Freien ein. Die Anbindung an den öffentlichen Nahverkehr ist ebenfalls gegeben, sodass du schnell und unkompliziert in die umliegenden Städte gelangst. Auch die Autobahn ist nur wenige Minuten entfernt, was Pendlern eine optimale Anbindung bietet. Niesgrau vereint somit eine ruhige und naturnahe Wohnlage mit allen Annehmlichkeiten des täglichen Lebens, ideal für dein neues Zuhause!
Sonstige Angaben
Das hier angebotene Grundstück ist im obigen Preis eingerechnet, es wird ohne zusätzliche Provision einen Living Haus - Bauherrn bereitgestellt.
Zusätzliche Baunebenkosten müssen noch hinzugerechnet werden, hierüber beraten wir dich gerne.
Wir bieten auch interessante Finanzierungsmöglichkeiten inklusive Beantragung aller Fördermittel!
Die Hausabbildung und die Bilder der Inneneinrichtung zeigen möglicherweise Extras, die nicht im Kaufpreis inbegriffen sind.
Gute Beratung ist der Anfang von Allem. Deshalb analysieren wir gemeinsam mit euch eure Vorstellungen, Wünsche und Bedürfnisse und finden das für dich und deiner Familie
Living Haus.
Interessiert? Kontaktiere mich und vereinbare noch heute einen kostenlosen und unverbindlichen Beratungstermin unter
0170-4711970
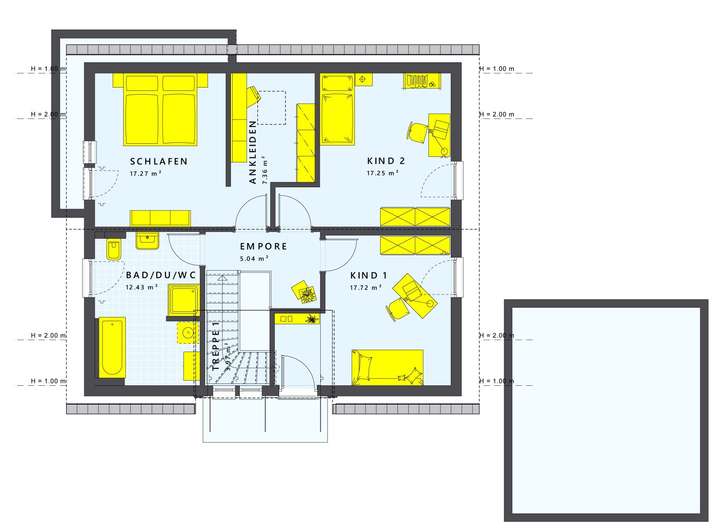
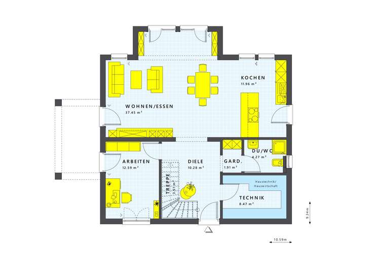
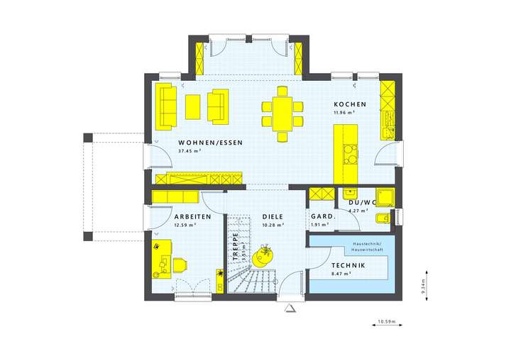
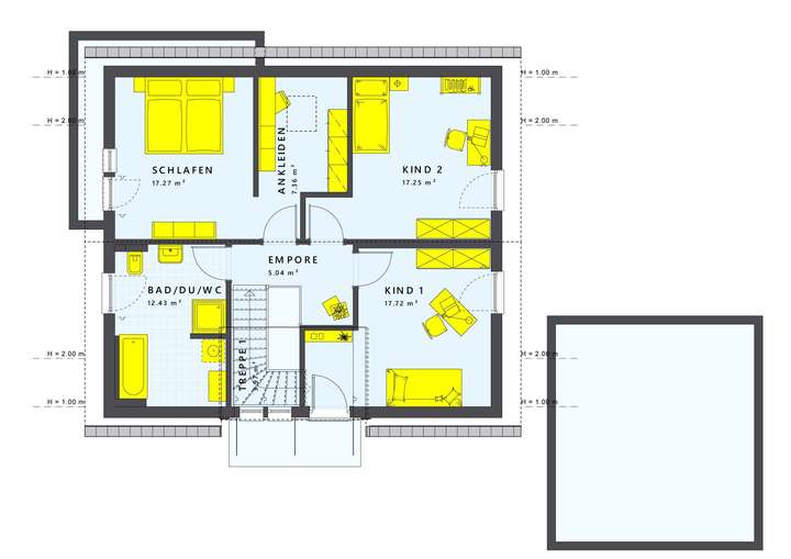
Grundriss
Grundriss OG
>
>
SUN V PD DG ()
>
>
Grundriss EG
>
>
Grundriss OG
>
>
Grundriss EG
>
>
Grundriss OG
>
>
Grundriss EG
>
>
Grundriss OG
>
>
Grundriss EG
>
>
Grundriss DG
>
>
Grundriss EG
>
>
Grundriss OG
>
>
Adresse
24395 Niesgrau
Interessante Orte
Preis- und Lageinformationen
Preistrend für Bestandsimmobilien in Niesgrau