In einem beschaulichen Ortsteil der Doppelstadt Waldshut-Tiengen erwartet Sie dieses großzügige Einfamilienhaus mit angrenzendem, ehemals landwirtschaftlich genutztem Ökonomietrakt – ein Objekt, das den Charme vergangener Zeiten bewahrt und gleichzeitig viel Raum für moderne Lebenskonzepte bietet. Man genießt hier ein ruhiges Wohnumfeld, umgeben von Natur, traditionellem Landleben und einer aktiven Nachbarschaft, in der die Landwirtschaft noch präsent ist.
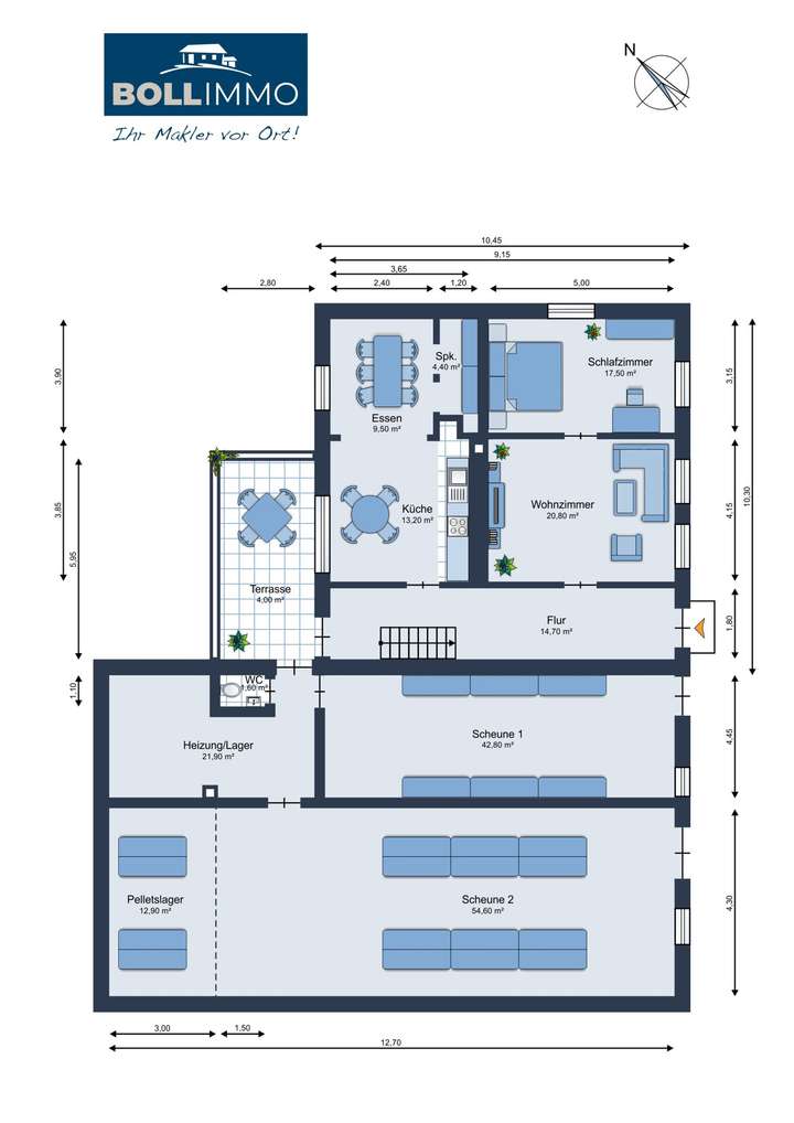
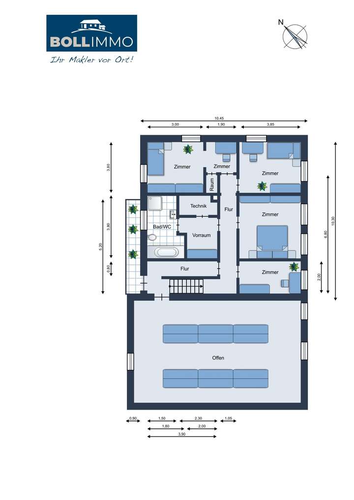
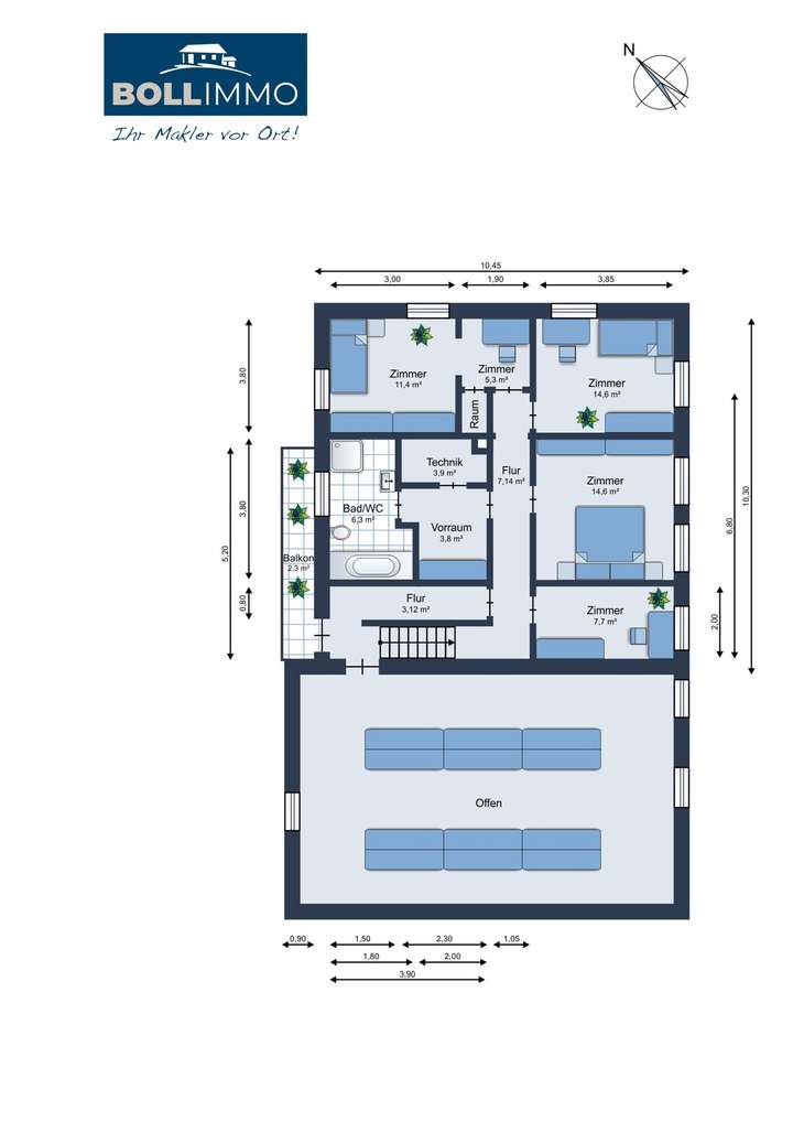
Auf rund 165 m² Wohnfläche, verteilt auf 2 Ebenen, bietet das Haus mit insgesamt 8 Zimmern, darunter 6 Schlafzimmer, sowie Küche, Bad und mehrere Abstellräume außergewöhnlich viel Platz. Es eignet sich ideal für die Großfamilie, das Mehrgenerationenwohnen oder für Paare, die viel Wohn- und Gestaltungsfreiheit schätzen.
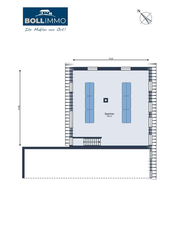
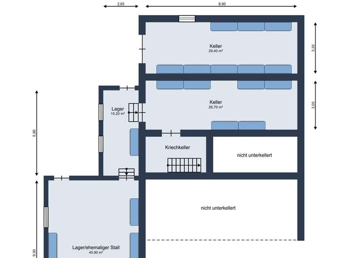
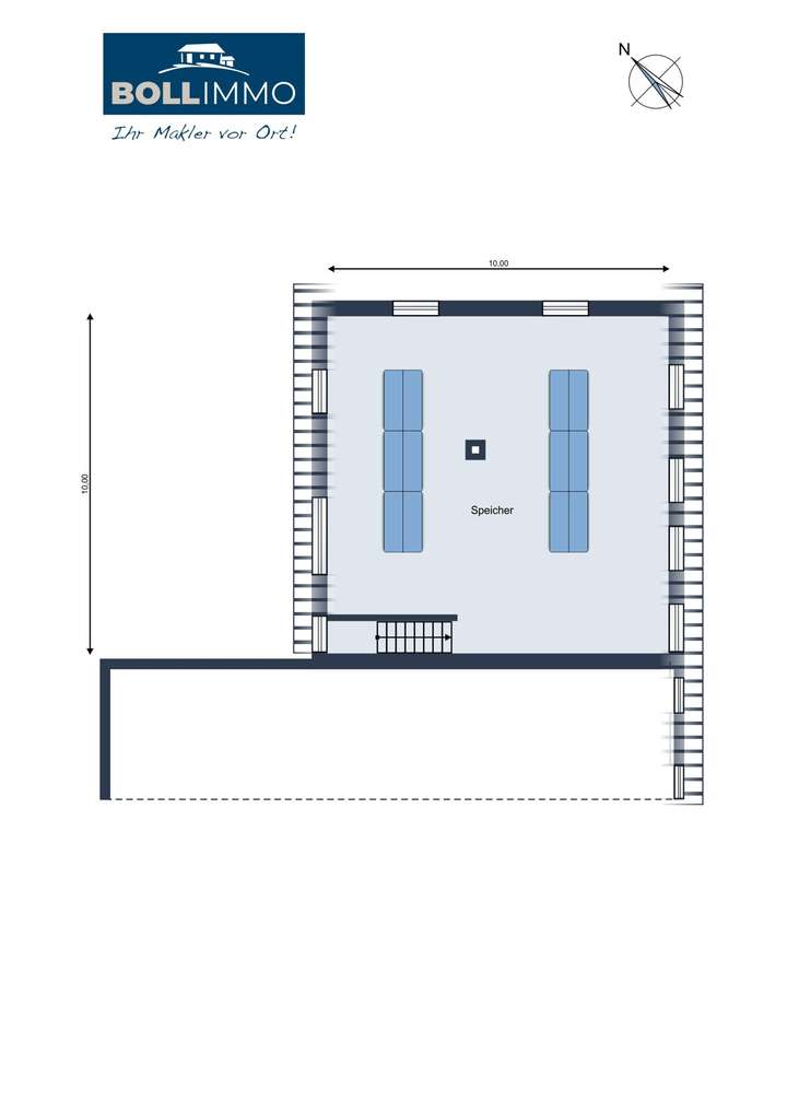
Besonders hervorzuheben sind die umfangreichen Nutzflächen von ca. 390 m². Der großzügige ehemalige Ökonomiebereich eröffnet vielfältige Nutzungsmöglichkeiten – von Werkstatt, Atelier, Lager bis hin zu kreativen Hobbys oder Oldtimer-Liebhabereien. Weitere Flächen im Keller, dem Dachboden sowie eine große Doppelgarage bieten zusätzlichen Platz für Projekte aller Art oder das Abstellen von Wohnmobil oder Motorrad.
Das Grundstück umfasst 1.062 m² und bietet mit seinem Garten reichlich Raum für Gemüseanbau oder einfach das entspannte Leben im Grünen. Hier kann man ein Stück Selbstversorgung realisieren und den eigenen Garten nach individuellen Vorstellungen gestalten.
Der ursprüngliche Charakter des Hauses wurde bewusst erhalten. Gleichzeitig wurden wichtige Bereiche bereits modernisiert – so verfügt das Gebäude über eine Pelletsheizung aus 2006. Insgesamt befindet sich die Immobilie in einem soliden und gut gepflegten Zustand, wenngleich weitere Modernisierungen sinnvoll sind, um das volle Potenzial auszuschöpfen.
Dieses Anwesen vereint ländliche Atmosphäre, außergewöhnliche Platzverhältnisse und vielseitige Nutzungsmöglichkeiten.
Einfamilienhaus mit großem ehemaligem Ökonomietrakt - ideal für Gestalter, Hobbys und Naturliebhaber
79761 Waldshut-Tiengen
Die vollständige Adresse der Immobilie erhalten Sie vom Anbieter.
Auf Karte anzeigen
Die vollständige Adresse der Immobilie erhalten Sie vom Anbieter.
Finanzierungszertifikat
In nur zwei Minuten zu Ihrem persönlichen Finanzierungszertifkat.
Infos
| Haustyp | Einfamilienhaus |
|---|---|
| Wohnfläche ca. | 165 m2 |
| Nutzfläche | 385 m2 |
| Grundstücksfläche | 1.062 m2 |
| Bezugsfrei ab | sofort |
| Zimmer | 8 |
| Schlafzimmer | 7 |
| Badezimmer | 1 |
Kosten
| Kaufpreis |
380.000 € |
|---|---|
| Provision |
3,57 % inkl. MWSt |
Finanzierungsrechner:
Kaufpreis:
600.000 €
Eigenkapital:
600.000 €
Monatliche Rate
0 €
Effektiver Jahreszins
0 %
Sollzinsbindung
10 Jahre
Bausubstanz & Energieausweis
| Baujahr | 1880 |
|---|---|
| Objektzustand | Gepflegt |
| Heizungsart | Holz-Pelletheizung |
| Wesentliche Energieträger | Pelletheizung |
| Energieausweis | liegt vor |
| Energieausweistyp | Bedarfsausweis |
| Energieverbrauchskennwert | 318,4 kWh/(m²*a) |
| Energieeffizienzklasse | H |
318,4
kWh/(m²*a)
Energieeffizienzklasse H
- A+
- A
- B
- C
- D
- E
- F
- G
- H
- 0
- 25
- 50
- 75
- 100
- 125
- 150
- 175
- 200
- 225
- >250
Beschreibung des Objekts
Ausstattung
- Ort: Waldshut-Tiengen, Ortsteil Aichen
- Immobilienart: Einfamilienhaus mit großem ehemaligem Ökonomietrakt
- Grundstücksgröße: ca. 1.062 m²
- Wohnfläche: ca. 165 m² auf 2 Ebenen
- Zimmeranzahl: 8 Zimmer, davon 6 Schlafzimmer
- Nutzfläche: ca. 390 m² (Ökonomietrakt, Keller, Dachboden, Doppelgarage)
- Gebäudezustand: solide und gepflegt mit Teilmodernisierungen
- Heizung: effiziente Pelletsheizung (2006)
- Besonderheiten: ideale Flächen für Werkstatt, Hobby, Lager oder Wohnen & Arbeiten
- Außenbereich: großzügiger Garten – geeignet für Selbstversorgung, Freizeit und Gestaltung
- Lage: ruhige Dorfrandlage trotz Ortsdurchfahrt, naturnah und stadtnah zugleich
- Zielgruppen: Großfamilien, Mehrgenerationen, Handwerker, Kreative, Platzliebhaber
Lage
Aichen gehört zur Doppelstadt Waldshut-Tiengen und liegt idyllisch eingebettet in die sanfte Hügellandschaft des südlichen Schwarzwaldes. Ein hoher Anteil naturnaher Umgebung – ideal für alle, die einen Rückzugsort fernab des hektischen Alltags suchen und dennoch nicht auf die Nähe zur Stadt verzichten möchten.
Der kleine und gewachsene Ortsteil bietet charmanten Dorfcharakter. Landwirtschaftliche Betriebe sind ebenso noch vorhanden, wie gepflegte Wohnhäuser und kleinere Höfe. Die Nachbarschaft ist familiär, freundlich und geprägt von einem aktiven Miteinander. Ein entspanntes und ruhiges Wohnambiente inmitten weitläufiger Felder, Wiesen und Waldstücke sorgen für eine perfekte Wohnatmosphäre für diejenigen, die dem Trubel des Alltags entfliehen wollen.
Die Fahrzeit ins Zentrum von Tiengen oder Waldshut beträgt wenige Minuten. Dort finden sich:
- zahlreiche Einkaufsmöglichkeiten
- Cafés, Restaurants und Dienstleister
- Schulen, Kindergärten und medizinische Versorgung
- kulturelle Angebote und städtische Infrastruktur
Auch der Bahnhof Tiengen sowie der Grenzübergang zur Schweiz sind gut erreichbar – ideal für Berufspendler oder für alle, die von der Nähe zu Basel, Zürich oder zum Hochrhein profitieren möchten.
Die Natur liegt vor der Haustür und eignet sich hervorragend für Outdoor-Aktivitäten:
- Spaziergänge und Wanderwege direkt ab der Haustür
- Radfahren in der offenen Landschaft
- Ausflüge in den nahegelegenen Schwarzwald, an den Rhein Rhein oder die benachbarte Schweiz
Sonstige Angaben
Der ursprüngliche Charme des Gebäudes wurde liebevoll bewahrt. Gleichzeitig sind bereits wichtige Modernisierungen erfolgt: Die Pelletsheizung aus 2006 sorgt für effiziente Wärme, und das Badezimmer im Obergeschoss wurde vor einigen Jahren erneuert. Insgesamt präsentiert sich die Immobilie in einem soliden, gepflegten Zustand, wobei zukünftige Modernisierungen Raum für eigene Ideen lassen.
Ein Haus mit Charakter, Geschichte und beeindruckender Großzügigkeit – perfekt für Menschen, die das Landleben lieben, viel Platz benötigen und ihrer Kreativität freien Lauf lassen möchten.
Aichen verbindet das ursprüngliche Leben auf dem Land mit der praktischen Nähe zur Stadt. Wer viel Platz, Ruhe und ein naturverbundenes Lebensumfeld sucht, findet hier eine sehr attraktive Lage. Gleichzeitig sind Einkauf, Arbeit, Schulen oder die Schweiz in kurzer Zeit erreichbar – ein idealer Kompromiss zwischen Idylle und Alltag.
Grundriss
Untergeschoss-Keller
>
>
Erdgeschoss
>
>
Obergeschoss
>
>
Dachspeicher
>
>
39968_762217_2003503_2025-304_
>
>
39968_762217_2003504_2025-304_
>
>
39968_762217_2003505_2025-304_
>
>
39968_762217_2003506_2025-304_
>
>
Adresse
79761 Waldshut-Tiengen
Interessante Orte
Preis- und Lageinformationen
Preistrend für Bestandsimmobilien in Waldshut-Tiengen