Dieses charmante Reihenmittelhaus, aus dem Jahr 1928, befindet sich in einer gefragten Wohnlage von Frankfurt am Main, im Stadtteil Eschersheim-Dornbusch und bietet mit einer Wohnfläche von circa 102 m² sowie einem Grundstück von rund 153 m² eine ideale Grundlage für individuelle Gestaltungsmöglichkeiten.
Das Haus ist sanierungsbedürftig, verfügt jedoch über eine solide Bausubstanz und wurde teilweise modernisiert: Sowohl das Badezimmer als auch das Gäste-WC wurden im Jahr 2006 erneuert.
Im Erdgeschoss gelangt man von der Diele aus links in die Küche, während das helle Wohnzimmer Blick auf den schönen Garten bietet, der viel Platz zum Entspannen und für Freizeitaktivitäten bereithält.
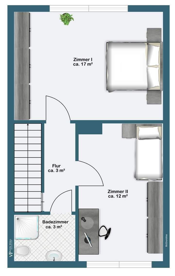
Das Obergeschoss umfasst zwei gut geschnittene Zimmer und ein modernisiertes Badezimmer.
Im ausgebauten Dachgeschoss befindet sich ein weiteres Zimmer, das sich vielseitig nutzen lässt, sowie eine großzügige Dachterrasse mit circa 17 m² Fläche.
Der Keller bietet zusätzliche Nutzfläche, darunter einen Hobbyraum und ein kleines WC. Vom Keller aus gelangt man in den großzügigen Garten. Insgesamt präsentiert sich die Immobilie als attraktives Haus mit Charakter, das Ihnen die Möglichkeit bietet, Ihre eigenen Wohnideen in einer beliebten Frankfurter Lage umzusetzen.
Sanierungsbedürftiges Reihenmittelhaus mit Dachterrasse
60433 Frankfurt am Main
Die vollständige Adresse der Immobilie erhalten Sie vom Anbieter.
Auf Karte anzeigen
Die vollständige Adresse der Immobilie erhalten Sie vom Anbieter.
Finanzierungszertifikat
In nur zwei Minuten zu Ihrem persönlichen Finanzierungszertifkat.
Infos
| Haustyp | Reihenmittelhaus |
|---|---|
| Etagenzahl | 3 |
| Wohnfläche ca. | 102 m2 |
| Grundstücksfläche | 153 m2 |
| Zimmer | 4 |
| Schlafzimmer | 3 |
| Badezimmer | 1 |
Kosten
| Kaufpreis |
599.000 € |
|---|---|
| Provision |
Käuferprovision beträgt 3,57 % (inkl. MwSt.) des beurkundeten Kaufpreises |
Finanzierungsrechner:
Kaufpreis:
600.000 €
Eigenkapital:
600.000 €
Monatliche Rate
0 €
Effektiver Jahreszins
0 %
Sollzinsbindung
10 Jahre
Bausubstanz & Energieausweis
| Baujahr | 1928 |
|---|---|
| Letzte Sanierung | 2006 |
| Bauphase | Haus fertig gestellt |
| Qualität der Austattung | Normal |
| Heizungsart | Zentralheizung |
| Wesentliche Energieträger | Gas |
| Energieausweis | liegt vor |
| Energieausweistyp | Verbrauchsausweis |
| Energieverbrauchskennwert | 108,4 kWh/(m²*a) |
| Energieeffizienzklasse | D |
108,4
kWh/(m²*a)
Energieeffizienzklasse D
- A+
- A
- B
- C
- D
- E
- F
- G
- H
- 0
- 25
- 50
- 75
- 100
- 125
- 150
- 175
- 200
- 225
- >250
Beschreibung des Objekts
Ausstattung
- Baujahr 1928 "May-Haus"
- Dachterrasse
- Keller
- Vorgarten
- Garten
Lage
Der charmante Stadtteil Dornbusch überzeugt durch seine hervorragende Infrastruktur und eine hohe Lebensqualität. Besonders die sehr gute Verkehrsanbindung sowie die Nähe zu Schulen und Kindergärten machen ihn zu einem attraktiven Wohnort für Familien und Stadtmenschen gleichermaßen.
In unmittelbarer Umgebung laden der Volkspark Niddatal, die Bertramswiesen am Hessischen Rundfunk, der traditionsreiche Sportclub 1880 mit Tennis-, Rugby- und Hockeyplätzen sowie der Sinai-Park zu entspannenden Spaziergängen und vielfältigen sportlichen Aktivitäten ein.
Auch im Alltag bietet Dornbusch kurze Wege: Zahlreiche Einkaufsmöglichkeiten für den täglichen Bedarf, gemütliche Cafés und Restaurants sind bequem zu Fuß erreichbar. Zudem findet hier jeden Dienstag ein Wochenmarkt statt, der mit frischen Produkten und regionalen Spezialitäten zum Einkaufen und Verweilen einlädt. Das von Villen, Einfamilien- und kleineren Mehrfamilienhäusern geprägte Wohnumfeld verleiht dem Viertel ein ruhiges und zugleich gehobenes Ambiente.
Die Verkehrsanbindung ist nahezu ideal – ob mit dem Auto, Fahrrad, zu Fuß oder mit öffentlichen Verkehrsmitteln. Mehrere U-Bahn-Linien (U1, U2, U3 und U8) sowie zwei regelmäßig verkehrende Buslinien sorgen für schnelle Verbindungen in alle Stadtteile. Autofahrer profitieren von der Nähe zu den Autobahnen A66 und A661, die eine zügige Anbindung an das regionale und überregionale Verkehrsnetz ermöglichen.
Sonstige Angaben
GELDWÄSCHE: Als Immobilienmaklerunternehmen ist die von Poll Immobilien GmbH nach § 2 Abs. 1 Nr. 14 und § 11 Abs. 1, 2 Geldwäschegesetz (GwG) dazu verpflichtet, bei der Begründung einer Geschäftsbeziehung die Identität des Vertragspartners festzustellen und zu überprüfen, bzw. sobald ein ernsthaftes Interesse an der Durchführung des Immobilienkaufvertrages besteht. Hierzu ist es erforderlich, dass wir nach § 11 Abs. 4 GwG die relevanten Daten Ihres Personalausweises festhalten (wenn Sie als natürliche Person handeln) – beispielsweise mittels einer Kopie. Bei einer juristischen Person benötigen wir eine Kopie des Handelsregisterauszugs, aus welchem der wirtschaftlich Berechtigte hervorgeht. Das Geldwäschegesetz sieht vor, dass der Makler die Kopien bzw. Unterlagen fünf Jahre aufbewahren muss. Als unser Vertragspartner haben Sie auch eine Mitwirkungspflicht nach § 11 Abs. 6 GwG.
HAFTUNG: Wir weisen darauf hin, dass die von uns weitergegebenen Objektinformationen, Unterlagen, Pläne etc. vom Verkäufer bzw. Vermieter stammen. Eine Haftung für die Richtigkeit oder Vollständigkeit der Angaben übernehmen wir daher nicht. Es obliegt daher unseren Kunden, die darin enthaltenen Objektinformationen und Angaben auf ihre Richtigkeit hin zu überprüfen. Alle Immobilienangebote sind freibleibend und vorbehaltlich Irrtümer, Zwischenverkauf- und Vermietung oder sonstiger Zwischenverwertung.
UNSER SERVICE FÜR SIE ALS EIGENTÜMER:
Planen Sie den Verkauf oder die Vermietung Ihrer Immobilie, so ist es für Sie wichtig, deren Marktwert zu kennen. Lassen Sie kostenfrei und unverbindlich den aktuellen Wert Ihrer Immobilie professionell durch einen unserer Immobilienspezialisten einschätzen. Unser bundesweites und internationales Netzwerk ermöglicht es uns, Verkäufer bzw. Vermieter und Interessenten bestmöglich zusammenzuführen.
Grundriss
Erdgeschoss
>
>
Obergeschoss
>
>
Dachgeschoss
>
>
Untergeschoss
>
>
Adresse
60433 Frankfurt am Main
Interessante Orte
Preis- und Lageinformationen
Preistrend für Bestandsimmobilien in Dornbusch