In einem attraktiven Neubaugebiet in Hambühren entsteht ein moderner Klinkerbungalow mit durchdachter Raumaufteilung.
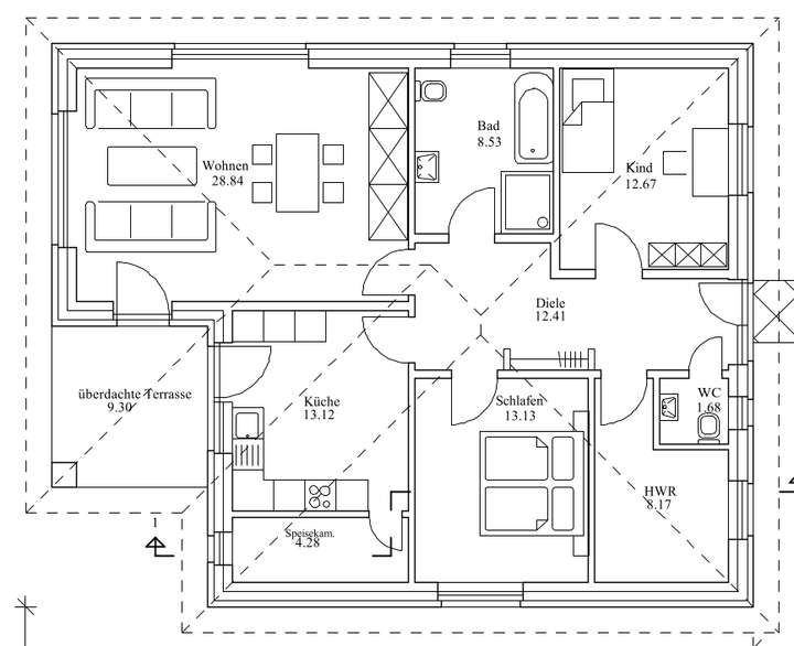
Die geräumige Diele ist ca. 12,41 m² groß und verbindet alle Zimmer miteinander. Hier findet sich zudem ausreichend Platz für eine Garderobe mit Schuhregal.
Das Haus verfügt über drei helle Zimmer: Das großzügige Wohnzimmer mit ca. 28,84 m² bietet genug Raum für einen gemütlichen Wohnbereich sowie einen separaten Essplatz. Das erste Zimmer misst etwa 12,67 m², das zweite ist mit rund 13,13 m² ähnlich großzügig bemessen. Die Küche mit angrenzender Speisekammer für Vorräte bietet ca. 13,12 m² bzw. 4,28 m² Nutzfläche und ermöglicht komfortables Kochen und praktische Lagerung.
Ein Hauswirtschaftsraum mit etwa 8,17 m² und Waschmaschinenanschluss sorgt für zusätzliche Funktionalität.
Das komfortable Vollbad mit ca. 8,53 m² ist mit hochwertigen Fliesen, Dusche und Badewanne ausgestattet, das separate Gäste-WC misst ca. 1,68 m².
Die dreifachverglasten Kunststofffenster sorgen für hervorragende Wärme- und Schalldämmung und unterstreichen den energetisch modernen Standard des Gebäudes. Beheizt wird das Haus über eine moderne Wärmepumpe in Kombination mit einer Fußbodenheizung. Die Pflasterarbeiten sind im Kaufpreis enthalten, die Wohnräume werden ohne Bodenbeläge übergeben, sodass Sie diese nach Ihren individuellen Vorstellungen gestalten können.
Von Küche und Wohnzimmer aus gelangen Sie direkt auf die überdachte Terrasse – ideal für entspannte Stunden im Freien und gesellige Abende.
Ein besonderes Plus bietet der großzügige Dachboden, der als praktische Abstellfläche genutzt werden kann – optimal für saisonale Gegenstände, Kisten oder Hobbymaterial. Zugänglich ist er über eine Einschubtreppe.
Die Lage überzeugt durch eine ruhige, familienfreundliche Umgebung. Geschäfte des täglichen Bedarfs sind fußläufig in 5 bis 10 Minuten erreichbar, ebenso Schulen und Kindergarten.
Fertigstellung und Übergabe des Objekts sind für Anfang 2026 geplant.
Neubau-Klinkerbungalow in beliebter Lage
29313 Hambühren
Die vollständige Adresse der Immobilie erhalten Sie vom Anbieter.
Auf Karte anzeigen
Die vollständige Adresse der Immobilie erhalten Sie vom Anbieter.
Finanzierungszertifikat
In nur zwei Minuten zu Ihrem persönlichen Finanzierungszertifkat.
Infos
| Haustyp | Bungalow |
|---|---|
| Wohnfläche ca. | 105 m2 |
| Grundstücksfläche | 465 m2 |
| Zimmer | 3 |
| Garage/Stellplatz | Außenstellplatz |
| Anzahl Garage/Stellplatz | 2 |
Kosten
| Kaufpreis |
399.000 € |
|---|---|
| Provision |
2,975% Für Nachweis und/oder Vermittlung des vorstehenden Objekts hat der Käufer an uns die Maklerprovision in Höhe von 2,975 % des Kaufpreises inkl. der gesetzlichen USt. zu zahlen. Sie ist verdient und fällig mit Abschluss des notariellen Kaufvertrages. |
Finanzierungsrechner:
Kaufpreis:
600.000 €
Eigenkapital:
600.000 €
Monatliche Rate
0 €
Effektiver Jahreszins
0 %
Sollzinsbindung
10 Jahre
Bausubstanz & Energieausweis
| Baujahr | 2025 |
|---|---|
| Bauphase | Haus im Bau |
| Objektzustand | Erstbezug |
| Heizungsart | Wärmepumpe |
| Wesentliche Energieträger | Strom |
| Energieausweis | liegt vor |
| Energieausweistyp | Bedarfsausweis |
| Energieverbrauchskennwert | 22,0 kWh/(m²*a) |
| Energieeffizienzklasse | A+ |
22,0
kWh/(m²*a)
Energieeffizienzklasse A+
- A+
- A
- B
- C
- D
- E
- F
- G
- H
- 0
- 25
- 50
- 75
- 100
- 125
- 150
- 175
- 200
- 225
- >250
Beschreibung des Objekts
Sonstige Angaben
Fenster: dreifachverglaste Kunststofffenster
Heizung: Luftwärmepumpe, Fußbodenheizung
PKW: Außenstellplätze
Bauweise: massiv, verklinkert
Grundriss
Grundriss EG
>
>
Adresse
29313 Hambühren
Interessante Orte
Preis- und Lageinformationen
Preistrend für Bestandsimmobilien in Hambühren