Die angebotene Villa entsteht auf einem ca. 855 m² großen Grundstück in Font de sa Cala (Gemeinde Capdepera). Das Projekt ist vollständig planerisch ausgearbeitet und verfügt über eine gültige Baugenehmigung. Der Kaufpreis für das fertiggestellte Objekt beträgt 2.900.000 €. Sobald ein Käufer vorliegt, kann der Bau unmittelbar beginnen. Alternativ ist auch der Erwerb inkl. bestehender Baugenehmigung zum genannten Preis möglich.
Die geplante Wohnfläche von rund 380 m² verteilt sich auf drei Ebenen. Das Haus ist modern konzipiert und bietet eine klare, funktionale Struktur:
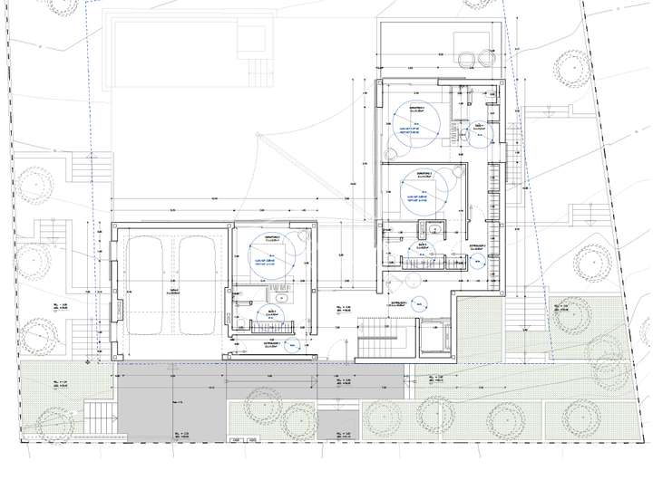
Obergeschoss: Hauseingang, repräsentatives Entrée mit Innenpatio, drei Schlafzimmer jeweils mit Bad en suite; zwei Zimmer mit Ankleide, eines mit privater Terrasse. Zugang zur Garage.
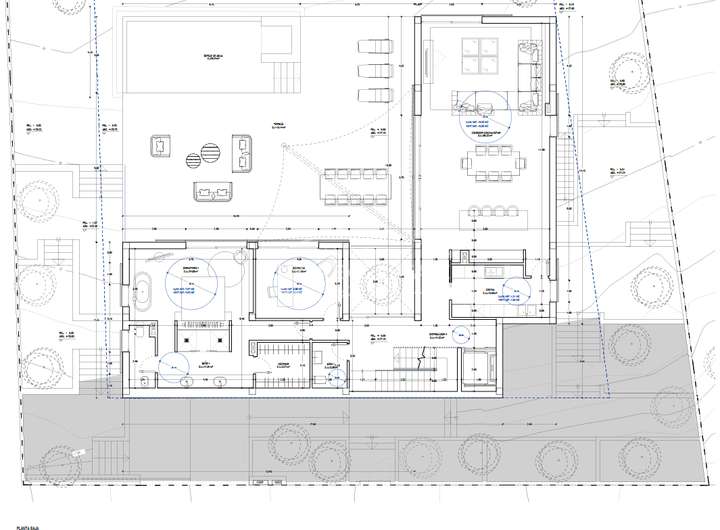
Erdgeschoss: Großzügiger Wohn- und Essbereich, Küche, Hauptschlafzimmer mit Bad en suite und Terrasse, Arbeitszimmer, Gäste-WC sowie eine große Außenterrasse mit direktem Zugang zum Poolbereich.
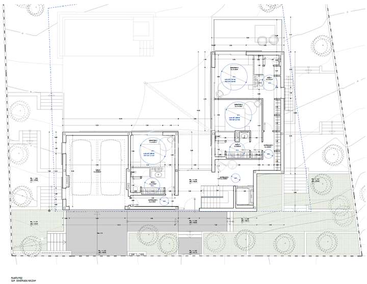
Untergeschoss: Technikräume, Abstell- und Nutzräume, Waschküche sowie ein großer Raum mit eigenem Bad, vorgesehen als Wellness- bzw. Fitnessbereich.
Der Garten umfasst Terrassenflächen, Grünbereiche und den Pool. Die Gestaltung ist so geplant, dass Pflegeaufwand und Nutzbarkeit im Gleichgewicht stehen.
Grundstück mit exklusivem Neubauprojekt in Font de sa Cala: Hochwertige Villa nahe der Küste
07589 Capdepera
Die vollständige Adresse der Immobilie erhalten Sie vom Anbieter.
Auf Karte anzeigen
Die vollständige Adresse der Immobilie erhalten Sie vom Anbieter.
Finanzierungszertifikat
In nur zwei Minuten zu Ihrem persönlichen Finanzierungszertifkat.
Infos
| Vermarktungsart | Kaufen |
|---|---|
| Grundstücksfläche | 855 m2 |
| Erschließung | Erschlossen |
| Empfohlene Nutzung | Einfamilienhaus |
| Bebaubar nach | Bebauungsplan |
| Verfügbar ab | Sofort |
Kosten
| Miete pro Jahr |
819.000 € |
|---|---|
| Provision | Nein |
Finanzierungsrechner:
Kaufpreis:
600.000 €
Eigenkapital:
600.000 €
Monatliche Rate
0 €
Effektiver Jahreszins
0 %
Sollzinsbindung
10 Jahre
Beschreibung des Objekts
Lage
Font de sa Cala ist ein ruhiger Küstenort im Nordosten Mallorcas, bekannt für seine geschützte Bucht und Wohnlagen mit hoher Nachfrage. Die Umgebung ist geprägt von Einfamilienhäusern, kleineren Wohnanlagen und einer gut entwickelten Infrastruktur für den täglichen Bedarf.
Die Nachbarorte Cala Ratjada und Capdepera sind in wenigen Minuten erreichbar und bieten Einkaufsmöglichkeiten, Restaurants, medizinische Versorgung, Sport- und Freizeitangebote.
Die größere Stadt Artà liegt ebenfalls in kurzer Distanz und ergänzt das Umfeld durch weitere Dienstleistungen, Kultur und Gastronomie.
Die Entfernung zum Flughafen Palma beträgt rund 75 km, Fahrzeit ca. 1 Stunde.
Sonstige Angaben
AGB & Haftungsklausel:
Bitte haben Sie Verständnis, dass Sie die exakte Adresse erst bei einer Besichtigung erfahren.
Das Objekt kann nach Absprache besichtigt werden:
Tel.: +34 971 566 178
Mob: +34 682 755 801 (auch WhatsApp)
E-Mail: contact@ccc-real-estate.com
Büro-Öffnungszeiten:
Montag - Donnerstag: 10:00 - 18:30 Uhr
Freitag: 10:00 - 17:00 Uhr
Termine außerhalb der Bürozeiten gerne nach Vereinbarung.
Weitere interessante Angebote unter www.ccc-real-estate.com
Alle Angaben basieren ausschließlich auf Informationen, die uns vom Eigentümer/Bauträger zur Verfügung gestellt wurden. Canaima Concept & Consulting, S.L. (CCC REAL ESTATE) übernimmt keine Gewähr für die Vollständigkeit, Richtigkeit und Aktualität dieser Angaben. Irrtum und Zwischenverkauf vorbehalten.
Die beim Kauf einer Immobilie in Spanien anfallenden Kauferwerbsnebenkosten (Grunderwerbssteuer / ggf. MwSt, Notargebühren, Abwicklungshonorar und Grundbuchkosten) sind vom Käufer zu tragen. Die Maklercourtage geht zu Lasten des Verkäufers.
© Canaima Concept & Consulting, S.L.
Grundriss
Kellergeschoss
>
>
Erdgeschoss
>
>
Obergeschoss
>
>