Stellen Sie sich vor, Sie betreten Ihr neues Zuhause, das speziell nach Ihren Vorstellungen entworfen und projektiert wurde. Dieses Einfamilienhaus in der charmanten Ortslage von Ottweiler bietet Ihnen mit großzügigen 222,30 m² Wohnfläche und 5 Zimmern genug Raum für Ihre Familie und kreative Gestaltungsideen. Es erstreckt sich über zwei Etagen und verfügt über vier Schlafzimmer, ein modernes Badezimmer sowie ein zusätzliches Gäste-WC. Hier können Sie Ihre Wünsche verwirklichen und in einem gemütlichen Ambiente leben.
Das Baukonzept sieht vor, dass Sie die Möglichkeit haben, den Innenausbau nach Ihren eigenen Vorstellungen zu gestalten. Sie entscheiden, ob Sie die Arbeiten selbst übernehmen oder die professionelle Unterstützung von allkauf in Anspruch nehmen möchten. Die Energieeffizienz steht bei diesem Haus im Mittelpunkt, denn es wird nach den Standards KFW40 und KFW55 gebaut, was bedeutet, dass Sie nicht nur ein modernes, sondern auch ein nachhaltiges Zuhause erhalten.
Ihr Traum vom Eigenheim in Ottweiler - Einfamilienhaus ganz nach Ihren Wünschen!
66564 Ottweiler
Die vollständige Adresse der Immobilie erhalten Sie vom Anbieter.
Auf Karte anzeigen
Die vollständige Adresse der Immobilie erhalten Sie vom Anbieter.
Finanzierungszertifikat
In nur zwei Minuten zu Ihrem persönlichen Finanzierungszertifkat.
Infos
| Haustyp | Einfamilienhaus |
|---|---|
| Etagenzahl | 2 |
| Wohnfläche ca. | 222 m2 |
| Grundstücksfläche | 2.572 m2 |
| Zimmer | 5 |
| Schlafzimmer | 4 |
| Badezimmer | 1 |
Kosten
| Kaufpreis |
525.197 € |
|---|
Finanzierungsrechner:
Kaufpreis:
600.000 €
Eigenkapital:
600.000 €
Monatliche Rate
0 €
Effektiver Jahreszins
0 %
Sollzinsbindung
10 Jahre
Bausubstanz & Energieausweis
| Baujahr | unbekannt |
|---|---|
| Bauphase | Haus in Planung (projektiert) |
Beschreibung des Objekts
Ausstattung
- Energieeffizienzwand
- Echtholztreppe
- Luft-Wasser-Wärmepumpe
- Fußbodenheizung
- Be- und Entlüftungsanlage
- 3-fach verglaste Fenster inklusive Rollläden mit Aluminiumlamellen
- Lichte Raumhöhe 2,75 m (inkl. erhöhten Fenstern und Türen)
- TOXPROOF Gütesiegel - schadstoffgeprüfte Materialien
- Just-in-Time-Lieferungen
- Bemusterung im eigenen Bemusterungszentrum mit Markenprodukten
Lage
Ottweiler bietet eine hervorragende Infrastruktur mit Schulen, Einkaufsmöglichkeiten und Freizeitangeboten in der Nähe. Genießen Sie die ruhige Lage und die gute Anbindung an die umliegenden Städte, die Ihnen alle Möglichkeiten für einen aktiven Lebensstil bieten.
Sonstige Angaben
allkauf heißt: Maximale Sicherheit, kurze Lieferzeiten, garantierte Fertigstellung. Zu allen Häusern gehört:
- Energieeffizienzwand
- Echtholztreppe
- Luft-Wasser-Wärmepumpe
- Fußbodenheizung
- Be- und Entlüftungsanlage
- 3-fach verglaste Fenster inklusive Rollläden mit Aluminiumlamellen
- Lichte Raumhöhe 2,75 m
- inkl. erhöhten Fenstern und Türen
- TOXPROOF Gütesiegel - schadstoffgeprüfte Materialien
- Just-in-Time-Lieferungen
- Bemustern im eigenen Bemusterungszentrum mit Markenprodukten
Ob Einfamilienhaus, Doppelhaus oder Bungalow - bei allkauf finden Sie Ihr Traumhaus! Vereinbaren Sie noch heute Ihren Termin zur Planung Ihres allkauf Traumhauses.
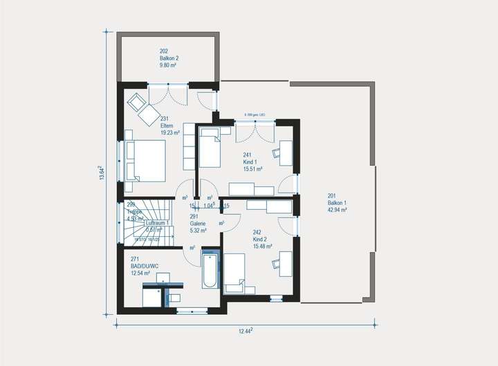
Grundriss
696307-53289-1-g
>
>
Grundriss
>
>
Grundriss
>
>
696308-53289-11-g
>
>
Adresse
66564 Ottweiler
Interessante Orte
Preis- und Lageinformationen
Preistrend für Bestandsimmobilien in Ottweiler