Der Winkelbungalow ist nach wie vor ein gefragter Haustyp. Kein Wunder, schließlich bietet er zahlreiche Vorteile. Zum einen ist der geschützte Winkel der perfekte Ort für eine gemütliche, überdachte Terrasse. Zum anderen lassen sich durch die besondere Form die Wohnbereiche im Innern einfacher trennen.
SO...oder so wie Sie es sich vorstellen planen WIR mit Ihnen IHR Traumhaus mit Bestpreisgarantie ink
55593 Rüdesheim
Die vollständige Adresse der Immobilie erhalten Sie vom Anbieter.
Auf Karte anzeigen
Die vollständige Adresse der Immobilie erhalten Sie vom Anbieter.
Finanzierungszertifikat
In nur zwei Minuten zu Ihrem persönlichen Finanzierungszertifkat.
Infos
| Wohnfläche ca. | 110 m2 |
|---|---|
| Grundstücksfläche | 441 m2 |
| Zimmer | 5 |
Kosten
| Kaufpreis |
554.811 € |
|---|
Finanzierungsrechner:
Kaufpreis:
600.000 €
Eigenkapital:
600.000 €
Monatliche Rate
0 €
Effektiver Jahreszins
0 %
Sollzinsbindung
10 Jahre
Bausubstanz & Energieausweis
| Baujahr | unbekannt |
|---|
Beschreibung des Objekts
Ausstattung
Gerne planen wir mit Ihnen zusammen Ihr exklusives Traumhaus mit den Details, die für Sie wichtig sind.
Lage
Rüdesheim ist eine Ortsgemeinde im Landkreis Bad Kreuznach in Rheinland-Pfalz und Verwaltungssitz der Verbandsgemeinde Rüdesheim, der sie auch angehört. Rüdesheim ist gemäß Landesplanung als Grundzentrum ausgewiesen
Sonstige Angaben
Im angegebenen Preis ist das Grundstück bereits enthalten. Gerne planen wir den Hausbau gemeinsam mit Ihnen auch auf Ihrem bereits vorhandenen Grundstück. In einem ausführlichen Beratungsgespräch ermitteln wir für Sie gerne eine detaillierte Gesamtkostenaufstellung. Das Angebot ist unverbindlich und freibleibend, exklusive der Baunebenkosten wie z.B. Hausanschlüsse, Außenanlagen... Abbildungen und Grundrisse zeigen Extras! Das Haus ist gerechnet " Zur Ausstattung fertig"
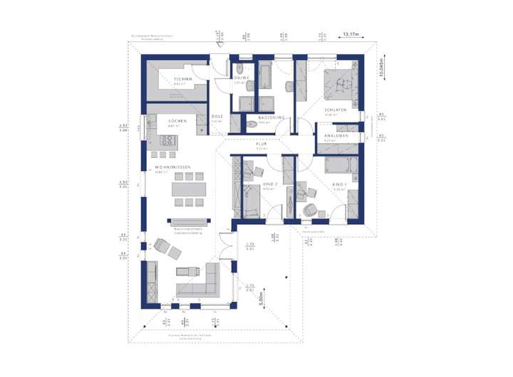
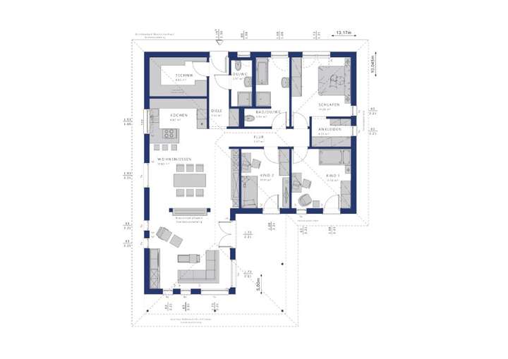
Grundriss
136143-10188-2-g
>
>
136143-10188-2-g
>
>
Adresse
55593 Rüdesheim
Interessante Orte
Preis- und Lageinformationen
Preistrend für Bestandsimmobilien in Rüdesheim