Verkauf eines Grundstückes in Stapelmoor - Ihr Traum vom Eigenheim kann beginnen!
Der Traum vom Eigenheim beginnt mit der Suche nach einem passenden Grundstück.
Mit einer friedliche Lage, reichlich Grünland und gute Anbindungen an naheliegende Städte, wartet in Stapelmoor genau das Richtig für Sie!
Natürlich ist auch eine Sanierung des Resthofes möglich. Sprechen Sie uns hierzu gerne an.
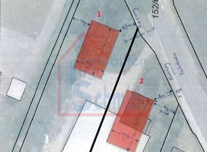
Auf einer Gesamtgrundstücksfläche von 12.700m² stehen Ihnen zwei großzügige Bauplätze zu Verfügung.
Durch die Teilung ergibt sich eine Grundstücksfläche von ca. 6.000m².
Im hinteren Bereich schließt das Grundstück an eine ausgedehnte landwirtschaftliche Flächen an und verleiht der Umgebung eine besonders ruhige und naturnahe Atmosphäre.
Energieausweis wird erstellt.
Zurzeit befinden sich eine alte Scheune, ein Güllekeller sowie weitere zurückgelassene Materialien und Gebäude noch auf dem Grundstück. Die Rückbauarbeiten der noch vorhandenen Bebauung, davon ausgenommen das Einfamilienhaus, übernimmt die Firma Junker & Auen.
Durch ein eingetragenes Wegerecht für das rechte Grundstück, teilen beide Grundstücke sich die Zufahrt.
Falls Sie noch fragen bezüglich des Angebotes haben sollten, dann melden Sie sich gerne bei uns!
Endlich bauen - hier verwirklichen Sie Ihren Traum!
26826 Weener
Die vollständige Adresse der Immobilie erhalten Sie vom Anbieter.
Auf Karte anzeigen
Die vollständige Adresse der Immobilie erhalten Sie vom Anbieter.
Finanzierungszertifikat
In nur zwei Minuten zu Ihrem persönlichen Finanzierungszertifkat.
Infos
| Haustyp | Einfamilienhaus |
|---|---|
| Wohnfläche ca. | 160 m2 |
| Grundstücksfläche | 6.000 m2 |
| Bezugsfrei ab | sofort |
| Zimmer | 4 |
Kosten
| Kaufpreis |
160.000 € |
|---|---|
| Provision |
2,38 |
Finanzierungsrechner:
Kaufpreis:
600.000 €
Eigenkapital:
600.000 €
Monatliche Rate
0 €
Effektiver Jahreszins
0 %
Sollzinsbindung
10 Jahre
Bausubstanz & Energieausweis
| Qualität der Austattung | Einfach |
|---|---|
| Energieausweis | liegt zur Besichtigung vor |
Beschreibung des Objekts
Lage
Das Grundstück befindet sich in einem ruhigen Stadtteil von Weener, einer Kleinstadt im Landkreis Leer in Niedersachsen. Der Stadtteil ist geprägt von gepflegten Vorgärten und freundlichen Nachbarn. In Weener befinden sich verschiedene Einkaufsmöglichkeiten. Schulen und Kindergärten sind vor Ort. Auch die Anbindung an öffentliche Verkehrsmittel ist gut, sodass man schnell in das Stadtzentrum gelangen kann.
Weener selbst ist eine charmante Stadt mit einer historischen Altstadt und einer malerischen Lage an der Ems. Hier finden Bewohner eine Vielzahl an Geschäften, Restaurants und kulturellen Einrichtungen. Das Stadtbild wird geprägt von liebevoll restaurierten Fachwerkhäusern und gemütlichen Plätzen, auf denen man verweilen kann. Auch die Umgebung lädt zu ausgedehnten Spaziergängen oder Radtouren ein.
Die Region um Weener ist bekannt für ihre idyllische Landschaft und die Nähe zur Nordsee. Die grünen Deichlandschaften und die zahlreichen Wasserwege bieten vielfältige Freizeitmöglichkeiten für Naturliebhaber. Zudem sorgen die maritimen Einflüsse für ein angenehmes Klima, das zu entspannten Stunden im Freien einlädt. In dieser Region fühlt man sich fernab von Hektik und Stress, und kann die Schönheit der Natur in vollen Zügen genießen.
Sonstige Angaben
Das Angebot ist freibleibend und unverbindlich. Es wurde nach den Angaben des Verkäufers erstellt. Zwischenverkauf und Irrtum sind vorbehalten. Eine Weitergabe an Dritte ist nicht gestattet.
Bitte haben Sie Verständnis dafür, dass es bei einer erhöhten Anfrage zu einem Bieterverfahren kommen kann.
Adresse
26826 Weener
Interessante Orte
Preis- und Lageinformationen
Preistrend für Bestandsimmobilien in Weener