Dieses im Jahr 1899 massiv erbaute und individuell geplante Einfamilienhaus bietet seinen neuen Eigentümern eine besondere Kombination aus historischem Charme, großzügigen Außenflächen und ruhiger Wohnlage. Mit einer Wohnfläche von ca. 132 m² und einem beeindruckenden Grundstück von ca. 1.718 m² eignet sich die Immobilie ideal für Familien oder Paare, die Wert auf Freiraum, Behaglichkeit und ein grünes Umfeld legen.
Charmantes Einfamilienhaus in beliebter Lage von Duisburg-Baerl, riesiges Grundstück&viel Potential
Grafschafterer Straße 106,
47199 Duisburg
Auf Karte anzeigen
Finanzierungszertifikat
In nur zwei Minuten zu Ihrem persönlichen Finanzierungszertifkat.
Infos
| Haustyp | Einfamilienhaus |
|---|---|
| Etagenzahl | 1 |
| Wohnfläche ca. | 132 m2 |
| Nutzfläche | 50,95 m2 |
| Grundstücksfläche | 1.718 m2 |
| Zimmer | 4 |
| Schlafzimmer | 4 |
| Badezimmer | 2 |
| Garage/Stellplatz | Garage |
| Anzahl Garage/Stellplatz | 1 |
Kosten
| Kaufpreis |
339.500 € |
|---|---|
| Provision |
2,38% (inkl. 19% Mwst) KP = 339.500,-€ x2% Käuferprovision = 6.790,-€ +19% Mwst. = 1.290,10€ Gesamtkäuferprovision inkl. 19%Mwst = 8.080,10€ KP = 339.500,-€ x2% Verkäuferprovision = 6.790,-€ +19% Mwst. = 1.290,10€ Gesamtverkäuferprovision inkl. 19%Mwst = 8.080,10€ |
Finanzierungsrechner:
Kaufpreis:
600.000 €
Eigenkapital:
600.000 €
Monatliche Rate
0 €
Effektiver Jahreszins
0 %
Sollzinsbindung
10 Jahre
Bausubstanz & Energieausweis
| Baujahr | 1899 |
|---|---|
| Objektzustand | Renovierungsbedürftig |
| Qualität der Austattung | Einfach |
| Heizungsart | Nachtspeicherofen |
| Wesentliche Energieträger | Strom |
| Energieausweis | liegt vor |
| Energieausweistyp | Bedarfsausweis |
| Energieverbrauchskennwert | 252,7 kWh/(m²*a) |
| Energieeffizienzklasse | H |
252,7
kWh/(m²*a)
Energieeffizienzklasse H
- A+
- A
- B
- C
- D
- E
- F
- G
- H
- 0
- 25
- 50
- 75
- 100
- 125
- 150
- 175
- 200
- 225
- >250
Beschreibung des Objekts
Ausstattung
Ausstattung und Raumaufteilung
- Massivbauweise – solide und langlebig
- Küche im Kaufpreis enthalten
- Wohnzimmer mit Elektrokachelofen – gemütliche Atmosphäre an kühlen Tagen
- Gäste-WC und Bad im EG
- Hauptbad mit Dusche
- Große Doppelgarage – viel Platz für Fahrzeuge, Hobby oder Werkstatt
-. Überdachte Terrasse – ideal für entspannte Stunden im Freien
- Parkähnlicher Garten – ein echtes Highlight, vielseitig nutzbar und äußerst gepflegt
Lage
Die Immobilie befindet sich in guter und beliebter Wohnlage von Duisburg-Baerl.
Die Grafschafter Straße ist geprägt von gepflegten Einfamilien- und Doppelhäusern, ideal für Familien und Paare, die ein grünes Umfeld mit guter Infrastruktur suchen.
• Gute Anbindung an die A42 und A57
• Bushaltestelle in fußläufiger Entfernung
• Kindergarten fußläufig zu erreichen
• Grundschule fußläufig zu erreichen
Sonstige Angaben
Eine charmantes, individuell geplantes freistehendes Haus mit Wohlfühlcharakter, ideal für Familien oder Paare, die Wert auf Qualität, Architektur und Lage legen.
Dieses Angebot ist freibleibend und unverbindlich.
Alle in diesem Angebot enthaltenen Angaben, insbesondere Flächenangaben, beruhen auf Angaben des Eigentümers oder von Dritten. Für die Richtigkeit können wir keine Gewähr übernehmen.
Eine Haftung aus Expose'- Angaben ist grundsätzlich und gänzlich dem Makler gegenüber ausgeschlossen.
Auf Wunsch der Verkäufer erfolgt eine Besichtigung nur nach Absprache mit unserem Büro. Zwischenverkauf müssen wir uns vorbehalten.
Kurz noch die gängigen monatlichen Nebenkosten des Hauses:
Grundsteuer = 69,28€
Niederschlagwasser = 13,17€
Straßenreinigung = 13,20€
Winterdienst = 3,06€
Frischwasser = 62,-€
Haushaltsstrom und Nachtspeicherheizung = 535,-€
Gebäudeversicherung = 85,61€
Weitere Dokumente
WiderufsbelehrungEnergieausweis Grafschafter St
Grundriss
Grundriss EG
>
>
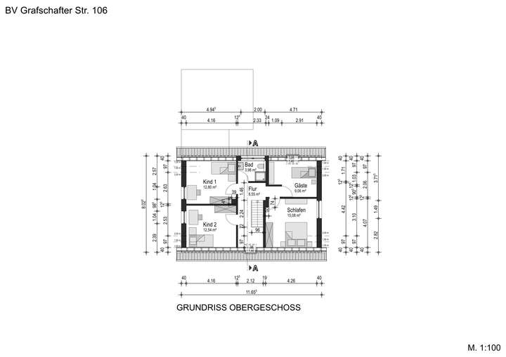
Grundriss OG
>
>
Grundriss KG
>
>
Adresse
Grafschafterer Straße 106, 47199 Duisburg
Interessante Orte
Preis- und Lageinformationen
Preistrend für Bestandsimmobilien in Baerl