Die Grundstücke (Flurstück 1851 und Flurstück 1852) mit 380 m2 bieten ausreichend Platz für zwei Doppelhaushälften mit jeweils zwei Stellplätzen.
Verkaufspreis: € 185.000,00 für zwei Grundstücke
für je eine Doppelhaushälfte mit Planung (Erteilung der Baugenehmigung steht unmittelbar bevor)
In einem gewachsenen Wohngebiet auf zwei Grundstücken im Süden von Holzwickede können zwei modern gestaltete Doppelhaushälften mit jeweils ca. 125 m² Wohnfläche entstehen.
-Planung ist im Verkaufspreis inkludiert -
Planung:
Außenmaße einer Doppelhaushälfte:
Länge: 10,50 m und Breite: 6,45 m
Die Doppelhäuser sind mit heller Putzfassade, bodentiefen großen Fenstern für viel natürliches Licht in den Wohnräumen
und gemäß dem Gebäudeenergiegesetz 2025 (GEG) energieeffizient geplant.
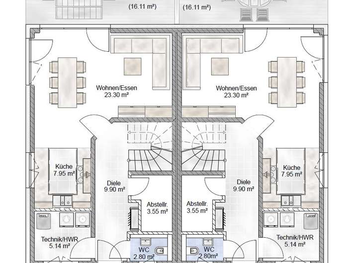
Erdgeschoss:
- Eingangsbereich: Diele mit Platz für eine Garderobe und Treppe in
das Obergeschoss
- Gäste -WC
- Technik-/ Hausanschlussraum und
Platz für Waschmaschine/ Trockner
- Abstellraum von der Diele aus begehbar
- ein offener moderner Wohn-, Ess- und Küchenbereich angrenzend
an die ebenerdige Terrasse mit Blick in den Garten
Obergeschoss:
- großzügiges Badezimmer mit breiter ebenerdiger Dusche
und Badewanne (ca. 10,00 m2)
- zwei Kinderzimmer ca 10 m2 (Netto Grundfläche)
- ein Hauptschlafzimmer mit ca. 16 m2 inkl. Ankleidebereich
Dachgeschoss:
Flur mit Zugang zum Dachboden für Abstellmöglichkeit und Lagerung/Trockenboden ca. 21m2
Heizungsart: Wärmepumpe (Fußbodenheizung)
Wesentlicher Energieträger: Strom
Endenergiebedarf: 5,00 kWh/ (m2*a)
Energieeffizienzklasse: A
PV-Anlage: gem. SAN-VO 4.1 und 4.2 (30% der Bruttodachfläche)
Zwei Grundstücke für je eine Doppelhaushälfte mit Planung
Hövelstraße ,
59439 Holzwickede
Auf Karte anzeigen
Finanzierungszertifikat
In nur zwei Minuten zu Ihrem persönlichen Finanzierungszertifkat.
Infos
| Vermarktungsart | Kaufen |
|---|---|
| Grundstücksfläche | 380 m2 |
| Empfohlene Nutzung | Doppelhaus |
| Verfügbar ab | sofort |
Kosten
| Miete pro Jahr |
185.000 € |
|---|---|
| Provision | Nein |
Finanzierungsrechner:
Kaufpreis:
600.000 €
Eigenkapital:
600.000 €
Monatliche Rate
0 €
Effektiver Jahreszins
0 %
Sollzinsbindung
10 Jahre
Beschreibung des Objekts
Lage
Das Wohngebiet zeichnet sich durch eine ruhige familienfreundliche Lage mit überwiegend eingeschossiger Bauweise aus. Ärzte, Apotheken, Schulen, Kindergärten sowie Geschäfte des täglichen Bedarfs befinden sich in näherer Umgebung.
Holzwickede liegt in der Ballungsrandzone des östlichen Ruhrgebietes zwischen den Städten Dortmund und Unna als Grundzentrum mit ca. 18.244 Einwohnern.
Die Gemeinde Holzwickede ist über die Straße, Schienen und durch die Luft zu erreichen.
Durch die Gemeinde führen die Autobahnen A44 und A1.
Der Flughafen Dortmund befindet sich in unmittelbarer Nähe, während sich die geplanten Doppelhaushälften außerhalb der Einflugschneise befinden.
Für alle, die ein ruhiges Zuhause in zentraler Lage suchen, bietet sich hier eine seltene Gelegenheit – ideal für Familien, die Wohnqualität und kurze Wege gleichermaßen schätzen.
Sonstige Angaben
Ansprechpartner:
Argentum Projektentwicklungs GmbH
Entwicklung, Planung und Bebauung von Grundstücken
E- Mail: v.krueger@argentumprojekt.de
Grundriss
DG-Grundriss-Doppelhaushaelfte
>
>
EG-Grundriss-Doppelhaushaelfte
>
>
OG-Grundriss-Doppelhaushaelfte
>
>