Dieses herrliche Baugrundstück mit fertiger Planung für ein Doppelhaus befindet sich in einer ruhigen Anwohnerstraße auf erhöhter Lage des beschaulichen Spessartortes Dammbach.
Abmessungen:
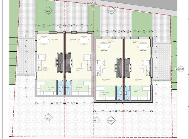
Gundelweinstraße 3:
ca. 364 qm Grundstücksgröße
ca. 13,8 mtr.
ca. 26 mtr.
Energiedaten:
Es besteht keine Pflicht!
Hinweis zum Inhalt der Immobilienangebote:
Die Informationen zu unseren Immobilienangeboten erhalten wir vom Eigentümer oder anderen gegebenenfalls angegebenen Stellen. Eine Haftung für deren Richtigkeit übernehmen wir nicht.
Aussicht pur-schöner Bauplatz mit Haus-Planung!
63874 Dammbach
Die vollständige Adresse der Immobilie erhalten Sie vom Anbieter.
Auf Karte anzeigen
Die vollständige Adresse der Immobilie erhalten Sie vom Anbieter.
Finanzierungszertifikat
In nur zwei Minuten zu Ihrem persönlichen Finanzierungszertifkat.
Infos
| Vermarktungsart | Kaufen |
|---|---|
| Grundstücksfläche | 364 m2 |
| Erschließung | Teilerschlossen |
| Bebaubar nach | Bebauungsplan |
| Verfügbar ab | nach Vereinbarung |
Kosten
| Miete pro Jahr |
95.000 € |
|---|---|
| Provision |
3,57 % inkl. MwSt. der Kaufsumme |
Finanzierungsrechner:
Kaufpreis:
600.000 €
Eigenkapital:
600.000 €
Monatliche Rate
0 €
Effektiver Jahreszins
0 %
Sollzinsbindung
10 Jahre
Beschreibung des Objekts
Lage
Die Immobilie liegt in schöner Aussichtslage des Ortes Dammbach im Ortsteil Krausenbach. Die Spessartgemeinde befindet sich im Landkreis Aschaffenburg und ist Mitglied in der Verwaltungsgemeinschaft Mespelbrunn mit Sitz in Heimbuchenthal. Aufgrund der Lage inmitten des Naturpark Spessart ist Dammbach vor allem bei Naturliebhabern sehr beliebt. Die Gemeinde verfügt sowohl über einen Kindergarten, als auch über eine eigene Volksschule. Weiterführende Schulen sind in Aschaffenburg, wie auch in Elsenfeld vorhanden.
Einkaufsmöglichkeiten für den täglichen Bedarf finden sich in Mespelbrunn sowie in Leidersbach.
Aufgrund der Nähe zur Autobahnauffahrt der BAB 3 Würzburg–Frankfurt in Rohrbrunn eignet sich Dammbach auch ideal als Wohnsitz für Pendler.
Sonstige Angaben
Das Grundstück ist nach Absprache kurzfristig verfügbar.
Besichtigungen können Sie gerne in Abstimmung mit unserem Büro vereinbaren.