Ein Einfamilienhaus der ganz besonderen Art. Auf einer Grundfläche von ca. 161 qm bietet es auf zwei Etagen außerordentlich viel Platz für vitales Wohnen. Auch in seinem äußeren Erscheinungsbild überzeugt es durch seinen eigenständigen Stil als modernes Landhaus. Große Fensterflächen prägen die Gestaltung sowie das Wohnerlebnis mit viel Licht und freiem Blick nach draußen und auf die umliegende Bergwelt.
Das projektierte Einfamilienhaus wird in nachhaltiger Holzbauweise mit einer natürlichen Holzfaserdämmung errichtet und mit modernster Haustechnik insbesondere mit einer umweltfreundlichen und energieeffizienten Luft-Wasser-Wärmepumpe ausgestattet. Alternative Heizungssysteme wie z.B. eine Lüftungsheizung stehen natürlich ebenfalls zur Verfügung.
Weitere Ausstattungskomponenten sind Holz-Alu-Fenster aus eigener Produktion, Eichenholzparkett, eine Eichenholztreppe und eine hochwertige Sanitärausstattung.
Das Einfamilienhaus ist förderfähig als klimafreundliches Wohnhaus (KFN) bzw. klimafreundliches Wohnhaus mit Nachhaltigkeitszertifizierung (QNG).
Der Hausentwurf auf Bodenplatte ist aber nur ein Bebauungsvorschlag und kann noch ganz nach Ihren Wünschen verändert oder auch durch eine Neuplanung ersetzt werden.
Statt mit einer Bodenplatte kann das Haus auch mit einem Keller ausgestattet werden.
Bitte beachten Sie, dass im genannten Kaufpreis der Kaufpreis für das schlüsselfertige Haus ab Oberkante Keller/Bodenplatte und ohne Baunebenkosten sowie der Kaufpreis des Grundstücks ohne Nebenkosten enthalten ist.
Exklusives Landhaus in zentraler Lage
83242 Reit im Winkl
Die vollständige Adresse der Immobilie erhalten Sie vom Anbieter.
Auf Karte anzeigen
Die vollständige Adresse der Immobilie erhalten Sie vom Anbieter.
Finanzierungszertifikat
In nur zwei Minuten zu Ihrem persönlichen Finanzierungszertifkat.
Infos
| Haustyp | Einfamilienhaus |
|---|---|
| Etagenzahl | 2 |
| Wohnfläche ca. | 161 m2 |
| Grundstücksfläche | 700 m2 |
| Bezugsfrei ab | Anfang 2028 |
| Zimmer | 5 |
| Schlafzimmer | 3 |
| Badezimmer | 1 |
Kosten
| Kaufpreis |
1.193.000 € |
|---|---|
| Preis für Garage/Stellplatz | 27.000 € |
| Provision |
3,57 % inkl. ges. MwSt. Die Maklercourtage für den Käufer beträgt 3 % aus dem Kaufpreis zuzüglich der gesetzlichen MwSt., somit gesamt 3,57 %. |
Finanzierungsrechner:
Kaufpreis:
600.000 €
Eigenkapital:
600.000 €
Monatliche Rate
0 €
Effektiver Jahreszins
0 %
Sollzinsbindung
10 Jahre
Bausubstanz & Energieausweis
| Baujahr | 2027 |
|---|---|
| Bauphase | Haus in Planung (projektiert) |
| Objektzustand | Erstbezug |
| Qualität der Austattung | Gehoben |
| Energieausweis | liegt zur Besichtigung vor |
Beschreibung des Objekts
Lage
Das sehr attraktive Baugrundstück mit Bergblick befindet sich in zentraler Lage von Reit im Winkl. Das Ortszentrum kann von hier aus in wenigen Minuten fußläufig erreicht werden.
Das Grundstück ist erschlossen und nach §34 BauGB bebaubar.
Eine genehmigte Bauvoranfrage liegt bereits vor.
Reit im Winkl ist ein malerischer Ort im oberbayerischen Teil des Chiemgaus, eingebettet zwischen den bayerischen Alpen und dem österreichischen Tirol. Der Ort ist bekannt für seine idyllische Lage, umgeben von Wäldern und Wiesen sowie der Nähe zu verschiedenen Wander- und Skigebieten. Besonders beliebt ist Reit im Winkl bei Naturliebhabern und Aktivurlaubern, da die Region zahlreiche Freizeitmöglichkeiten bietet.
Im Winter wird Reit im Winkl ein Paradies für Wintersportler. Die umliegenden Berge bieten eine Vielzahl von Skigebieten, die sowohl für Anfänger als auch für fortgeschrittene Skifahrer geeignet sind. Außerdem ist der Ort ein Eldorado für Langläufer, da es ein weitläufiges Netz von bestens präparierten Langlaufloipen gibt.
Im Sommer zieht Reit im Winkl Wanderer, Radfahrer und Familien an, die die frische Bergluft und die wunderschöne Natur genießen. Die Region bietet zahlreiche Wanderwege, die zu beeindruckenden Aussichten und alpenländischen Almen führen. Der Chiemsee, der größte See Bayerns, ist ebenfalls in der Nähe und bietet zahlreiche Möglichkeiten zum Schwimmen, Bootfahren oder einfach zum Entspannen am Ufer.
Das Dorf selbst hat einen charmanten, traditionellen Charakter mit typischen bayerischen Bauernhäusern und einer gemütlichen Dorfgemeinschaft. Der Ortskern lädt zum Bummeln und Verweilen ein, mit einigen Cafés, Gaststätten und Geschäften, die regionale Produkte anbieten.
Zusammengefasst ist Reit im Winkl ein perfektes Ziel für alle, die die Natur lieben und sowohl im Winter als auch im Sommer eine Vielfalt an Outdoor-Aktivitäten genießen möchten.
Sonstige Angaben
Kostenaufstellung:
Der genannte Kaufpreis setzt sich zusammen aus dem
* Preis für das Grundstück mit ca. 700 qm: 595.000,- EUR und dem
* Preis für das individuell geplante Regnauer-Einfamilienhaus
mit EG+OG: ab 598.000,- EUR
Optionen:
* Keller schlüsselfertig inkl. Erdarbeiten: ca. 135.000,- EUR
* Bodenplatte ca. 102 qm inkl. Erdarbeiten: ca. 45.000,- EUR
* Einzelgarage (ca. 3x6 m): ca. 27.000,- EUR
* PV-Anlage 10 kWp: ab ca. 18.000,- EUR
Kaufnebenkosten Grundstück:
* Provision auf das Grundstück 3,0 % zzgl.
gesetzlicher MwSt.
* Grunderwerbsteuer
* Notargebühren
Baunebenkosten:
* Hausanschlüsse
* Außenanlagen
Der Energieausweis wird im Zuge der Errichtung des Hauses erstellt.
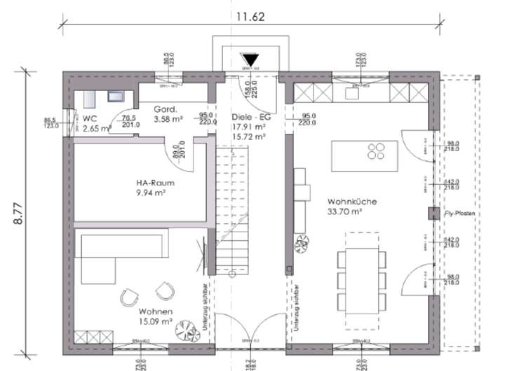
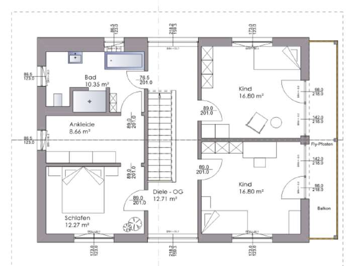
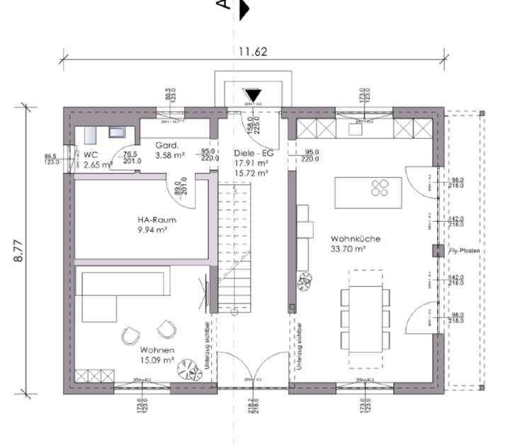
Grundriss
Grundriss Erdgeschoss
>
>
Grundriss Obergeschoss
>
>
Adresse
83242 Reit im Winkl
Interessante Orte
Preis- und Lageinformationen
Preistrend für Bestandsimmobilien in Reit im Winkl